← All councils

Recent applications

The most recent records we hold for this council (up to 200).

Plan thumbnail

Full planning application for the erection of 314 residential dwellings, commercial floor space (Use Class E) and additional car parking for...

Type New housing
Status Registered
Received Last month
Plan thumbnail

Partial demolition of existing and construction of new dwelling

Type New housing
Status Registered
Received 16 Jan 2026
Plan thumbnail

Change of use of first-floor from Class E (Office) to C3 (Residential) to form a 1x bedroom flat with associated internal alterations

Type Change of use
Status Registered
Received 10 Feb 2026
Plan thumbnail

Demolition of existing mobile home and replacement dwelling (Self build)

Type New housing
Status Registered
Received 05 Feb 2026
Plan thumbnail

Two storey side extension to residential cabin approved under planning ref: 16/00775/FL (Permanent stationing of residential cabin for key a...

Type House extension
Status Registered
Received 16 Dec 2025
Plan thumbnail

Conversion of existing redundant building to a single dwelling

Type Change of use
Status Registered
Received 26 Jan 2026
Plan thumbnail

Lawful Development Certificate Existing: To confirm that the development authorised by planning permission, TM/22/02872/FL Erection of 2 pai...

Type New housing
Status Unknown
Received 23 Dec 2025
Plan thumbnail

Outline Application with all matters reserved for: Proposed construction of new dwelling house

Type New housing
Status Registered
Received 26 Aug 2025
Plan thumbnail

Change of use of land to create an extension to the existing holiday park to site an additional 53 holiday lodges and erection of an office,...

Type Change of use
Status Registered
Received 20 Aug 2025
Plan thumbnail

Demolition of existing dwelling and erection of a detached 2 storey dwelling (Self build)

Type Demolition
Status Unknown
Received 15 Aug 2025
Plan thumbnail

Full planning application for 35No. residential dwellings (including affordable housing) with landscape, parking, open space, and associated...

Type New housing
Status Registered
Received 07 Aug 2025
Plan thumbnail

Proposed two storey extension, internal works and adjustment of various external openings at grade II listed dwelling

Type Listed building
Status Unknown
Received 25 Jun 2025
Plan thumbnail

Listed Building Application: Proposed two storey extension, internal works and adjustment of various external opening at grade II listed dwe...

Type Listed building
Status Unknown
Received 25 Jun 2025
Plan thumbnail

Erection of 26 no. residential dwellings, together with associated access, open space, landscaping, drainage, earthworks and other associate...

Type New housing
Status Registered
Received 05 Jun 2025
Plan thumbnail

Erection of 2 pairs of semi-detached 4 bed dwellings and three detached 4 bed dwellings to the rear. An amalgamation of four existing planni...

Type New housing
Status Unknown
Received 30 Jan 2025
Plan thumbnail

Outline Application: Residential development for up to 300 dwellings (comprising detached, semi-detached, terraced and apartments), communit...

Type New housing
Status Registered
Received 28 May 2025
Plan thumbnail

Outline Application: Residential development consisting of 8no. self-build plots with all matters reserved except for means of access, layou...

Type New housing
Status Registered
Received 30 Apr 2025
Plan thumbnail

Demolition of existing buildings, construction of two self build semi detached dwellinghouses with associated garaging, vehicle parking faci...

Type New housing
Status Registered
Received 27 Mar 2025
Plan thumbnail

Demolition of existing stables and erection of a detached dwelling (Self-build/custom build)

Type New housing
Status Registered
Received 22 Apr 2025
Plan thumbnail

Formation of flat at ground floor and change of use to dwelling

Type Change of use
Status Unknown
Received 09 Apr 2025
Plan thumbnail

Upward extension and remodelling of existing dwelling

Type House extension
Status Unknown
Received 07 Apr 2025
Plan thumbnail

New single-storey residential dwelling

Type New housing
Status Registered
Received 21 Mar 2025
Plan thumbnail

Erection of attached 4x bedroom dwelling following the demolition of previous annex

Type New housing
Status Unknown
Received 03 Mar 2025
Plan thumbnail

Proposed roof extension to accommodate one residential unit and external alteration to ground floor window to provide access to the flats pr...

Type House extension
Status Registered
Received 10 Mar 2025
Plan thumbnail

Erection of a block of 8 flats with associated access, landscaping, cycle storage and parking

Type New housing
Status Registered
Received 03 Mar 2025
Plan thumbnail

Lawful Development Certificate: Construction of a mobile home, for use ancillary to the main dwelling, sited within the residential garden

Type Other
Status Registered
Received 22 Jan 2025

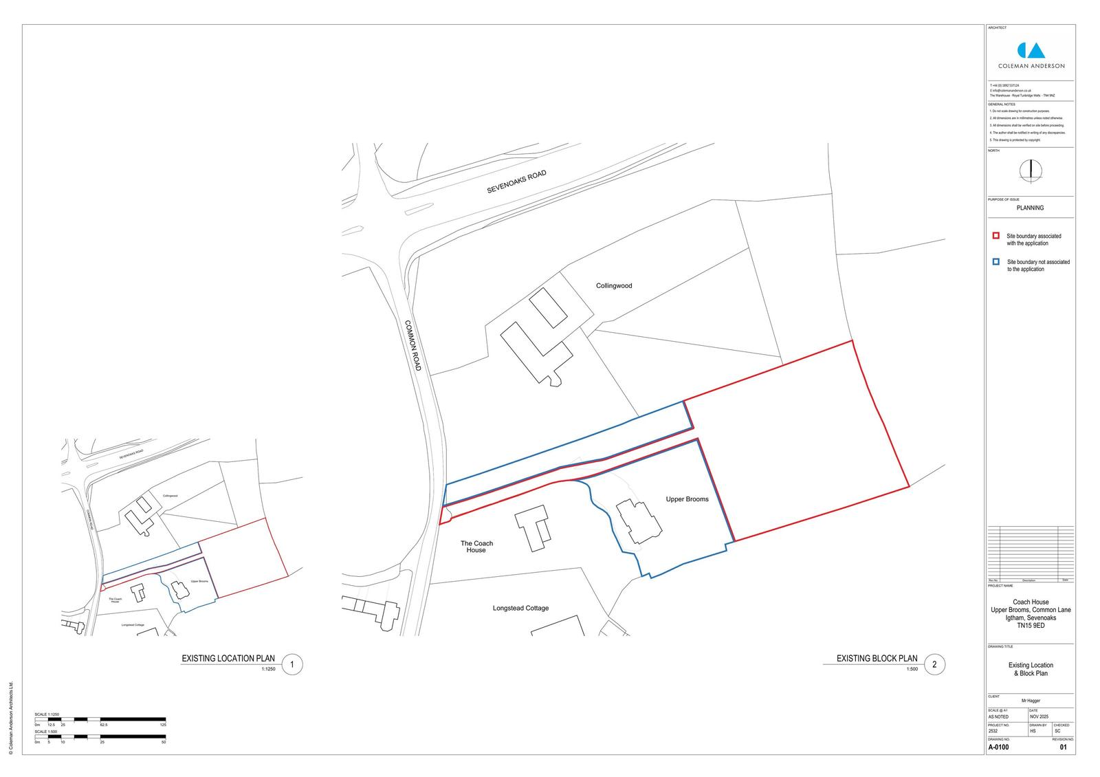
Proposed Coach House internal conversion works to provide ancillary accommodation to the main dwelling

Type House extension
Status Registered
Received 20 Jan 2025

Prior notification under Schedule 2, Part 3, Class MA: Change of use of a Commercial building and land within its curtilage from a use falli...

Type Change of use
Status Unknown
Received 04 Sep 2024

Prior Notification for Larger home Extension (Part 1 class A): Single storey flat roofed rear extension within parapet walls and glazed flat...

Type House extension
Status Unknown
Received 06 Sep 2024

Schedule 2, Part 3, Class Q: Change of use from Agricultural building to Dwelling (PRIOR NOTIFICATON)

Type Change of use
Status Unknown
Received 03 Sep 2024
Plan thumbnail

Prior notification for Larger Home Extension (Part 1 Class A) : Demolition of flat roof extension and erection of single storey rear extensi...

Type House extension
Status Unknown
Received 08 Oct 2024
Plan thumbnail

Lawful Development Certificate Existing: To confirm the use of the farmhouse as 3 flats for a period in excess of 4 years

Type Change of use
Status Unknown
Received 02 Oct 2024
Plan thumbnail

Lawful Development Certificate Existing: dwelling and detached garage

Type Change of use
Status Unknown
Received 30 Sep 2024
Plan thumbnail

Lawful Development Certificate Proposed: Erection of garden wall between Garth Down main dwelling and Prunelle garage to replace a fir tree ...

Type Other
Status Unknown
Received 24 Sep 2024
Plan thumbnail

Lawful Development Certificate Proposed: Proposed stationing of a mobile home to the rear to serve as ancillary residential accommodation.

Type Other
Status Registered
Received 31 Oct 2024

Rooftop extension to create a 1 x two bed-room apartment, and 1 x 1 bed-room apartment to include internal alterations to one flat to allow ...

Type House extension
Status Awaiting decision
Received 27 Sep 2024

Prior Notification under Schedule 2, Part 3, Class MA: Change of use from Class E (commercial, business and service) to Class C3 (dwellingho...

Type Change of use
Status Unknown
Received 24 Oct 2024
Plan thumbnail

Outline application with all matters reserved accept access for the erection of one detached self-build house with associated landscaping, p...

Type New housing
Status Awaiting decision
Received 14 Oct 2024

Details of Phase 2 Affordable Housing Scheme (schedule 1, paragraph 2.1) submitted pursuant to S106 Agreement on Outline planning permission...

Type New housing
Status Registered
Received 07 Nov 2024
Plan thumbnail

Single storey flat roof rear extension

Type House extension
Status Unknown
Received 01 Nov 2024
Plan thumbnail

Prior notification: Schedule 2, Part 3, Class G: Change of use from a use within Class E (commercial, business and service) of Schedule 2 to...

Type Change of use
Status Unknown
Received 31 Oct 2024
Plan thumbnail

Proposed re-development of the garage, at the existing 3-bed dwelling, to create additional 1 x 3 bed terraced dwelling and 1 x 2 bed terrac...

Type New housing
Status Unknown
Received 28 Oct 2024
Plan thumbnail

Erection of a two storey side extension to create a two bedroom dwelling, including reconfiguration of the roof, new dormer windows, interna...

Type House extension
Status Unknown
Received 22 Jul 2024
Plan thumbnail

Prior Notification under Schedule 2, Part 3, Class MA: Change of use from commercial, Business and Service to Dwellinghouse

Type Change of use
Status Unknown
Received 12 Dec 2024

Outline Application: all matters reserved for: Demolition of existing garage and erection of new detached market dwelling

Type New housing
Status Registered
Received 10 Dec 2024

Demolition of existing dwelling, garage and former stables and erection of a new self build replacement detached dwelling (for the owners ow...

Type Demolition
Status Registered
Received 26 Nov 2024

Alterations to Thurland and Thurland Top to revert two flats back to a single dwelling; alterations to roofscape; new fenestration comprisin...

Type Change of use
Status Unknown
Received 26 Nov 2024
Plan thumbnail

Prior Notification under Schedule 2, Part 3, Class MA: Change of use from Commercial to Dwellings with retention of ground floor commercial ...

Type Change of use
Status Unknown
Received 19 Nov 2024
Plan thumbnail

Erection of 3x detached dwellings including access, landscaping, parking and gardens

Type New housing
Status Registered
Received 20 Sep 2024
Plan thumbnail

Hybrid application for: Full planning permission for the provision of two 3G football pitches, club house, spectator stands (Use Class F2), ...

Type Infrastructure
Status Unknown
Received 24 Dec 2024
Plan thumbnail

Construction of a 3 bedroom house

Type New housing
Status Awaiting decision
Received 17 Dec 2024
Plan thumbnail

Proposed single storey side extension, new porch, conversion of double garage and addition of a new attached double garage with first floor ...

Type House extension
Status Registered
Received 19 Jan 2026
Plan thumbnail

Lawful Development Certificate Proposed: Conversion of loft to habitable room incorporating a rear dormer and 2 rooflights in the front roof...

Type House extension
Status Registered
Received 28 Jan 2026
Plan thumbnail

Erection of a detached residential dwelling with associated access.

Type New housing
Status Registered
Received 20 Jan 2026
Plan thumbnail

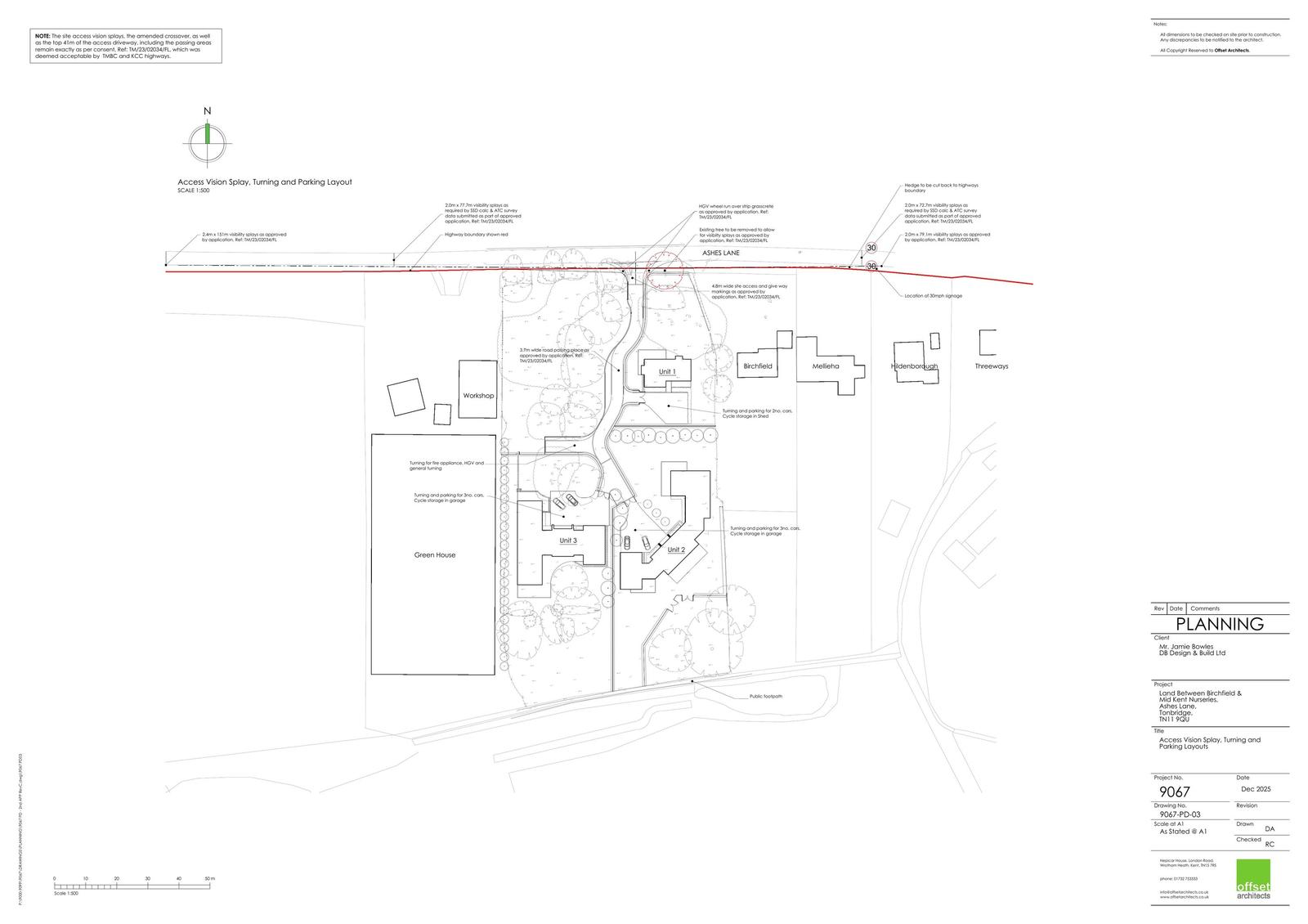
Demolition of existing barn and erection of two detached 4 bedroom family dwellings (Revision of TM/24/01218/PA)

Type Demolition
Status Registered
Received 14 Jan 2026
Plan thumbnail

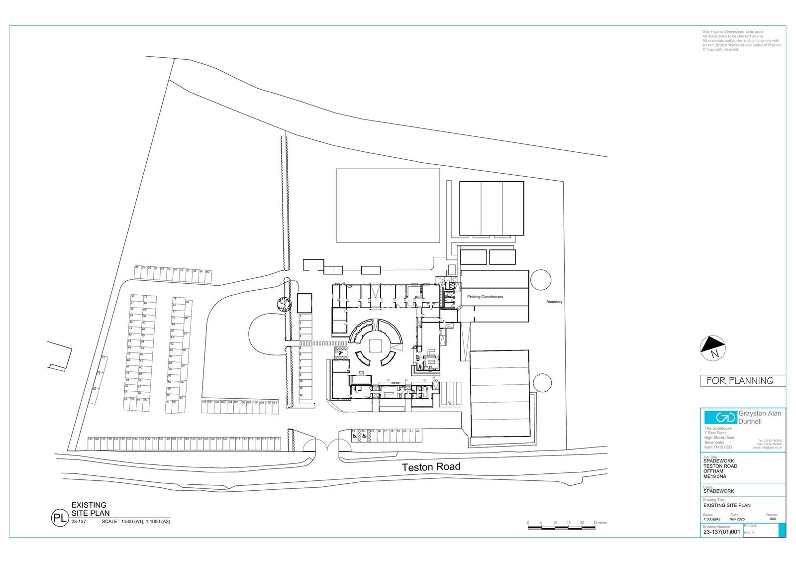
Demolition of existing glasshouses and redevelopment to provide a new building for use as a Dementia and Wellbeing Hub and associated works ...

Type Demolition
Status Registered
Received 06 Jan 2026
Plan thumbnail

Proposed construction of 3 x dwellings comprising of 2 x 1 bed houses and 1 x 2 bed flat

Type New housing
Status Registered
Received 14 Jan 2026
Plan thumbnail

Change of use of land from C3 (Residential) to Sui generis (Mixed use- C3 and B8 Storage of vehicles and trailers) including the laying of a...

Type Change of use
Status Registered
Received 09 Sep 2025
Plan thumbnail

Change of use and conversion of existing retail unit into 1no. residential apartment

Type Change of use
Status Registered
Received 19 Sep 2025
Plan thumbnail

Prior Notification under Schedule 2, Part 3, Class MA: Convert existing offices (Class E) on the ground floor to 2 x residential flats (Clas...

Type Change of use
Status Registered
Received 28 Mar 2025
Plan thumbnail

Erection of dwelling in rear garden with revised access onto Ditton Place (Self/ custom build)

Type New housing
Status Registered
Received 22 Sep 2025
Plan thumbnail

Erection of 5 dwellings with associated parking, amenity, landscaping and biodiversity enhancements

Type New housing
Status Registered
Received 18 Sep 2025
Plan thumbnail

Ground floor rear extension and change of use from use class C3 residential dwelling to C2 residential institution designed to provide accom...

Type Change of use
Status Registered
Received 15 May 2025
Plan thumbnail

Demolition of existing stables and erection of a detached dwelling with vehicle access

Type Demolition
Status Registered
Received 17 Oct 2025
Plan thumbnail

Demolition of the existing dwelling. Erection of 6x dwellings with associated parking, access and landscaping

Type Demolition
Status Registered
Received 19 Nov 2025
Plan thumbnail

Erection of a modular building comprising 12no. self-contained apartments for use as temporary housing accommodation, including associated l...

Type New housing
Status Registered
Received 18 Nov 2025
Plan thumbnail

Outline Application: All matter reserved except for access (Erection of 1x detached dwelling (Self build))

Type New housing
Status Registered
Received 17 Nov 2025
Plan thumbnail

The demolition of the existing dwelling and associated structures, and the erection of 2no. dwellings with associated landscaping, parking a...

Type New housing
Status Registered
Received 17 Nov 2025
Plan thumbnail

Retrospective application for part change of use from C3 (residential) to Sui Generis (ancillary staff facilities)

Type Change of use
Status Registered
Received 11 Nov 2025
Plan thumbnail

Demolition of existing buildings and hardstanding and erection of a 4 bedroom detached dwelling with garage (Self build)

Type New housing
Status Registered
Received 28 Aug 2025
Plan thumbnail

Erection of two storey self-build replacement dwelling with integral garage.

Type New housing
Status Registered
Received 06 Nov 2025
Plan thumbnail

Erection of 5x dwellings with associated parking, access and landscaping

Type New housing
Status Registered
Received 04 Nov 2025
Plan thumbnail

Outline Application: All matters reserved except for access for the erection of up to 116 residential units with associated infrastructure a...

Type New housing
Status Registered
Received 03 Nov 2025
Plan thumbnail

Demolition of agricultural barn and erection of 2no. residential dwellings with associated car barn, parking and landscaping.

Type Demolition
Status Awaiting decision
Received 03 Dec 2025
Plan thumbnail

Demolition of existing dwelling and store and erection of two self build dwellings and associated landscaping

Type New housing
Status Registered
Received 22 Jan 2026
Plan thumbnail

Installation of 24 ground mounted solar panels at the northern end of the site adjacent to Willow Wents for domestic energy supply to the re...

Type Renewable energy
Status Registered
Received 22 Dec 2025
Plan thumbnail

Raise existing roof pitch to main dwelling and the separate annexe to accommodate new man-made roof slates

Type House extension
Status Registered
Received 19 Dec 2025
Plan thumbnail

Demolition of existing prefabricated single garage, sub division of existing property and construction of new detached 1.5 storey dwelling a...

Type New housing
Status Registered
Received 08 Jan 2026
Plan thumbnail

Demolition of existing detached double garage, construction of single storey annex and single storey extension to existing house

Type House extension
Status Registered
Received 05 Jan 2026
Plan thumbnail

Permission in Principle for the erection of up to 9 No. dwellings

Type New housing
Status Registered
Received 18 Dec 2025
Plan thumbnail

Permission in Principle for the Sub-division of existing residential plot and erection of up to 3no. dwellings

Type New housing
Status Registered
Received 15 Dec 2025
Plan thumbnail

Proposed demolition of existing residential caravan, and site clearance. Erection of four dwellings with ancillary development and landscape...

Type New housing
Status Registered
Received 15 Dec 2025
Plan thumbnail

Erection of detached carriage house and garage

Type Other
Status Registered
Received 15 Jan 2026
Plan thumbnail

Outline Application: All matters reserved except for access- Erection of 5 detached dwellings (Self/custom build)

Type New housing
Status Registered
Received 23 Dec 2024
Plan thumbnail

Outline Application: with all matters reserved except for access for the erection of 1 self-build dwelling

Type New housing
Status Unknown
Received 10 Feb 2025
Plan thumbnail

Lawful Development Certificate Existing: To confirm lawful use of the annexe as a self contained dwelling

Type C变动
Status Unknown
Received 15 Jan 2025
Plan thumbnail

Proposed construction of a 1 x 4 bedroom infill dwelling

Type New housing
Status Unknown
Received 17 Dec 2024
Plan thumbnail

Lawful Development Certificate Proposed: Demolition of existing single storey rear extension. Construction of new single storey rear extensi...

Type House extension
Status Unknown
Received 24 Feb 2025
Plan thumbnail

Construction of three detached dwellings, with associated landscaping alterations

Type New housing
Status Registered
Received 18 Dec 2025
Plan thumbnail

Outline Application: All matters reserved except for access (Erection of 8 dwellings (self-build plots))

Type New housing
Status Registered
Received 18 Dec 2025
Plan thumbnail

Outline Application (access not reserved): Proposed development of up to 350 no dwellings with associated access, landscaping open space, dr...

Type New housing
Status Registered
Received 25 Nov 2025
Plan thumbnail

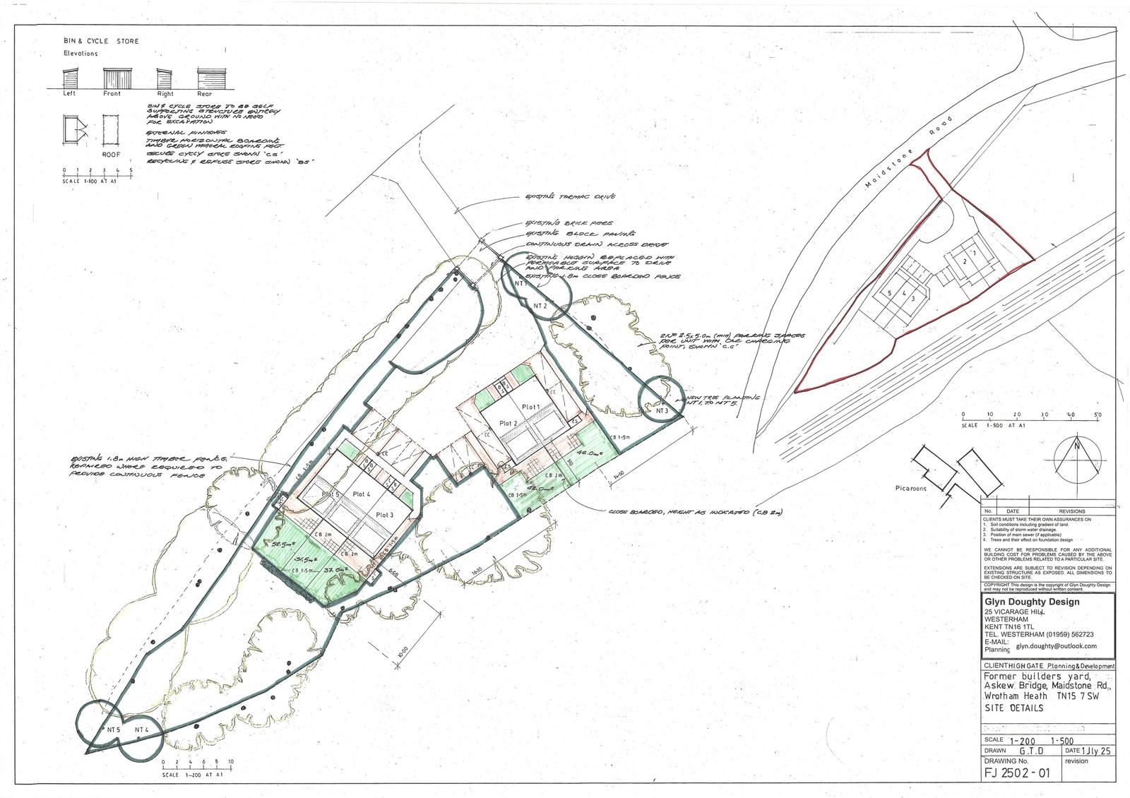
Full Planning Application for the Change of Use of the site from Commercial Builders Yard to a new detached dwelling, together with the prov...

Type Change of use
Status Registered
Received 27 Nov 2025
Plan thumbnail

Construction of 3no. detached houses and associated landscaping alterations.

Type New housing
Status Registered
Received 25 Nov 2025
Plan thumbnail

Demolition of existing barn, and the construction of two detached dwelling houses

Type New housing
Status Registered
Received 09 Dec 2025
Plan thumbnail

Change of use of public house to form a 3 bed dwelling

Type Change of use
Status Registered
Received 26 Jan 2026
Plan thumbnail

Outline planning application (with all matters reserved except for access) for the development of 101 dwellings (Use Class C3) with play spa...

Type New housing
Status Registered
Received 10 Feb 2026
Plan thumbnail

Proposed change of use back to C3 residential to include, change of floor layouts to comply with min 37sqm amenity. Alterations to front por...

Type Change of use
Status Registered
Received 10 Dec 2025
Plan thumbnail

Outline Application: All matters reserved except for access for the erection of 60 residential houses, including affordable housing, with ne...

Type New housing
Status Registered
Received 25 Nov 2025
Plan thumbnail

Proposed Erection of 1 x 3 bed and 1 x 4 bed two-storey semi-detached dwellings with associated works

Type New housing
Status Unknown
Received 05 Sep 2025
Plan thumbnail

Prior Notification: Change of use of ground floor from Class E(g)(i)) (Office) to Class C3 (Dwellings) to form 4 flats

Type Change of use
Status Unknown
Received 16 Oct 2025
Plan thumbnail

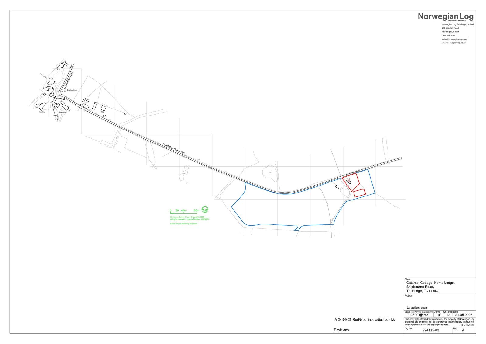
Lawful Development Certificate application: Proposed siting of a mobile home, within the residential garden of Cataract Cottage to provide a...

Type Other
Status Unknown
Received 15 Oct 2025
Plan thumbnail

Lawful Development Certificate Proposed: Siting of a single-storey mobile home (caravan) for ancillary use to the main dwelling

Type Other
Status Unknown
Received 06 Oct 2025
Plan thumbnail

Prior Notification under Schedule 2, Part 3, Class MA: Change of use of Class E (Commercial, Business and service) to Class C3 (residential)...

Type Change of use
Status Unknown
Received 19 Nov 2025
Plan thumbnail

Change of use of mixed used to residential dwellings (Part 3 Class MA) to create 5 additional flats

Type Change of use
Status Unknown
Received 07 Nov 2025
Plan thumbnail

Proposed new dwelling (Self build)

Type New housing
Status Unknown
Received 13 Oct 2025
Plan thumbnail

Prior Notification (Part 3 Class Q): Change of use of agricultural barn to create a 3 bedroom/4 person residential dwelling (C3) together wi...

Type Change of use
Status Unknown
Received 25 Nov 2025
Plan thumbnail

Outline application with all matters reserved for a new dwelling

Type New housing
Status Unknown
Received 15 Dec 2025

Demolish existing home; build 6 new dwellings.

Type Demolition
Status Under Consideration
Received 19 Nov 2025

Erect modular building for 12 self-contained apartments

Type New housing
Status New Case Allocated
Received 18 Nov 2025

Demolish existing home, build 2 new dwellings.

Type Demolition
Status New Case Allocated
Received 17 Nov 2025

Convert offices to residential use for 20 flats

Type Change of use
Status New Case Allocated
Received 12 Nov 2025

Change mixed use to residential for 5 flats

Type Change of use
Status Under Consideration
Received 07 Nov 2025

Erect 5 new housing units with parking, access and landscaping.

Type New housing
Status Under Consideration
Received 04 Nov 2025

Application for up to 116 residential units and community parking.

Type New housing
Status Under Consideration
Received 03 Nov 2025

Change office to residential for 4 flats

Type Change of use
Status Recommended Decision
Received 16 Oct 2025

Convert workshop into two 3-bed dwellings.

Type Demolition
Status New Case Allocated
Received 13 Oct 2025

Demolition for 4-bed detached house and garage (self-build).

Type New housing
Status Officer Assessment
Received 28 Aug 2025