← Tonbridge and Malling Borough Council

Status

Registered New housing
Received
18 Sep 2025
New homes
5

Full proposal

Erection of 5 dwellings with associated parking, amenity, landscaping and biodiversity enhancements

Documents

01 Site location and existing block plan
Other
Not yet archived · Original link
02 Existing site sections
Drawing
Not yet archived · Original link
03D Proposed site layout
Drawing
Not yet archived · Original link
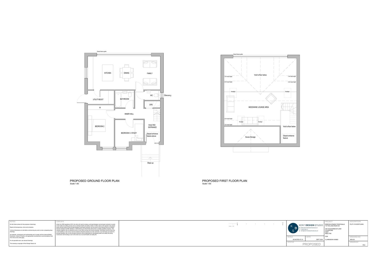
05 Proposed elevations- Plot 4
Drawing
Not yet archived · Original link
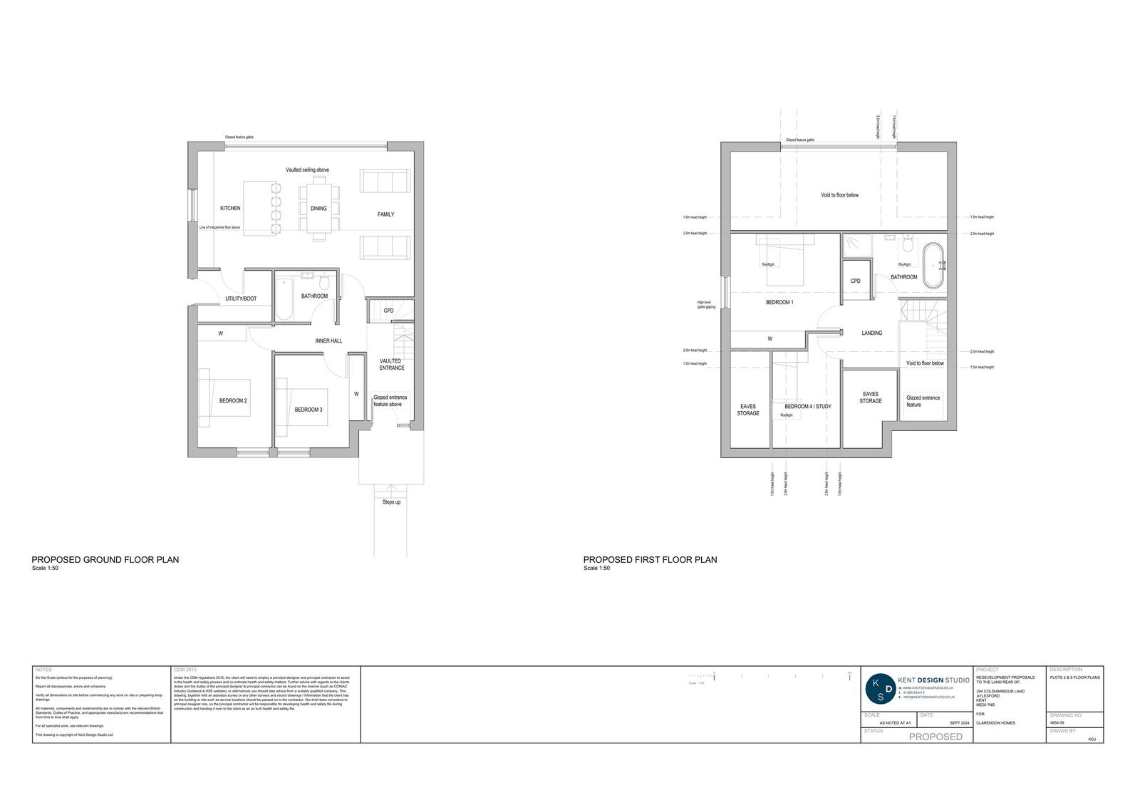
07 Proposed elevations- Plots 2 and 5
Drawing
Not yet archived · Original link
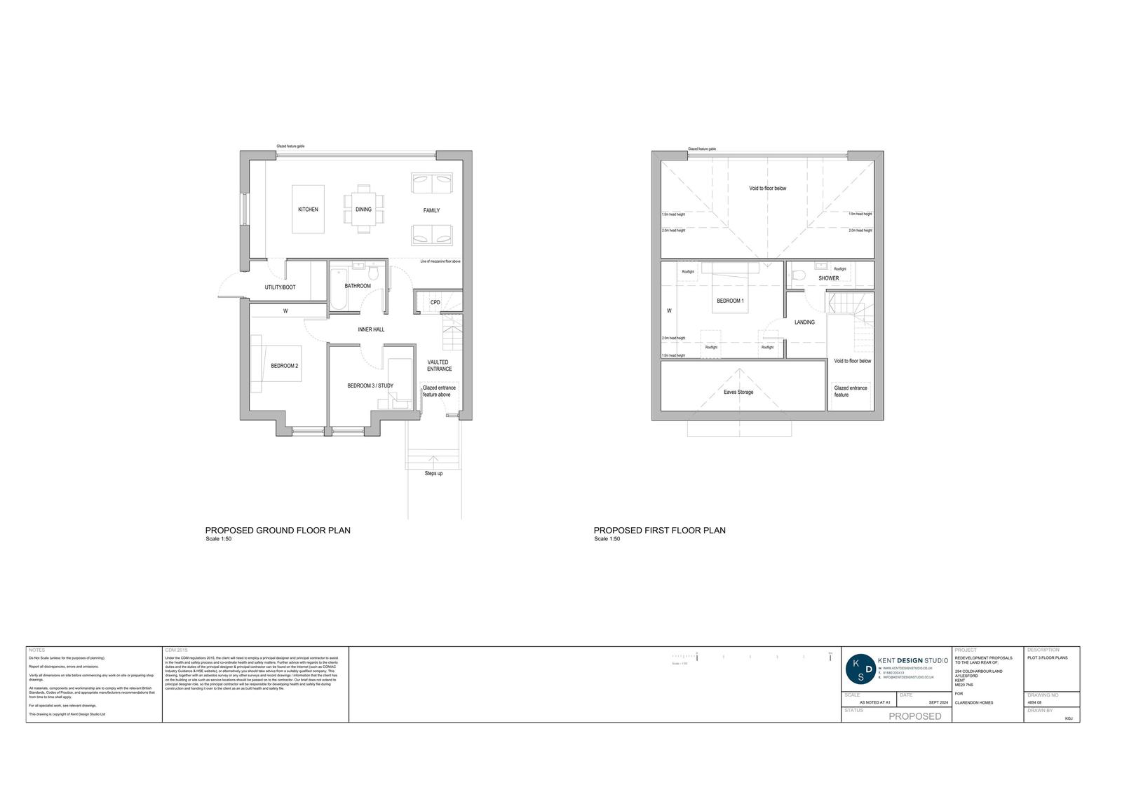
09 Proposed elevations- Plot 3
Drawing
Not yet archived · Original link
11 Proposed elevations- Plot 4
Drawing
Not yet archived · Original link
12 Proposed site sections
Drawing
Not yet archived · Original link
13 Proposed site sections- coloured
Drawing
Not yet archived · Original link
14A Proposed parking layout
Drawing
Not yet archived · Original link
15A Proposed bin and cycle store
Drawing
Not yet archived · Original link
16A proposed lanscaping/ external works plan
Drawing
Not yet archived · Original link
Application Form - Without Personal Data
Application Form
Not yet archived · Original link
Aylesford PC
Consultee Response
Not yet archived · Original link
Biodiversity metric assessment
Report
Not yet archived · Original link
BNG metric
Report
Not yet archived · Original link
CIV 10 P1 Drainage layout
Drawing
Not yet archived · Original link
CIV 30 P1 Private external works construction details
Drawing
Not yet archived · Original link
CIV 50 P1 Drainage construction details- Sheet 1 of 2
Drawing
Not yet archived · Original link
CIV 51 P1 Drainage construction details- Sheet 2 of 2
Drawing
Not yet archived · Original link
Design and access statement
Report
Not yet archived · Original link
DKS 1437.2 DAP Developable area plan
Drawing
Not yet archived · Original link
DKS/1437.1: Emergence Results
Report
Not yet archived · Original link
DKS1437.2 ETC Existing Arboricultural constraints plan
Drawing
Not yet archived · Original link
Environment Agency
Consultee Response
Not yet archived · Original link
Environmental Health Protection
Consultee Response
Not yet archived · Original link
Flood risk assessment
Report
Not yet archived · Original link
Flood risk assessment and surface water drainage strategies
Report
Not yet archived · Original link
KCC EAS
Consultee Response
Not yet archived · Original link
KCC Ecological Advice Service
Consultee Response
Not yet archived · Original link
KCC Ecological Advice Service
Consultee Response
Not yet archived · Original link
KCC Heritage Conservation comments
Consultee Response
Not yet archived · Original link
Leisure Services
Consultee Response
Not yet archived · Original link
Noise impact assessment
Report
Not yet archived · Original link
Objection
Other
Not yet archived · Original link
Preliminary ecological appraisal
Report
Not yet archived · Original link
Site Notice
Other
Not yet archived · Original link
Southern Water
Consultee Response
Not yet archived · Original link
Tree survey and feasibility report
Report
Not yet archived · Original link
Vehicular swept paths analysis
Drawing
Not yet archived · Original link
Waste Services comments
Consultee Response
Not yet archived · Original link

Have your say

Your comment matters. Councils must consider every representation that raises material planning considerations.

Write a comment