← Tonbridge and Malling Borough Council

Status

Registered House extension
Received
19 Jan 2026
New homes
0

Full proposal

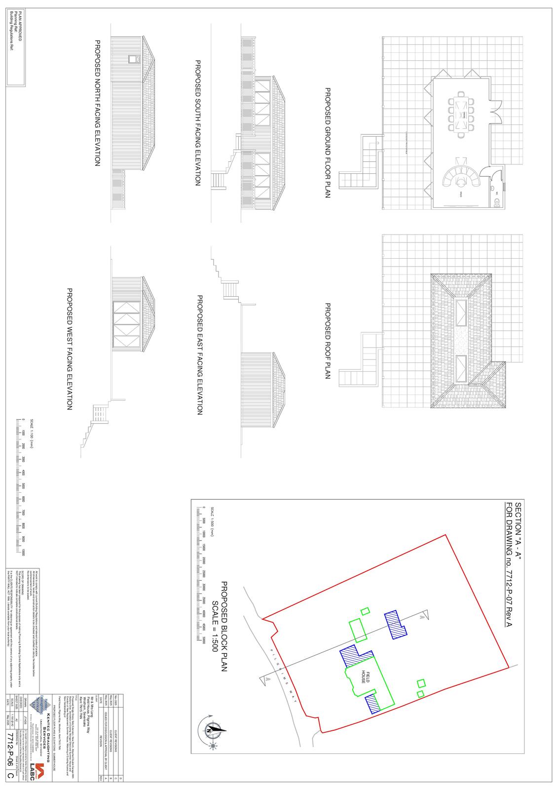
Proposed single storey side extension, new porch, conversion of double garage and addition of a new attached double garage with first floor side extension and balcony, demolition of existing storage shed and summer House and erection of new replacement summer house, widening of existing access, new gates and hardstanding (Revision to approved application 25/00866/PA)

Documents

EXISTING AND PROPOSED ENTRANCE GATE
Drawing
Not yet archived · Original link
EXISTING AND PROPOSED SECTIONS
Drawing
Not yet archived · Original link
EXISTING FLOOR PLANS AND ELEVATIONS SUMMER HOUSE AND SHED
Drawing
Not yet archived · Original link
EXISTING PLANS AND ELEVATIONS
Drawing
Not yet archived · Original link
Drawing
Archived · Original link
Drawing
Archived · Original link
Site Location Plan
Archived · Original link

Have your say

Your comment matters. Councils must consider every representation that raises material planning considerations.

Write a comment