← Tonbridge and Malling Borough Council

Status

Registered New housing
Received
22 Sep 2025
New homes
0

Full proposal

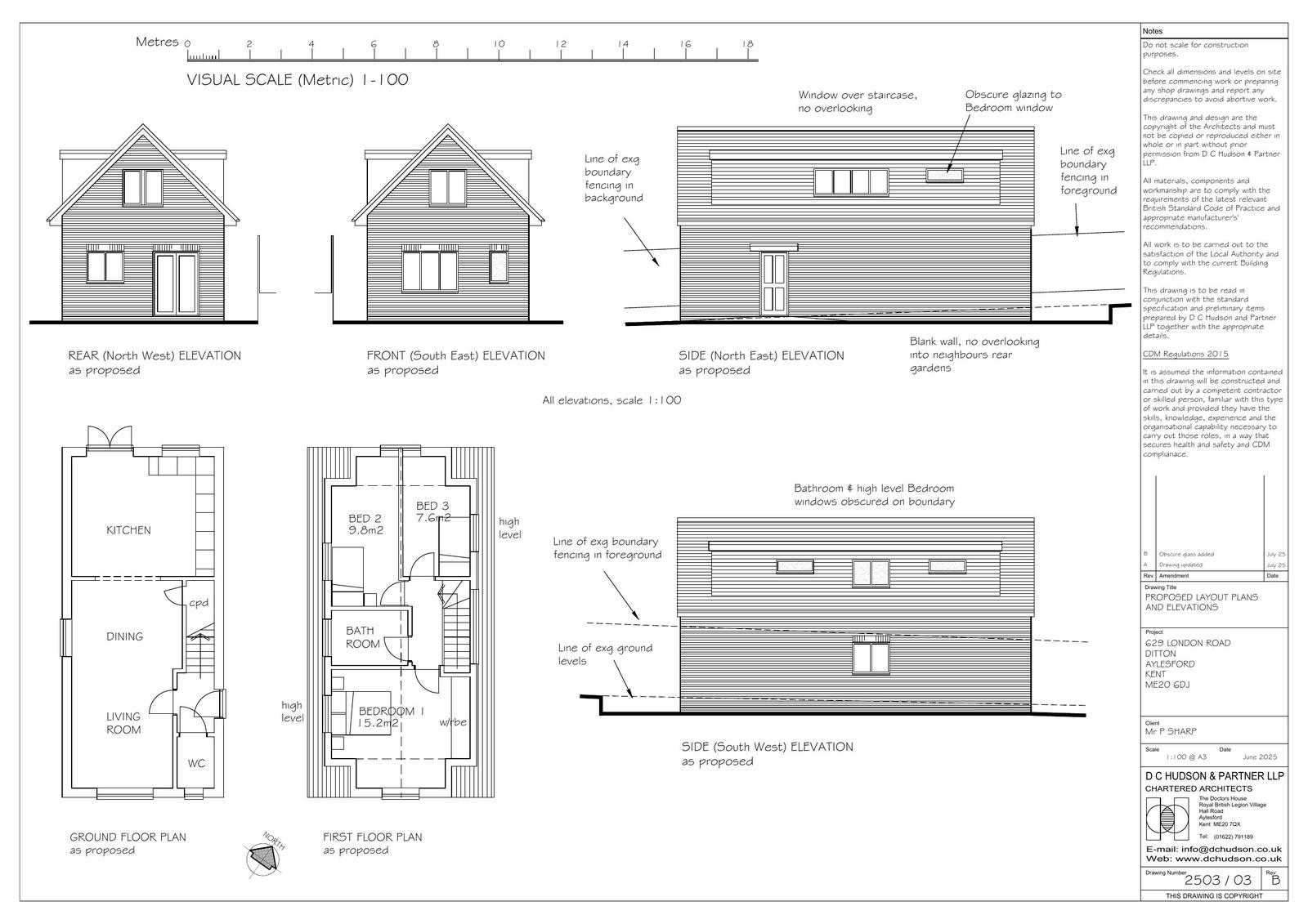
Erection of dwelling in rear garden with revised access onto Ditton Place (Self/ custom build)

Documents

02B Existing & Proposed Site & Block Plans
Drawing
Not yet archived · Original link
Application Form
Application Form
Not yet archived · Original link
Design & Access Statement
Report
Not yet archived · Original link
Ditton Parish Council
Consultee Response
Not yet archived · Original link
Environmental Health Protection
Consultee Response
Not yet archived · Original link
Site Notice
Other
Not yet archived · Original link

Have your say

Your comment matters. Councils must consider every representation that raises material planning considerations.

Write a comment