← Tonbridge and Malling Borough Council

Status

Registered House extension
Received
28 Jan 2026
New homes
0

Full proposal

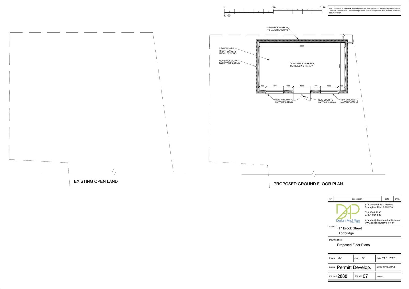
Lawful Development Certificate Proposed: Conversion of loft to habitable room incorporating a rear dormer and 2 rooflights in the front roof slope. Erection of a Summer house in rear garden

Documents

APPLICATIONFORMREDACTED
Application Form
Not yet archived · Original link
CONSTRUCTION NOTES
Report
Not yet archived · Original link
EXISTING ELEVATIONS
Drawing
Not yet archived · Original link
EXISTING FLOOR PLANS
Drawing
Not yet archived · Original link
PROPOSED ELEVATIONS
Drawing
Not yet archived · Original link
PROPOSED ELEVATIONS
Drawing
Not yet archived · Original link
Drawing
Archived · Original link
Drawing
Archived · Original link
PROPOSED LOFT PLAN
Drawing
Not yet archived · Original link
Site Location Plan
Archived · Original link

Have your say

Your comment matters. Councils must consider every representation that raises material planning considerations.

Write a comment