← Tonbridge and Malling Borough Council

Status

Unknown Change of use
Received
31 Oct 2024
New homes
0

Full proposal

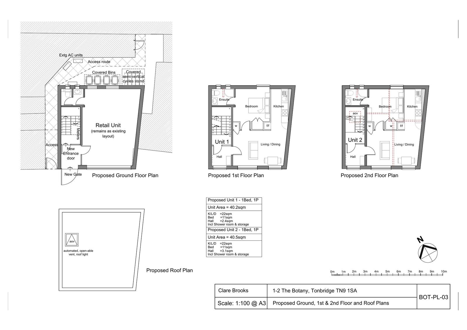
Prior notification: Schedule 2, Part 3, Class G: Change of use from a use within Class E (commercial, business and service) of Schedule 2 to the Use Classes Order, to a mixed use for conversion of the upper floors of existing commercial building into two, one bed residential units

Documents

Acoustic report
Report
Not yet archived · Original link
Application form
Other
Not yet archived · Original link
decision notice
Decision
Not yet archived · Original link
delegated report
Other
Not yet archived · Original link
Design and access statement
Other
Not yet archived · Original link
Environmental Health Protection
Other
Not yet archived · Original link
Existing and proposed elevations Dwg BOT-PL-04
Drawing
Not yet archived · Original link
Existing and proposed elevations Dwg BOT-PL-04
Other
Not yet archived · Original link
Existing floor plans Dwg BOT-PL-02
Drawing
Not yet archived · Original link
Flood Risk Assessment
Other
Not yet archived · Original link
Site location and block plan Dwg BOT-PL-01
Drawing
Not yet archived · Original link
Site notice
Other
Not yet archived · Original link
Superseded Design and access statement
Report
Not yet archived · Original link
Waste Services
Other
Not yet archived · Original link

Have your say

Your comment matters. Councils must consider every representation that raises material planning considerations.

Write a comment