← Tonbridge and Malling Borough Council

Status

Awaiting decision Demolition
Received
03 Dec 2025
New homes
0

Full proposal

Demolition of agricultural barn and erection of 2no. residential dwellings with associated car barn, parking and landscaping.

Documents

APPLICATIONFORMREDACTED
Application Form
Not yet archived · Original link
CONSERVATION OFFICER
Consultee Response
Not yet archived · Original link
ECOLOGICAL ASSESSMENT
Report
Not yet archived · Original link
ENVIRONMENTAL PROTECTION
Consultee Response
Not yet archived · Original link
EXISTING ELEVATIONS
Drawing
Not yet archived · Original link
Drawing
Archived · Original link
HERITAGE STATEMENT
Report
Not yet archived · Original link
HIGHWAYS AND TRANSPORTATION
Consultee Response
Not yet archived · Original link
HIGHWAYS AND TRANSPORTATION
Consultee Response
Not yet archived · Original link
KCC EAS
Consultee Response
Not yet archived · Original link
KCC HERITAGE CONSERVATION
Consultee Response
Not yet archived · Original link
PARISH COUNCIL
Consultee Response
Not yet archived · Original link
PLANNING, DESIGN AND ACCESS STATEMENT
Report
Not yet archived · Original link
PRELIMINARY INVESTIGATIONS REPORT PART 1
Report
Not yet archived · Original link
PRELIMINARY INVESTIGATIONS REPORT PART 2
Report
Not yet archived · Original link
PRESS NOTICE
Other
Not yet archived · Original link
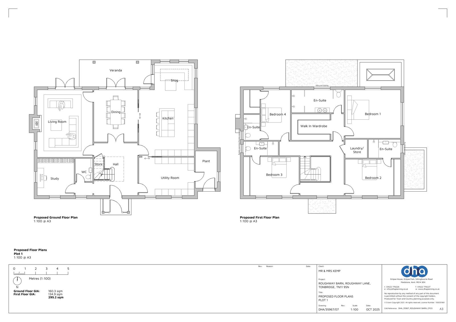
PROPOSED ELEVATIONS PLOT 1
Drawing
Not yet archived · Original link
PROPOSED SITE LAYOUT PLAN
Drawing
Not yet archived · Original link
PROPOSED SITE LAYOUT PLAN- EV CHARGING POINTS
Drawing
Not yet archived · Original link
Site Location Plan
Archived · Original link
SITE NOTICE
Other
Not yet archived · Original link

Have your say

Your comment matters. Councils must consider every representation that raises material planning considerations.

Write a comment