← Tonbridge and Malling Borough Council

Status

Registered New housing
Received
18 Dec 2025
New homes
8

Full proposal

Outline Application: All matters reserved except for access (Erection of 8 dwellings (self-build plots))

Documents

3D BUILDING HEIGHT STUDY
Drawing
Not yet archived · Original link
APPLICATIONFORMREDACTED
Application Form
Not yet archived · Original link
COVERING LETTER
Correspondence with applicant/agent
Not yet archived · Original link
DESIGN AND ACCESS STATEMENT
Report
Not yet archived · Original link
ECOLOGICAL IMPACT ASSESSMENT
Report
Not yet archived · Original link
ENVIRONMENTAL PROTECTION
Consultee Response
Not yet archived · Original link
ENVIRONMENTAL PROTECTION
Consultee Response
Not yet archived · Original link
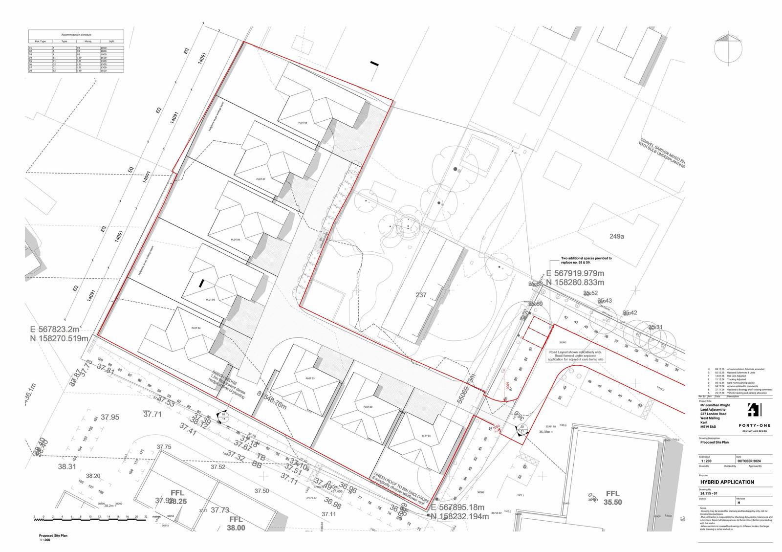
Drawing
Archived · Original link
KCC HIGHWAYS
Consultee Response
Not yet archived · Original link
LEISURE SERVICES
Consultee Response
Not yet archived · Original link
NEIGHBOUR COMMENT (OBJECTION) SUBMITTED ONLINE
Objection Comment
Not yet archived · Original link
OBJECTION COMMENT
Neighbour Response
Not yet archived · Original link
PLANNING STATEMENT
Report
Not yet archived · Original link
PROPOSED FIRE TENDER STRATEGY
Drawing
Not yet archived · Original link
PROPOSED REFUSE STRATEGY
Drawing
Not yet archived · Original link
PROPOSED SITE PERSPECTIVE VIEWS
Drawing
Not yet archived · Original link
Drawing
Archived · Original link
PROPOSED STREET SCENES
Drawing
Not yet archived · Original link
Site Location Plan
Archived · Original link
SITE NOTICE
Other
Not yet archived · Original link
WASTE SERVICES
Consultee Response
Not yet archived · Original link

Have your say

Your comment matters. Councils must consider every representation that raises material planning considerations.

Write a comment