← Tonbridge and Malling Borough Council

Status

Unknown Change of use
Received
19 Nov 2025
New homes
16

Full proposal

Prior Notification under Schedule 2, Part 3, Class MA: Change of use of Class E (Commercial, Business and service) to Class C3 (residential) to create 16 flats

Documents

Application Form - Without Personal Data
Application Form
Not yet archived · Original link
Decision Notice
Decision
Not yet archived · Original link
Delegated Report
Decision
Not yet archived · Original link
Design statement
Report
Not yet archived · Original link
EX E (02) 00 Existing and proposed external elevations
Drawing
Not yet archived · Original link
EX E (02) 01 Existing and proposed internal elevations
Drawing
Not yet archived · Original link
EX P 11 Existing ground floor block plan
Drawing
Not yet archived · Original link
EX P 12 Existing first floor block plan
Drawing
Not yet archived · Original link
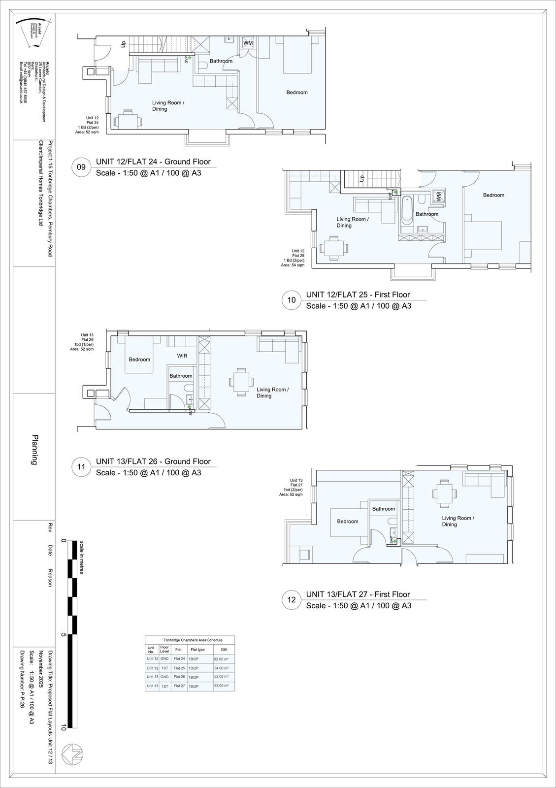
P P 05 Proposed ground floor plan
Drawing
Not yet archived · Original link
P P 06 Proposed first floor plan
Drawing
Not yet archived · Original link
P P 15 Proposed ground floor block plan
Drawing
Not yet archived · Original link
P P 16 Proposed first floor block plan
Drawing
Not yet archived · Original link
Statement of compliance
Report
Not yet archived · Original link

Have your say

Your comment matters. Councils must consider every representation that raises material planning considerations.

Write a comment