← Tonbridge and Malling Borough Council

Status

Unknown Change of use
Received
25 Nov 2025
New homes
0

Full proposal

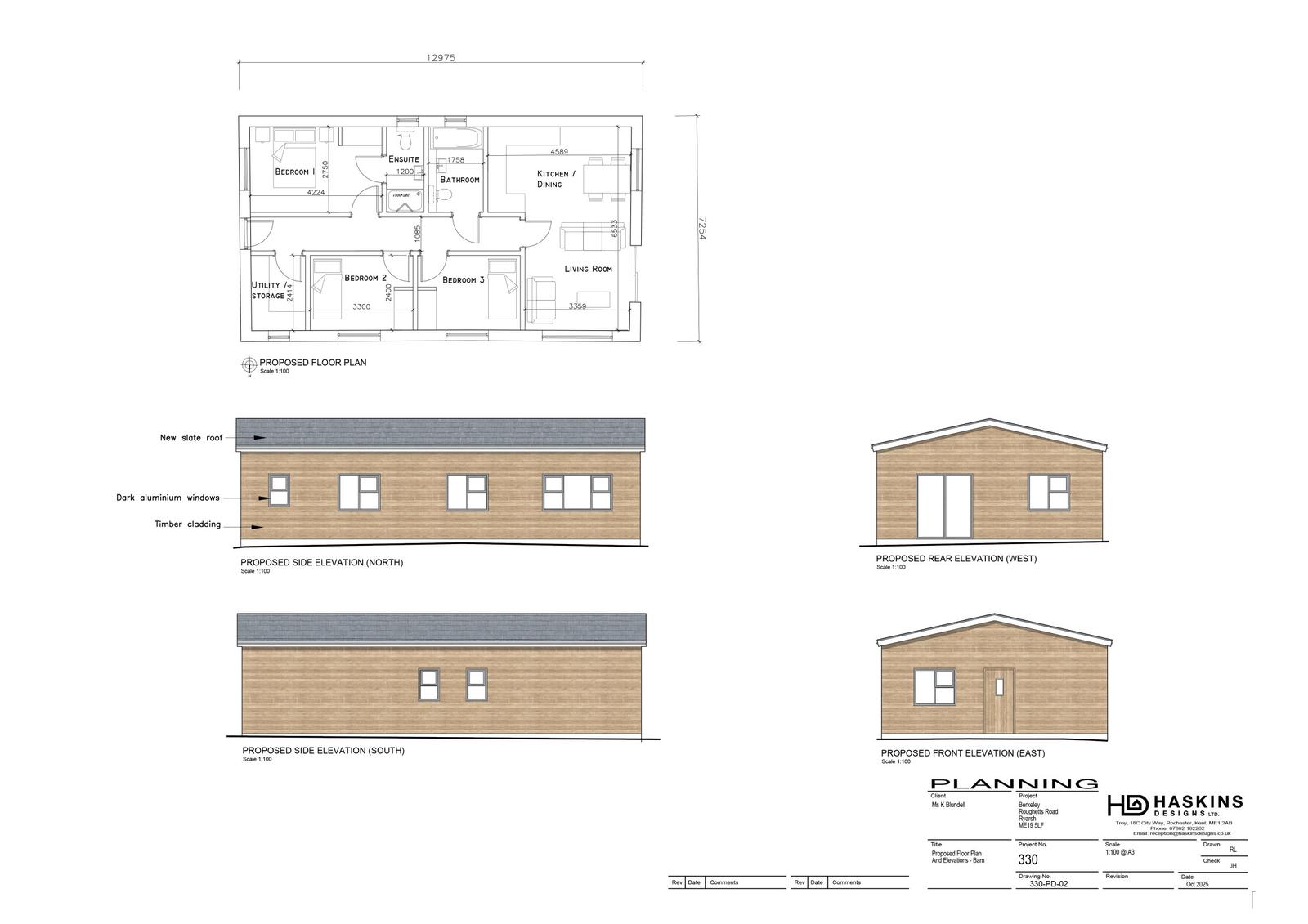
Prior Notification (Part 3 Class Q): Change of use of agricultural barn to create a 3 bedroom/4 person residential dwelling (C3) together with ancillary car parking , bicycle and bin storage facilities

Documents

Application form redacted
Application Form
Not yet archived · Original link
Design and access statement
Report
Not yet archived · Original link
Environmental Health Protection
Consultee Response
Not yet archived · Original link
Drawing
Archived · Original link
EX-02 Existing floor plans and elevations
Drawing
Not yet archived · Original link
Photographs and photomontages
Other
Not yet archived · Original link
Photographs and photomontages
Other
Not yet archived · Original link
Photographs and photomontages
Other
Not yet archived · Original link
Photographs and photomontages
Other
Not yet archived · Original link
Photographs and photomontages
Other
Not yet archived · Original link
Photographs and photomontages
Other
Not yet archived · Original link
Structural assessment
Report
Not yet archived · Original link
Waste Services
Consultee Response
Not yet archived · Original link

Have your say

Your comment matters. Councils must consider every representation that raises material planning considerations.

Write a comment