← Tonbridge and Malling Borough Council

Status

Registered New housing
Received
18 Dec 2025
New homes
3

Full proposal

Construction of three detached dwellings, with associated landscaping alterations

Documents

Drawing
Archived · Original link
APPLICATIONFORMREDACTED
Application Form
Not yet archived · Original link
ARBORICULTURAL REPORT
Report
Not yet archived · Original link
ARTICLE 13 NOTICE
Other
Not yet archived · Original link
BNG METRIC
Other
Not yet archived · Original link
BNG REPORT
Report
Not yet archived · Original link
BNG VALIDITATION RESULTS
Other
Not yet archived · Original link
CERTIFICATE B COVER LETTER
Other
Not yet archived · Original link
COVER LETTER
Other
Not yet archived · Original link
DESIGN AND ACCESS STATEMENT
Report
Not yet archived · Original link
ECOLOGICAL IMPACT ASSESSMENT
Report
Not yet archived · Original link
ENVIRONMENTAL HEALTH
Consultee Response
Not yet archived · Original link
ENVIRONMENTAL PROTECTION
Consultee Response
Not yet archived · Original link
Drawing
Archived · Original link
GEO REPORT PART 1 OF 4
Report
Not yet archived · Original link
GEO REPORT PART 2 OF 4
Report
Not yet archived · Original link
GEO REPORT PART 3 OF 4
Report
Not yet archived · Original link
GEO REPORT PART 4 OF 4
Report
Not yet archived · Original link
GREAT CRESTED NEWT REPORT
Report
Not yet archived · Original link
HADLOW PARISH COUNCIL
Consultee Response
Not yet archived · Original link
PRESS NOTICE
Other
Not yet archived · Original link
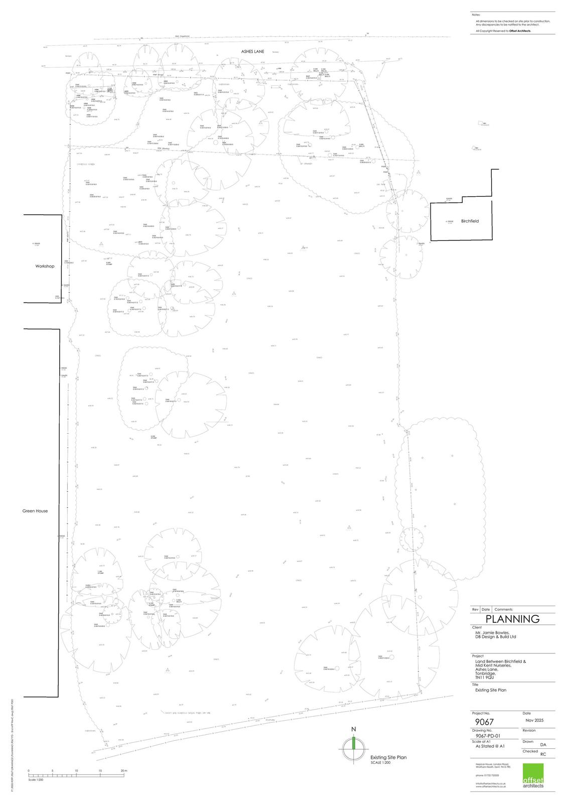
Site Location Plan
Archived · Original link
SITE SECTIONS
Drawing
Not yet archived · Original link
TREE PROTECTION PLAN
Report
Not yet archived · Original link
TREE SURVEY PLAN
Report
Not yet archived · Original link
UNIT 1 PLAN AND ELEVATIONS
Drawing
Not yet archived · Original link
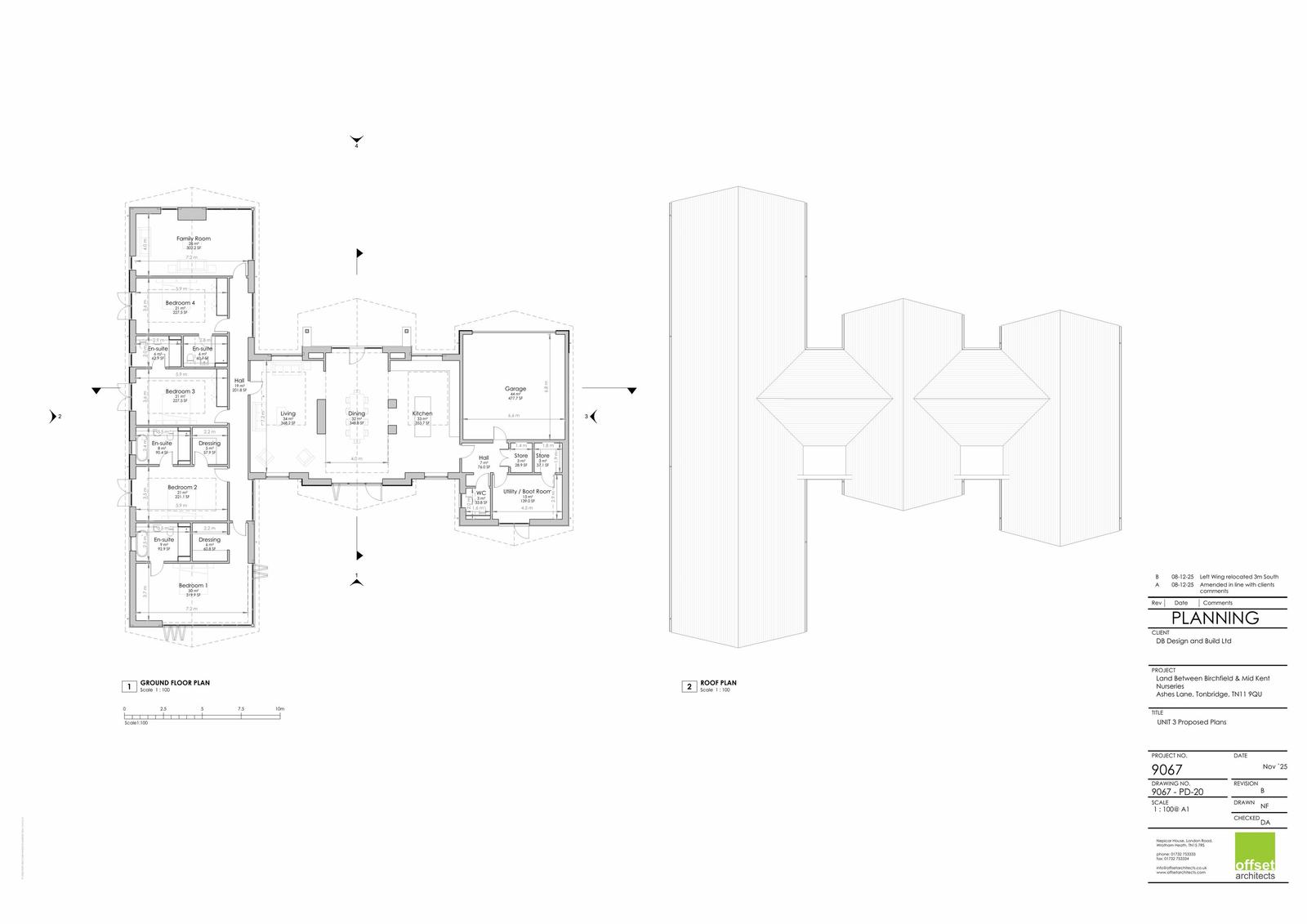
Drawing
Archived · Original link
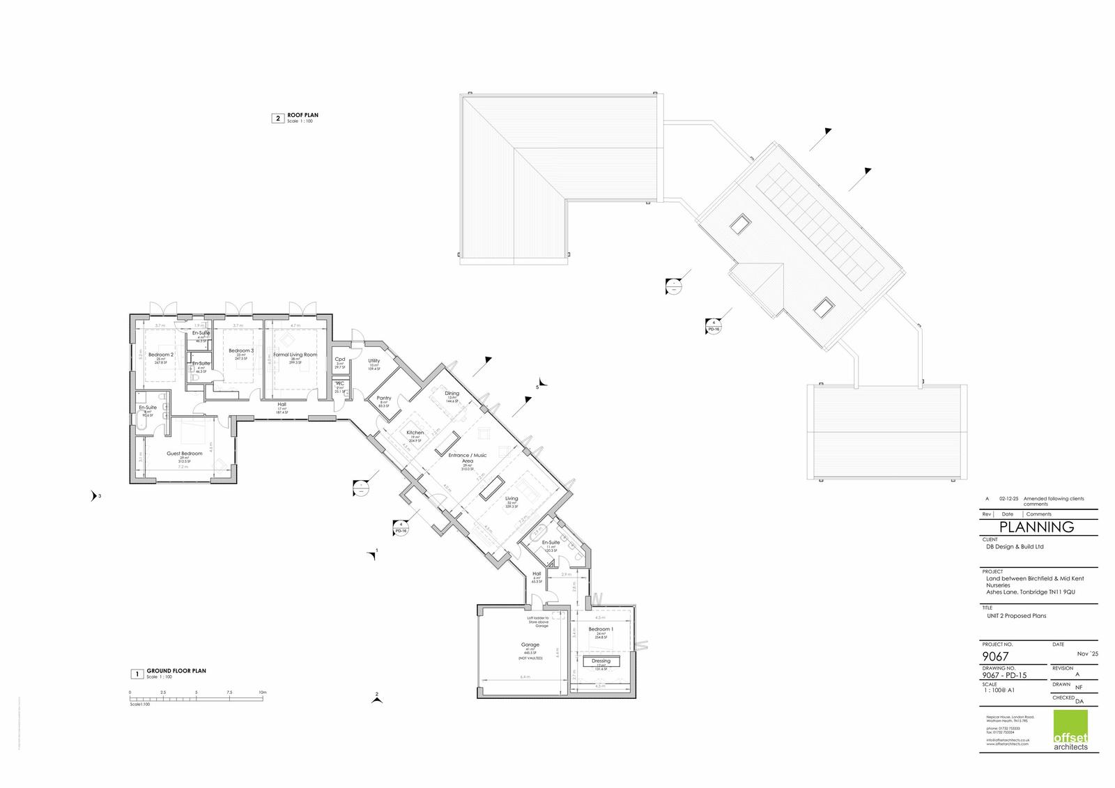
UNIT 2 PROPOSED SECTION AND ELEVATIONS
Drawing
Not yet archived · Original link
Drawing
Archived · Original link
UNIT 3 PROPOSED SECTION AND ELEVATIONS
Drawing
Not yet archived · Original link

Have your say

Your comment matters. Councils must consider every representation that raises material planning considerations.

Write a comment