← Tonbridge and Malling Borough Council

Status

Unknown Change of use
Received
09 Apr 2025
New homes
0

Full proposal

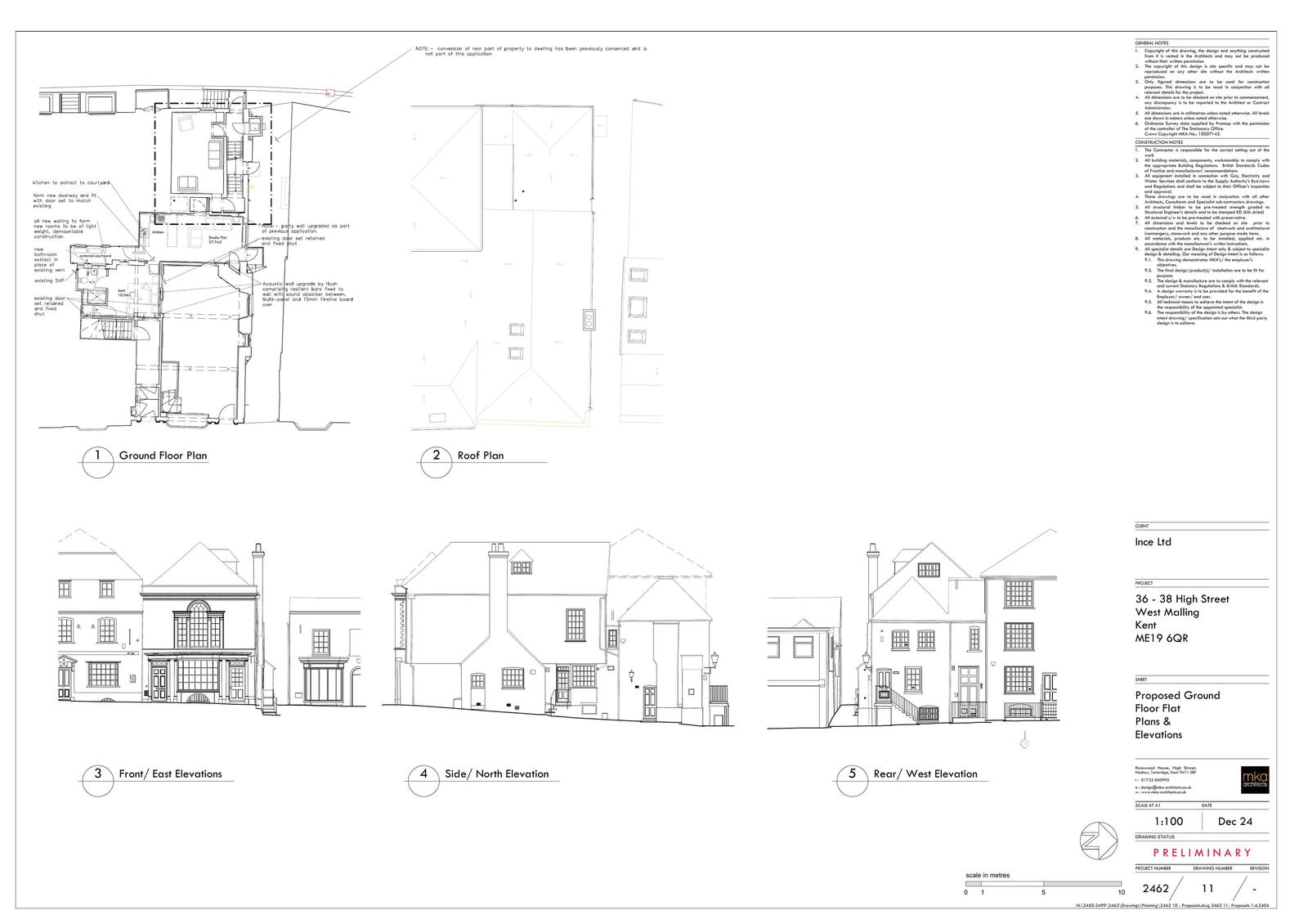
Formation of flat at ground floor and change of use to dwelling

Documents

Application Form - Without Personal Data
Other
Not yet archived · Original link
Conservation officer comments
Consultee Response
Not yet archived · Original link
Decision Notice
Decision
Not yet archived · Original link
Delegated Report
Decision
Not yet archived · Original link
Design and access statement
Report
Not yet archived · Original link
Elevation D
Drawing
Not yet archived · Original link
Environmental Health Protection
Other
Not yet archived · Original link
Existing first floor plan
Drawing
Not yet archived · Original link
Existing front elevation
Drawing
Not yet archived · Original link
Existing ground floor plan
Drawing
Not yet archived · Original link
Existing loft plan
Drawing
Not yet archived · Original link
Existing lower ground floor plan
Drawing
Not yet archived · Original link
Existing rear elevation
Drawing
Not yet archived · Original link
Existing roof plan
Drawing
Not yet archived · Original link
Existing side elevation
Drawing
Not yet archived · Original link
Press Notice
Other
Not yet archived · Original link
Section A-A
Drawing
Not yet archived · Original link
Section B-B
Drawing
Not yet archived · Original link
Section C-C
Drawing
Not yet archived · Original link
Site notice
Other
Not yet archived · Original link
Waste Services comments
Consultee Response
Not yet archived · Original link
West Malling Parish Council
Other
Not yet archived · Original link

Have your say

Your comment matters. Councils must consider every representation that raises material planning considerations.

Write a comment