← Tonbridge and Malling Borough Council

Status

Registered Demolition
Received
06 Jan 2026
New homes
0

Full proposal

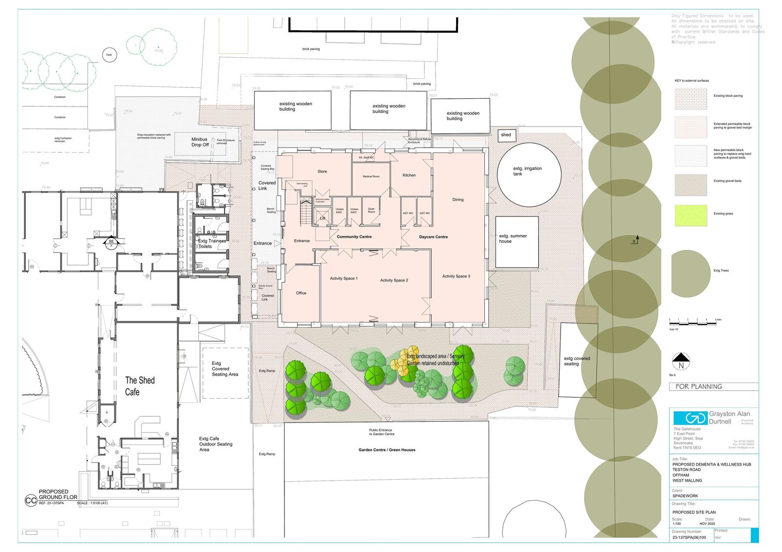
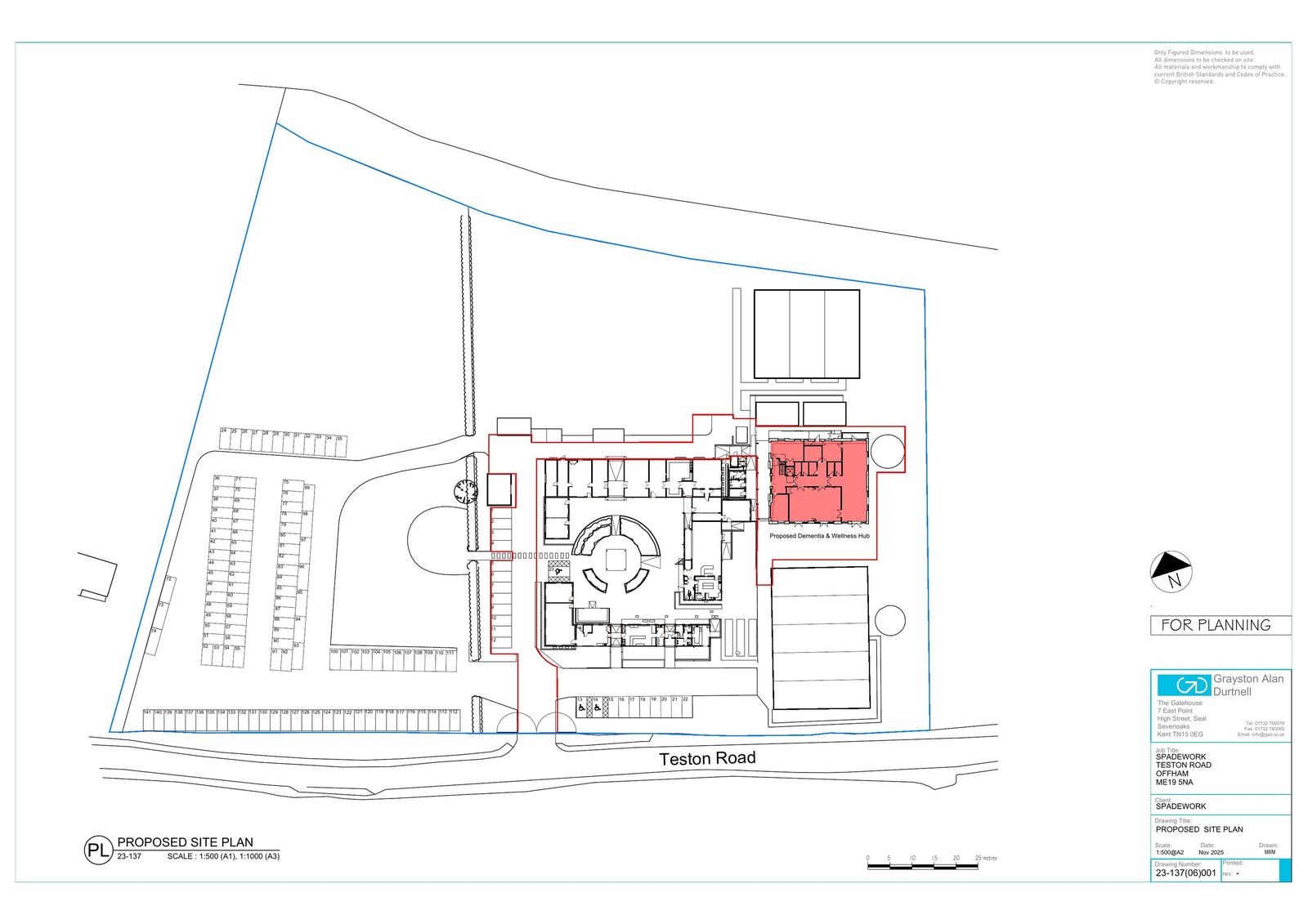
Demolition of existing glasshouses and redevelopment to provide a new building for use as a Dementia and Wellbeing Hub and associated works including landscaping

Documents

0181-RPT-001-05-SPADEWORK-TRANSPORTSTATEMENT
Report
Not yet archived · Original link
APPLICATIONFORMREDACTED
Application Form
Not yet archived · Original link
COMPARATIVE PLAN
Drawing
Not yet archived · Original link
DESIGN AND ACCESS STATEMENT REDACTED
Other
Not yet archived · Original link
EXISTING ELEVATIONS
Drawing
Not yet archived · Original link
EXISTING FLOOR PLAN
Drawing
Not yet archived · Original link
EXISTING FLOOR PLANS
Drawing
Not yet archived · Original link
Drawing
Archived · Original link
LOCATIONPLAN
Site Location Plan
Not yet archived · Original link
PLANNING STATEMENT 2025- PDF
Other
Not yet archived · Original link
PRELIMINARY ECOLOGICAL APPRAISAL
Report
Not yet archived · Original link
PROPOSED BLOCK PLAN
Drawing
Not yet archived · Original link
PROPOSED BUILDING AND SITE SECTIONS
Drawing
Not yet archived · Original link
PROPOSED FIRST FLOOR PLAN
Drawing
Not yet archived · Original link
Drawing
Archived · Original link
PROPOSED GROUND FLOOR PLAN
Drawing
Not yet archived · Original link
PROPOSED NORTH AND EAST ELEVATIONS
Drawing
Not yet archived · Original link
PROPOSED SITE PARKING LAYOUT
Drawing
Not yet archived · Original link
Drawing
Archived · Original link
Drawing
Archived · Original link
PROPOSED SOUTH AND WEST ELEVATIONS
Drawing
Not yet archived · Original link
SITE SECTIONS A-A AND B-B
Drawing
Not yet archived · Original link

Have your say

Your comment matters. Councils must consider every representation that raises material planning considerations.

Write a comment