← Tonbridge and Malling Borough Council

Status

Registered New housing
Received
04 Nov 2025
New homes
5

Full proposal

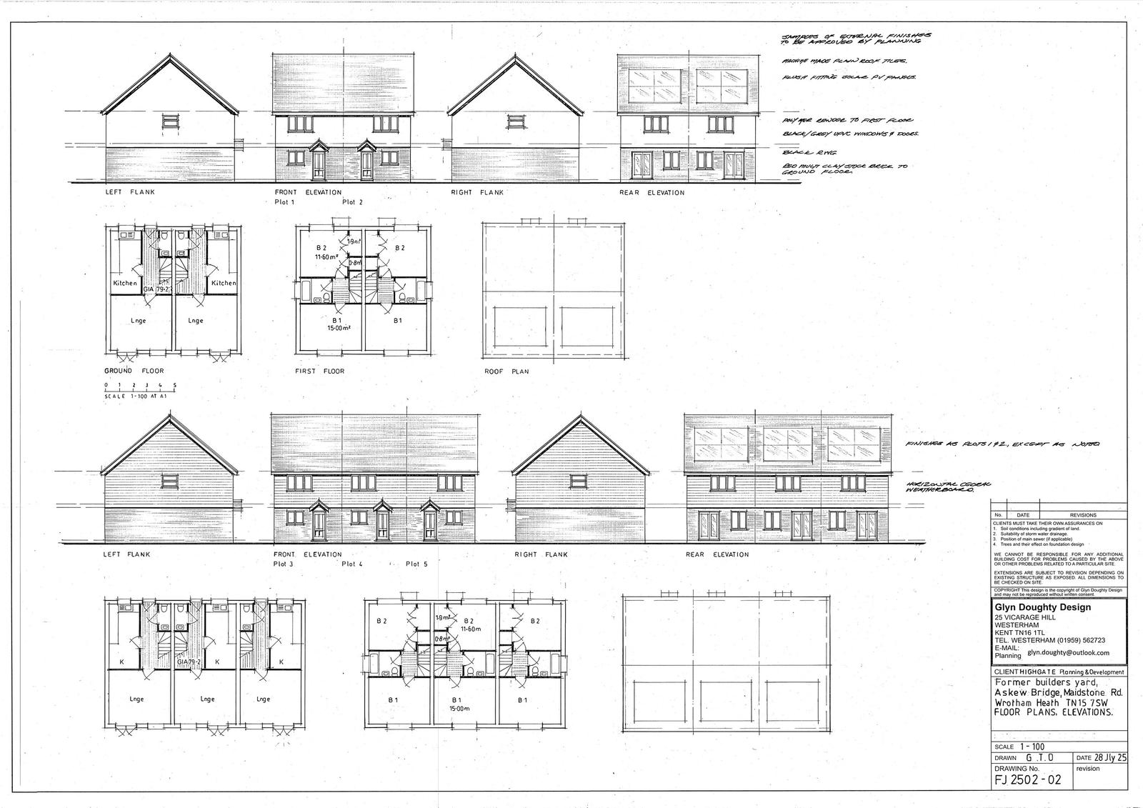
Erection of 5x dwellings with associated parking, access and landscaping

Documents

Drawing
Archived · Original link
Application Form - Without Personal Data
Application Form
Not yet archived · Original link
Bat Survey
Report
Not yet archived · Original link
Biodiversity statement and metric assessment
Report
Not yet archived · Original link
BNG baseline metric calculation
Report
Not yet archived · Original link
BNG metric
Report
Not yet archived · Original link
Design and access statement
Report
Not yet archived · Original link
Environmental Health Protection
Consultee Response
Not yet archived · Original link
KCC HIGHWAYS
Consultee Response
Not yet archived · Original link
Leisure Services
Consultee Response
Not yet archived · Original link
Network Rail
Consultee Response
Not yet archived · Original link
Network Rail
Consultee Response
Not yet archived · Original link
Preliminary ecological appraisal
Report
Not yet archived · Original link
Drawing
Archived · Original link
Site notice
Other
Not yet archived · Original link
TCP/1 Tree constraints plan
Drawing
Not yet archived · Original link
Tree survey and assessment
Report
Not yet archived · Original link
Tree survey data
Report
Not yet archived · Original link
Waste Services
Consultee Response
Not yet archived · Original link

Have your say

Your comment matters. Councils must consider every representation that raises material planning considerations.

Write a comment