← All councils

Recent applications

The most recent records we hold for this council (up to 200).

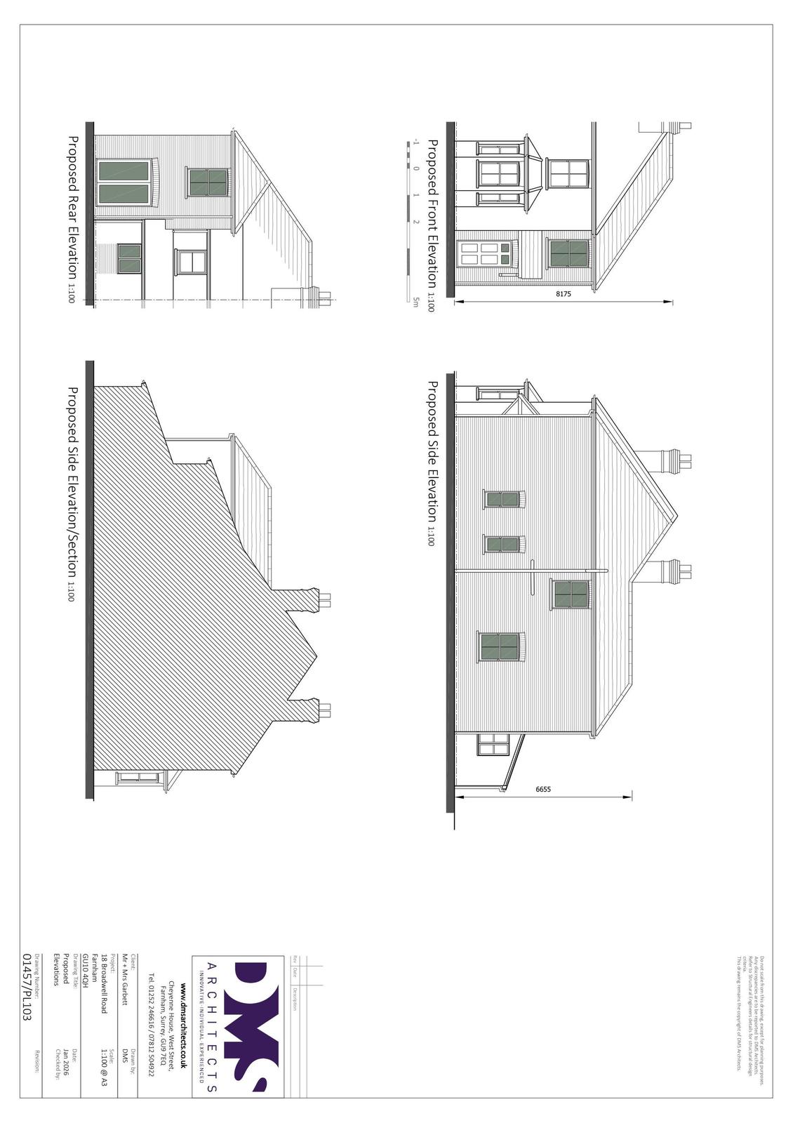
Erection Of Extensions And Alterations Including Basement Installation Of Dormers And Rooflights Together With Increase In Roof Height.

Type House extension
Status PENDING
Received 29 Jan 2026
Plan thumbnail

Change Of Use And Extension Of Former Agricultural Barn To Form An Independent Self-Contained Dwelling Together With Associated Works.

Type Change of use
Status PENDING
Received 22 Jan 2026
Plan thumbnail

Erection Of Two Storey Extension And Alterations.

Type House extension
Status Granted
Received 15 Jan 2026
Plan thumbnail

Erection Of Single Storey Extensions To Existing Single Storey Dwelling With Additional Pv Panels To Roof.

Type House extension
Status Granted
Received 15 Jan 2026
Plan thumbnail

Erection Of Single And Two Storey Extensions And Alterations To Elevations With Associated Works.

Type House extension
Status Granted
Received 15 Jan 2026
Plan thumbnail

Erection Of Extensions And Alterations Following Demolition Of Existing Garage; Erection Of Timber Gates And Alterations To Driveway With As...

Type House extension
Status PENDING
Received Last month
Plan thumbnail

Hip To Gable And Extensions With Installation Of Dormers And Windows To Gable Ends; Installation Of Windows At Ground Floor And Conversion O...

Type House extension
Status PENDING
Received Last month
Plan thumbnail

Erection Of Ground And First Floor Extensions And Alterations With Conversion Of Integral Garage To Habitable Accommodation; Dormer Extensio...

Type House extension
Status PENDING
Received Last month
Plan thumbnail

Erection of a single storey extension.

Type House extension
Status Pending
Received Last month
Plan thumbnail

Erection of first floor extension and raising of roof ridge height including installation of dormers and rooflights to provide 2 additional ...

Type New housing
Status Pending
Received Last month
Plan thumbnail

Erection of extensions and alterations to elevations and fenestrations; installation of photo voltaic panels home battery energy storage sys...

Type House extension
Status Pending
Received Last month
Plan thumbnail

Change Of Use And Alterations To Attached Commercial Unit To Provide Additional Residential Accommodation To Existing Attached Dwelling With...

Type Change of use
Status PENDING
Received Last month
Plan thumbnail

Change Of Use And Erection Of Extensions And Alterations To Existing Mixed Commercial And Residential Building To Provide 7 Residential Unit...

Type Change of use
Status PENDING
Received Last month
Plan thumbnail

Erection Of A Single Storey Extension And Alterations.

Type House extension
Status PENDING
Received Last month
Plan thumbnail

Erection Of Two Storey Extensions And Alterations To Elevations.

Type House extension
Status PENDING
Received Last month
Plan thumbnail

Erection Of An Extension.

Type House extension
Status PENDING
Received Last month
Plan thumbnail

Erection Of A Single Storey Extension And Alterations Together With Hip To Gable And Dormer Extensions And Installation Of Roof Lights Follo...

Type House extension
Status PENDING
Received Last month
Plan thumbnail

Erection of extensions and alterations including porch and installation of dormers; construction of raised patio and closing of secondary pe...

Type House extension
Status Pending
Received 11 Feb 2026
Plan thumbnail

Erection of single storey extensions and alterations.

Type House extension
Status Pending
Received 11 Feb 2026
Plan thumbnail

The erection of a single storey rear extension which would extend beyond the rear wall of the original house by 3.56 M for which the height ...

Type House extension
Status Pending
Received 11 Feb 2026
Plan thumbnail

Erection of extensions and alterations to elevations; erection of bin store; demolition of existing attached garage.

Type House extension
Status Pending
Received 11 Feb 2026
Plan thumbnail

Erection of extension with dormers and external staircase to provide additional habitable accommodation with home office above; construction...

Type House extension
Status Pending
Received 09 Feb 2026
Plan thumbnail

Erection of single storey extensions and alterations to elevations.

Type House extension
Status Pending
Received 09 Feb 2026