← Waverley Borough Council

Status

Pending House extension
Received
09 Feb 2026
New homes
0

Full proposal

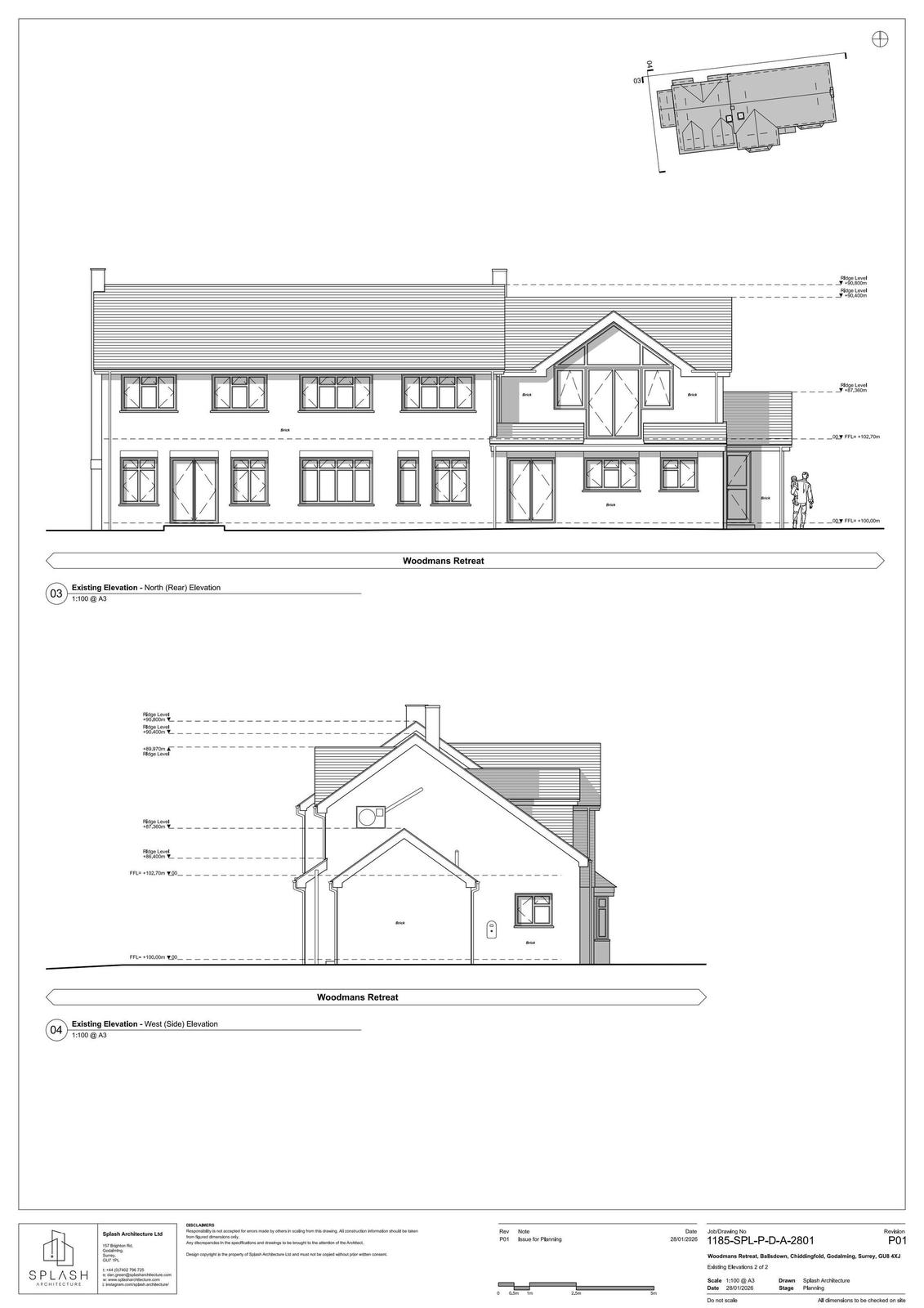
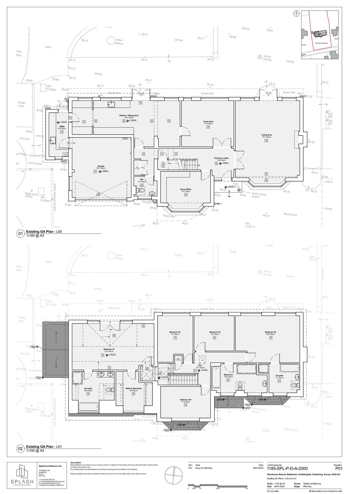
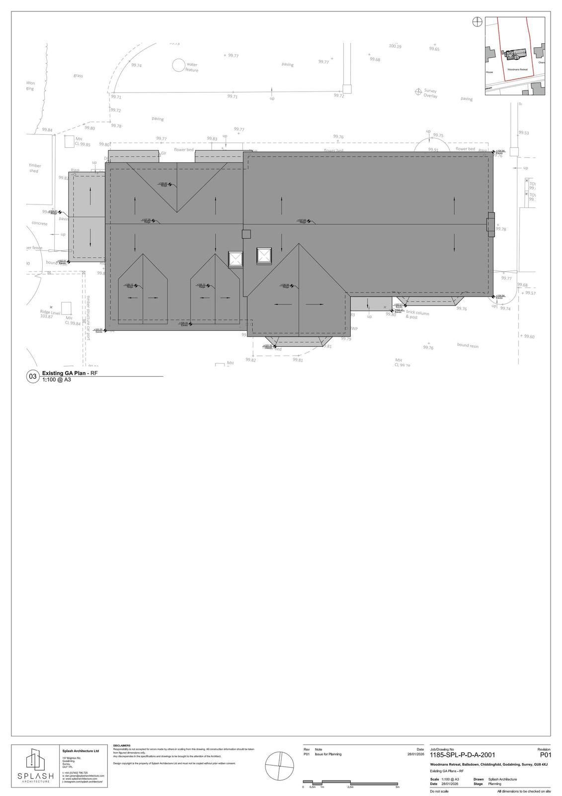
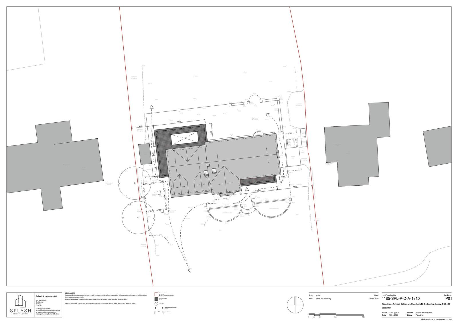
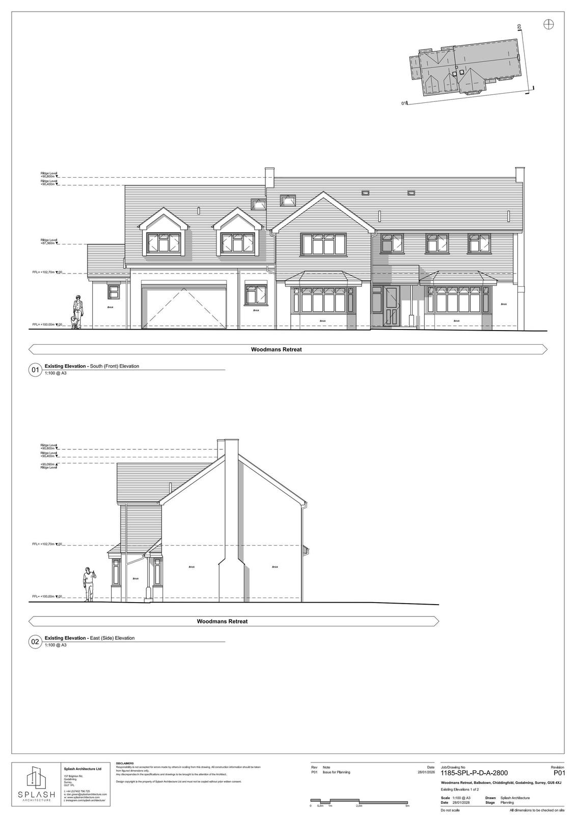
Erection of single storey extensions and alterations to elevations.

Have your say

Your comment matters. Councils must consider every representation that raises material planning considerations.

Write a comment