← Waverley Borough Council

Status

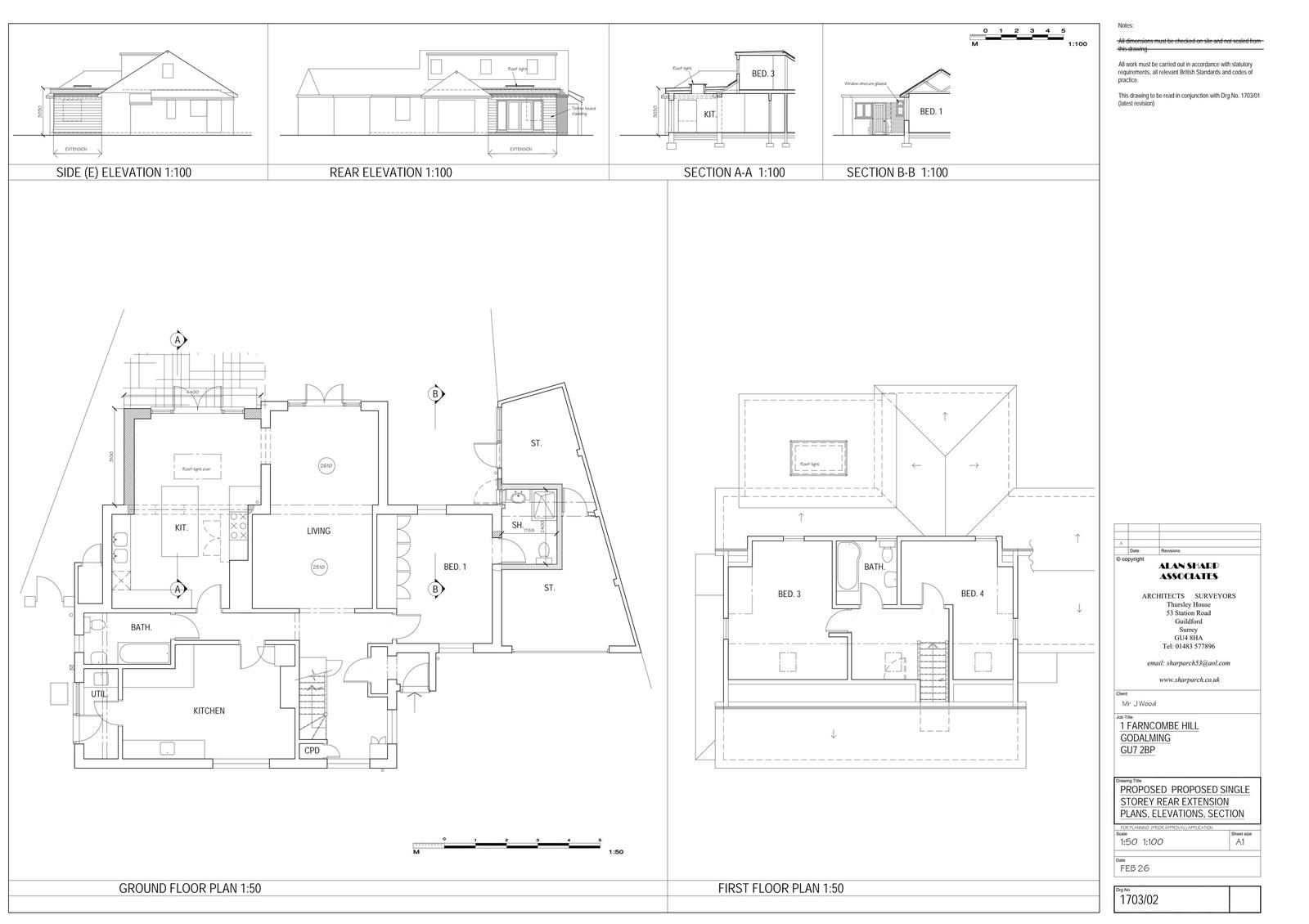
Pending House extension
Received
11 Feb 2026
New homes
0

Full proposal

Erection of single storey extensions and alterations.

Have your say

Your comment matters. Councils must consider every representation that raises material planning considerations.

Write a comment