← Waverley Borough Council

Status

PENDING House extension
Received
Last month
New homes
0

Full proposal

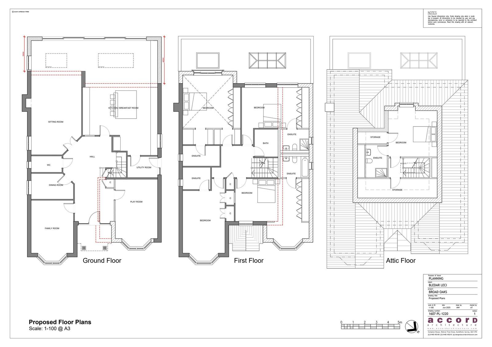
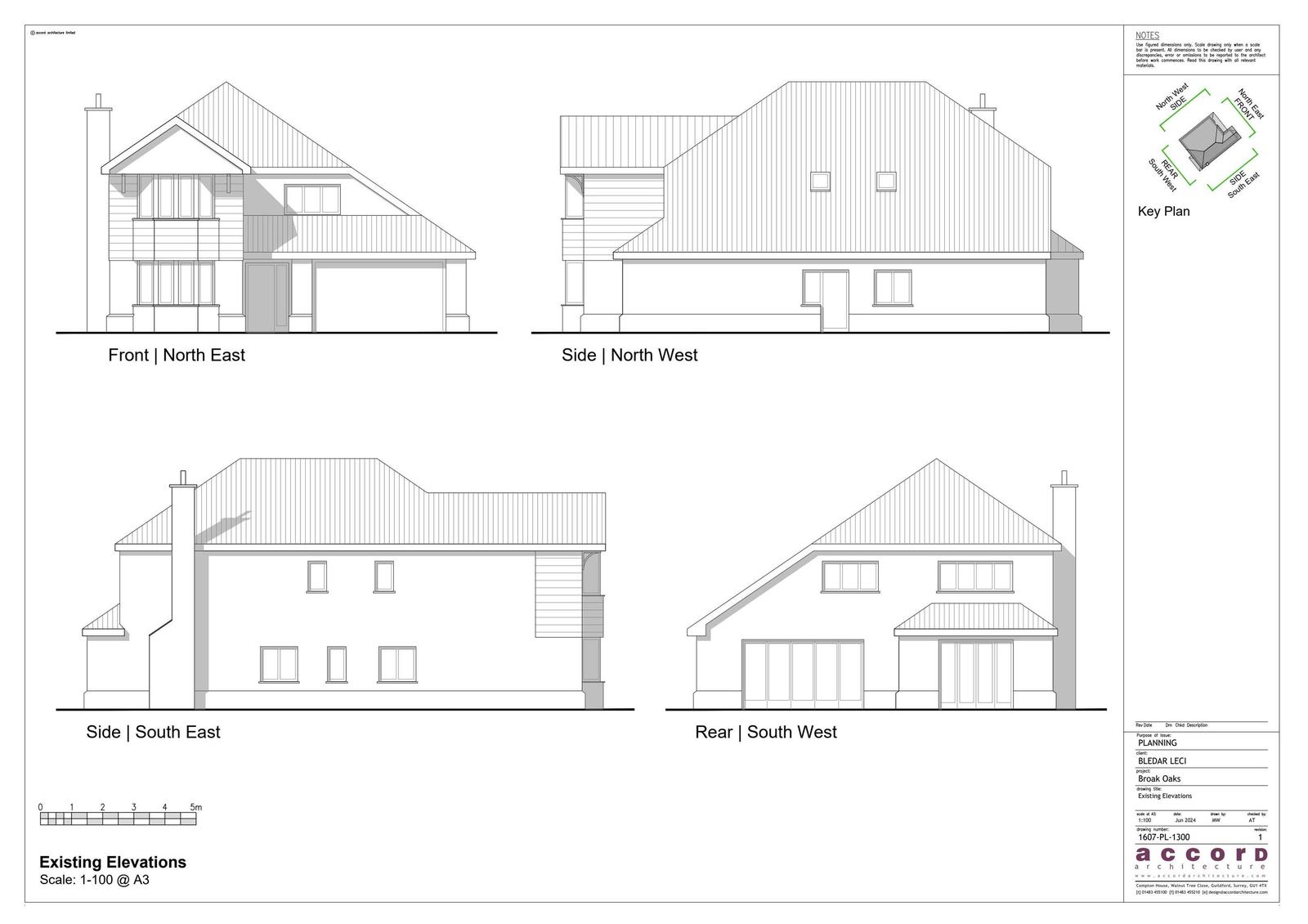
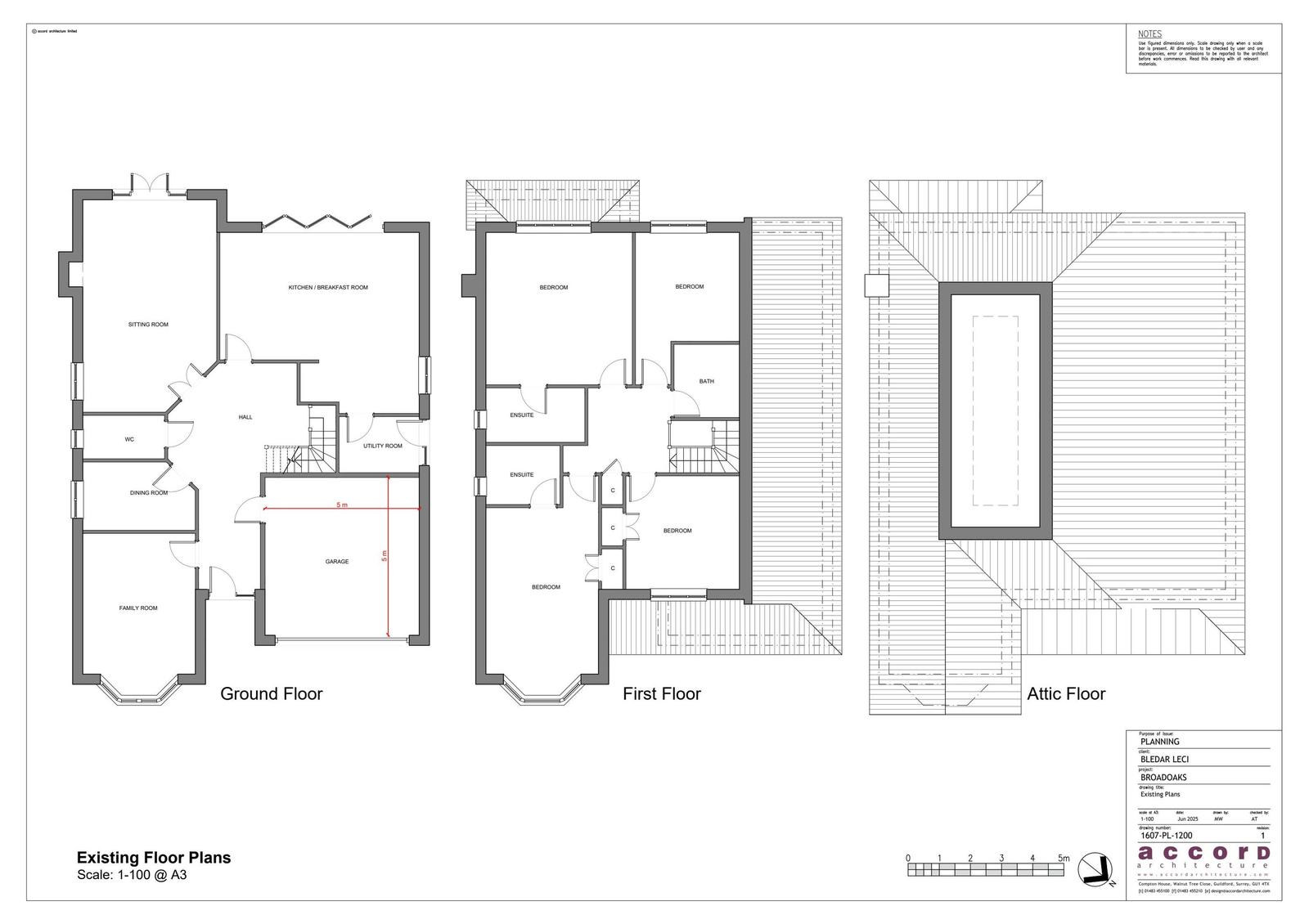
Erection Of Ground And First Floor Extensions And Alterations With Conversion Of Integral Garage To Habitable Accommodation; Dormer Extension And Alterations To Provide Habitable Accommodation In Roof Space.

Have your say

Your comment matters. Councils must consider every representation that raises material planning considerations.

Write a comment