← Waverley Borough Council

Status

Pending House extension
Received
Last month
New homes
0

Full proposal

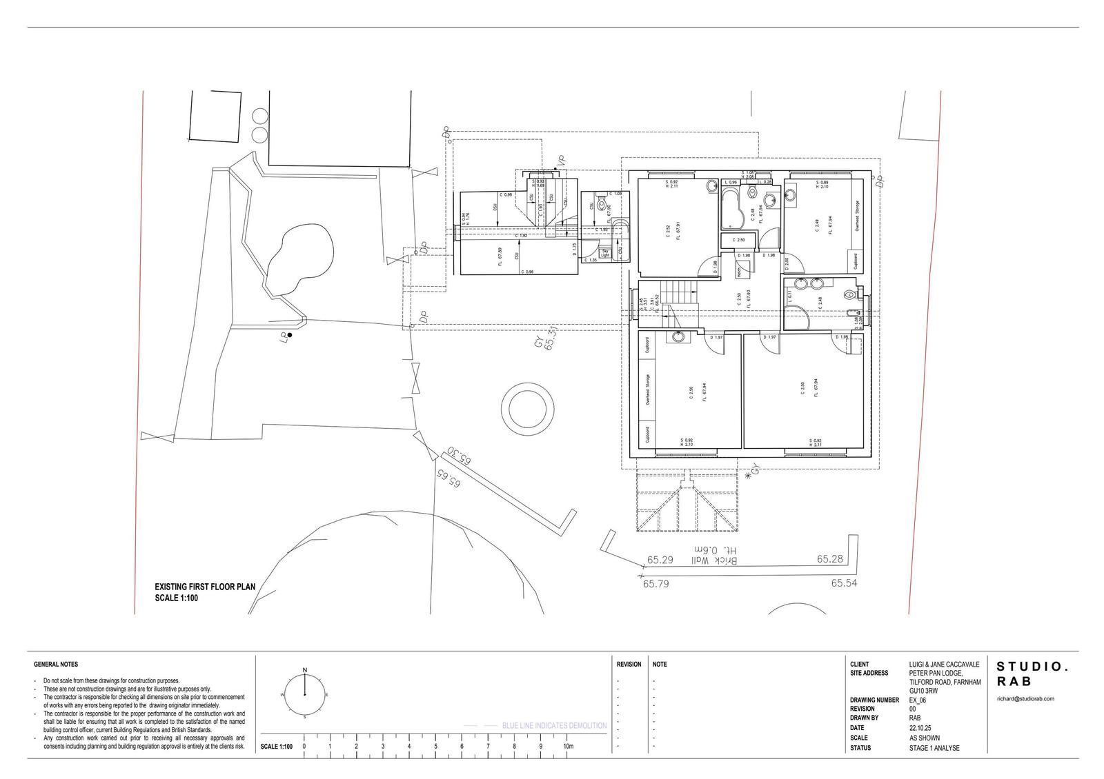
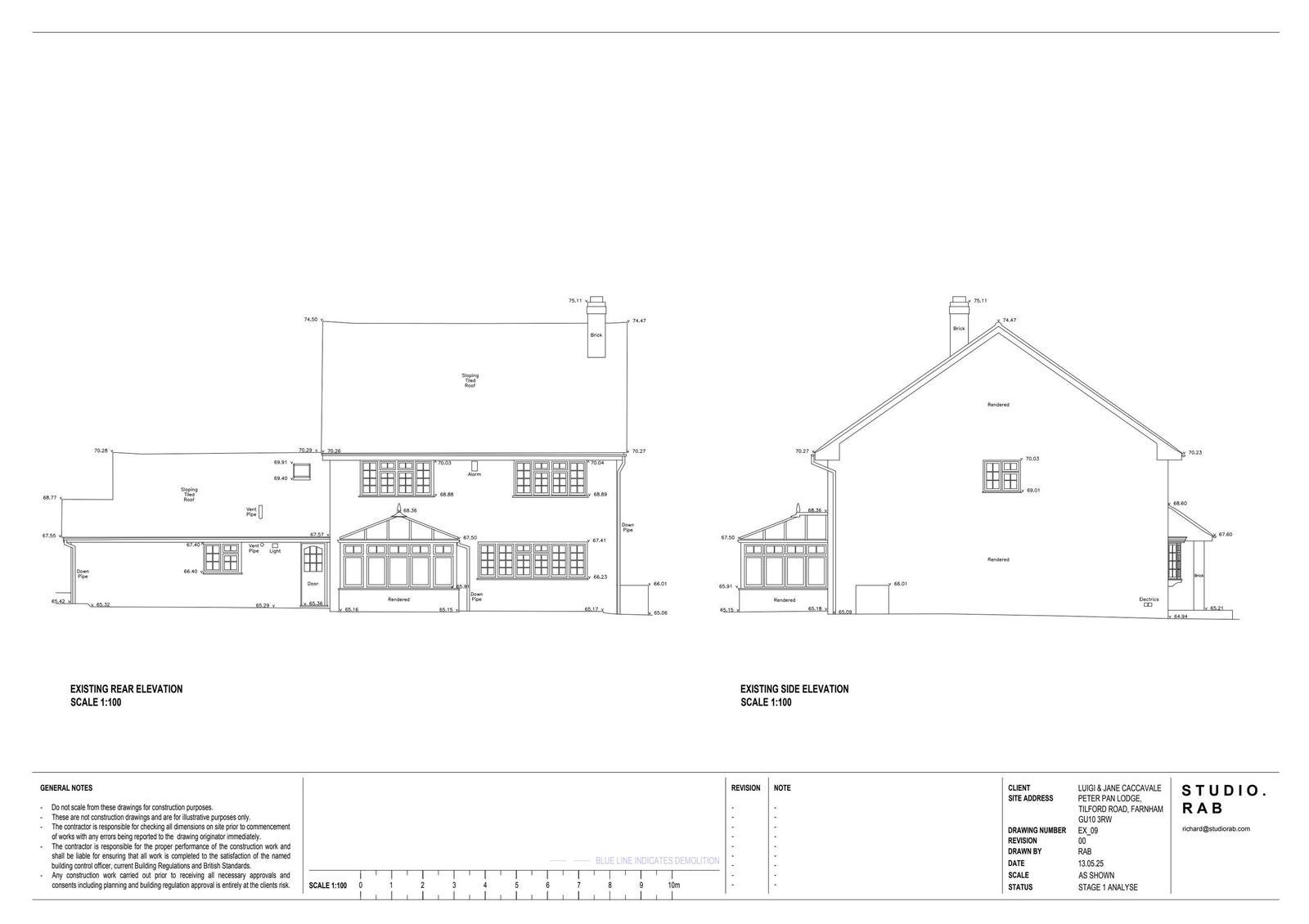
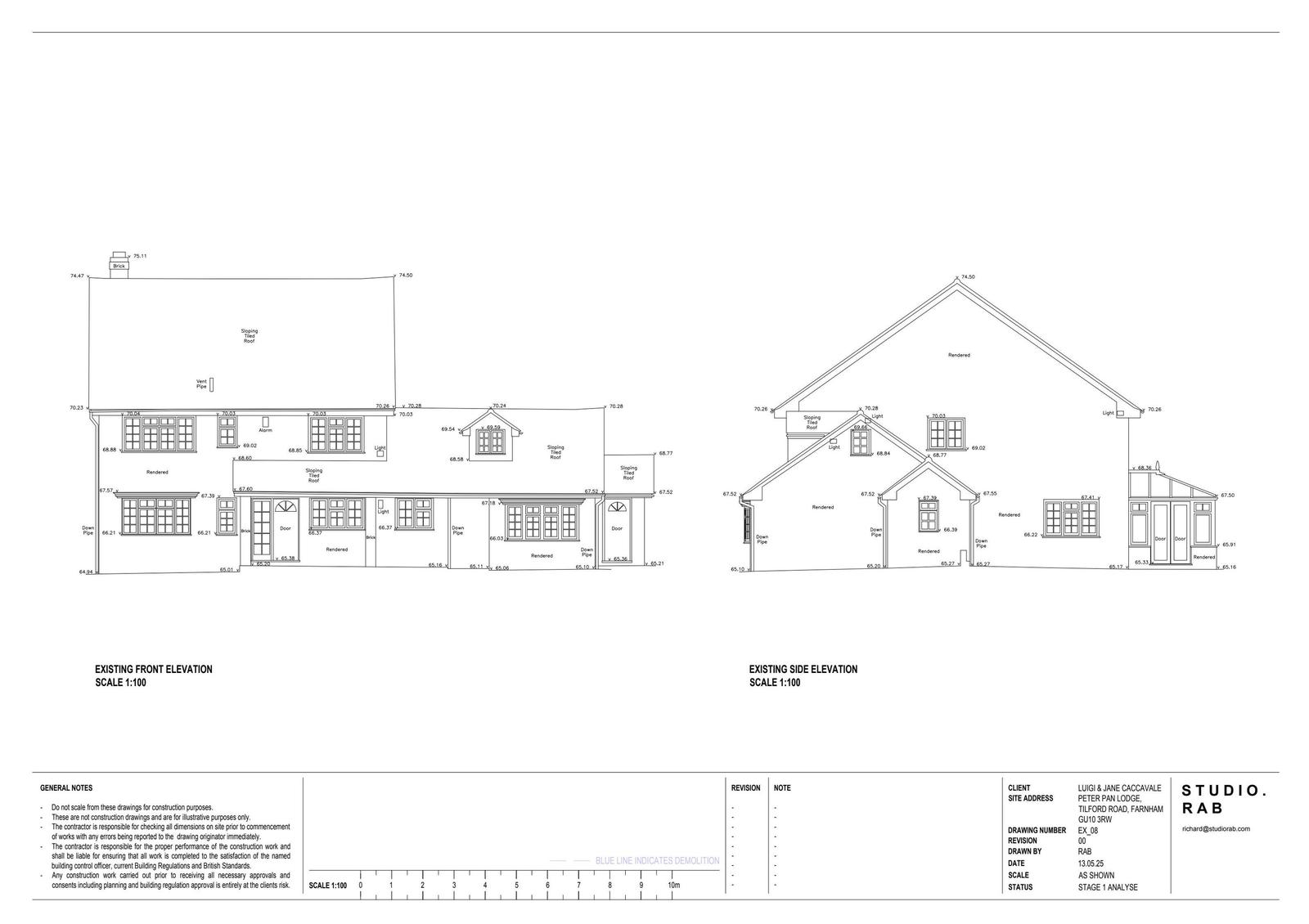
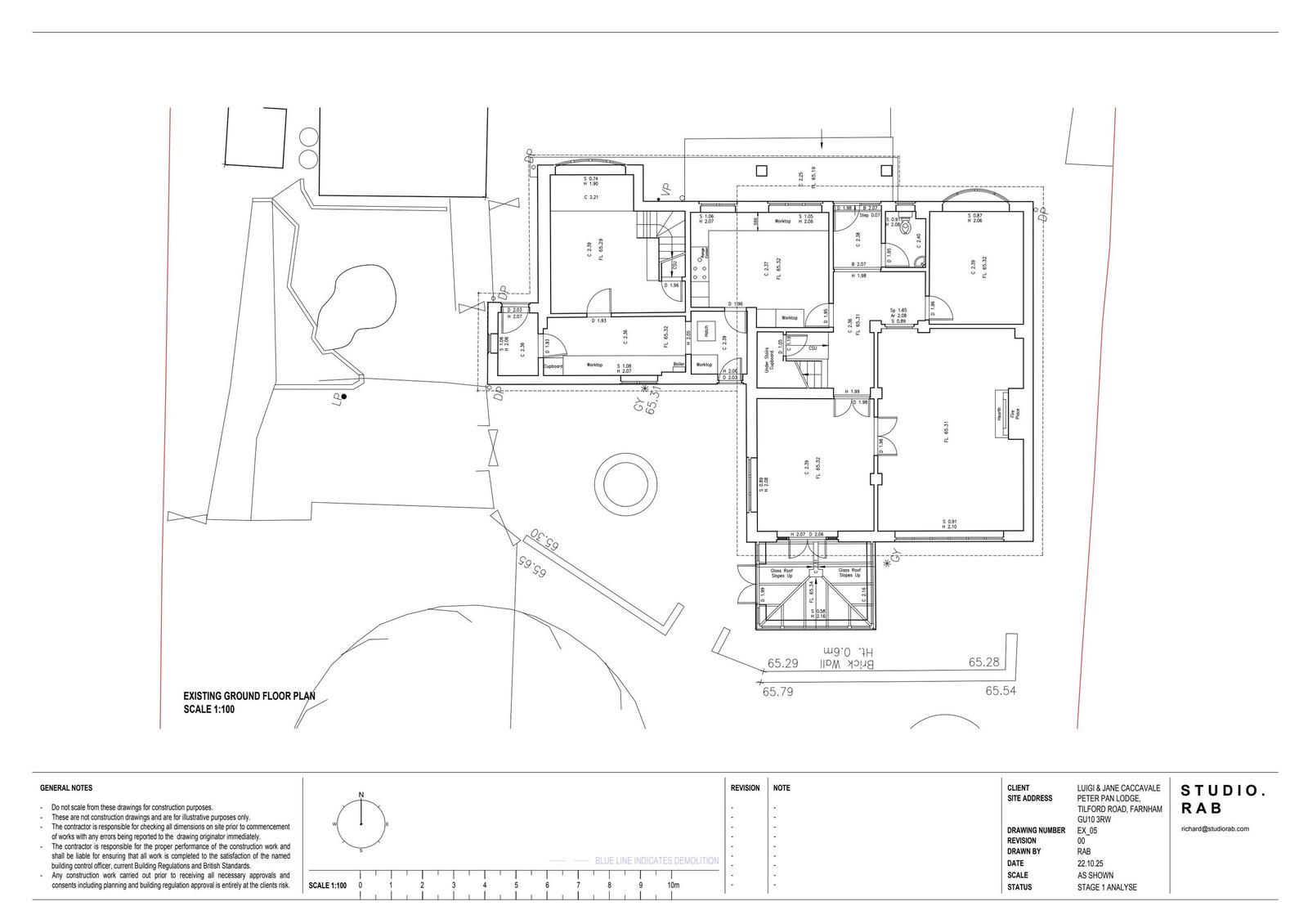
Erection of extensions and alterations to elevations and fenestrations; installation of photo voltaic panels home battery energy storage system air source heat pump and mechanical ventilation with heat recovery system; associated landscaping and demolition of existing single storey elements.

Have your say

Your comment matters. Councils must consider every representation that raises material planning considerations.

Write a comment