← Waverley Borough Council

Status

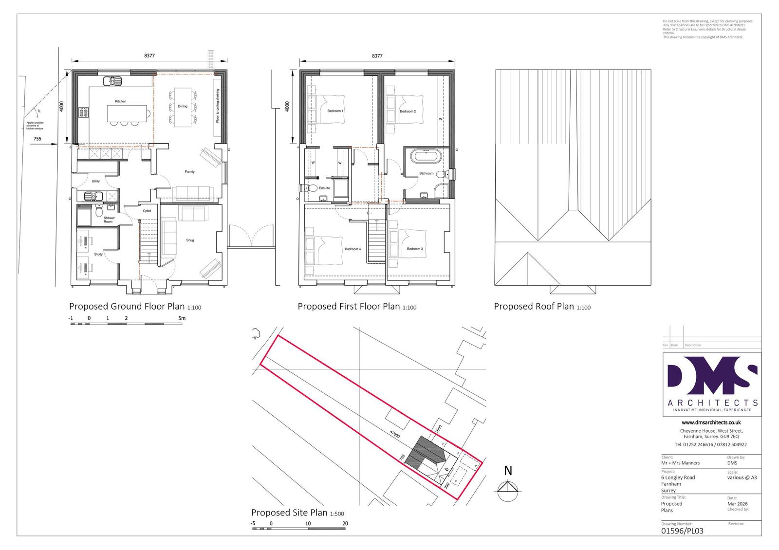
PENDING House extension
Received
Last month
New homes
0

Full proposal

Erection Of Two Storey Extensions And Alterations To Elevations.

Have your say

Your comment matters. Councils must consider every representation that raises material planning considerations.

Write a comment