WA/2026/00036
Waverley Borough Council
Status
PENDING
House extension
Received
Last month
New homes
0
Full proposal
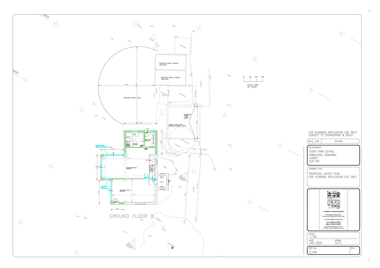
Erection Of Extensions And Alterations Following Demolition Of Existing Garage; Erection Of Timber Gates And Alterations To Driveway With Associated Works (As Amended By Plans Received 12/03/2026)
Documents
Document
Archived
· Original link
Document
Archived
· Original link
Document
Archived
· Original link
Have your say
Your comment matters. Councils must consider every representation that raises material planning considerations.