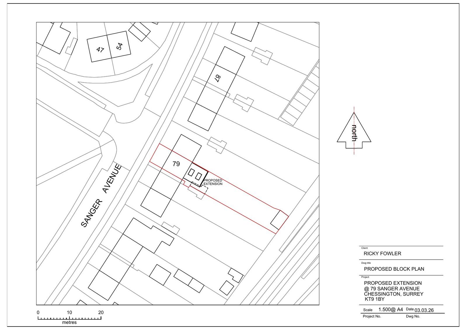
← Kingston upon Thames

Status

Pending Consideration House extension
Received
Last month
New homes
0

Full proposal

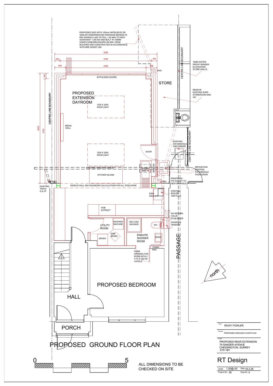
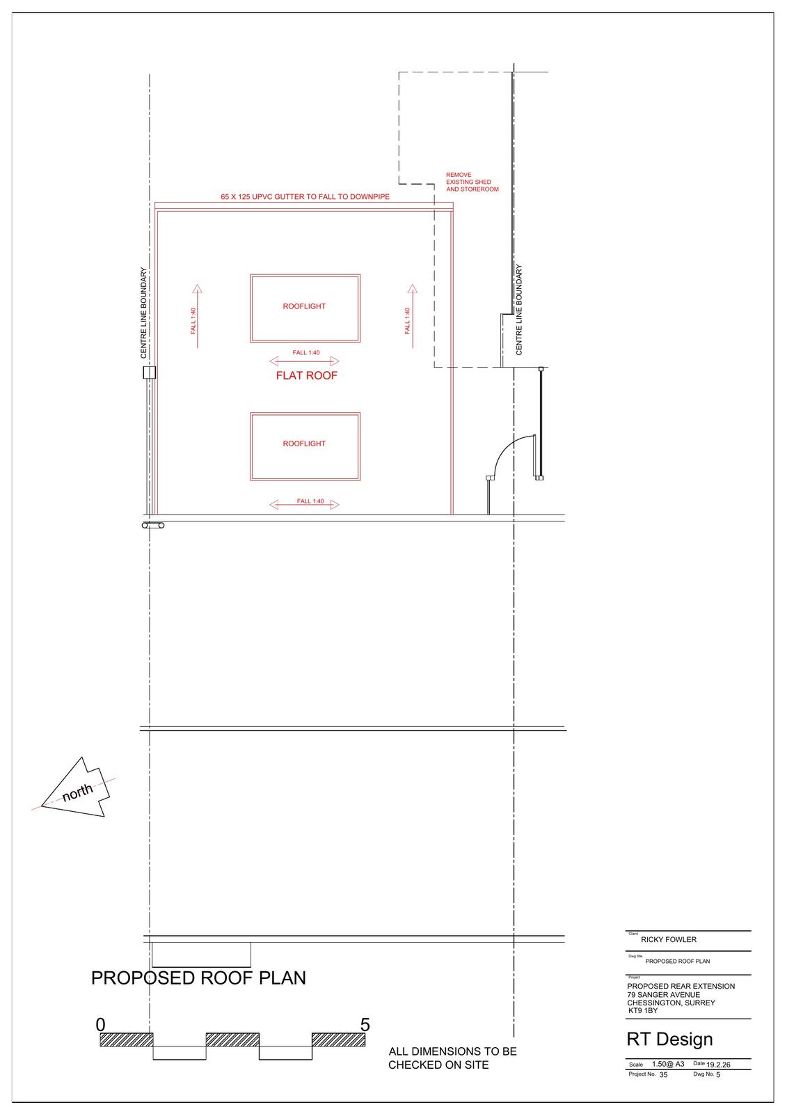
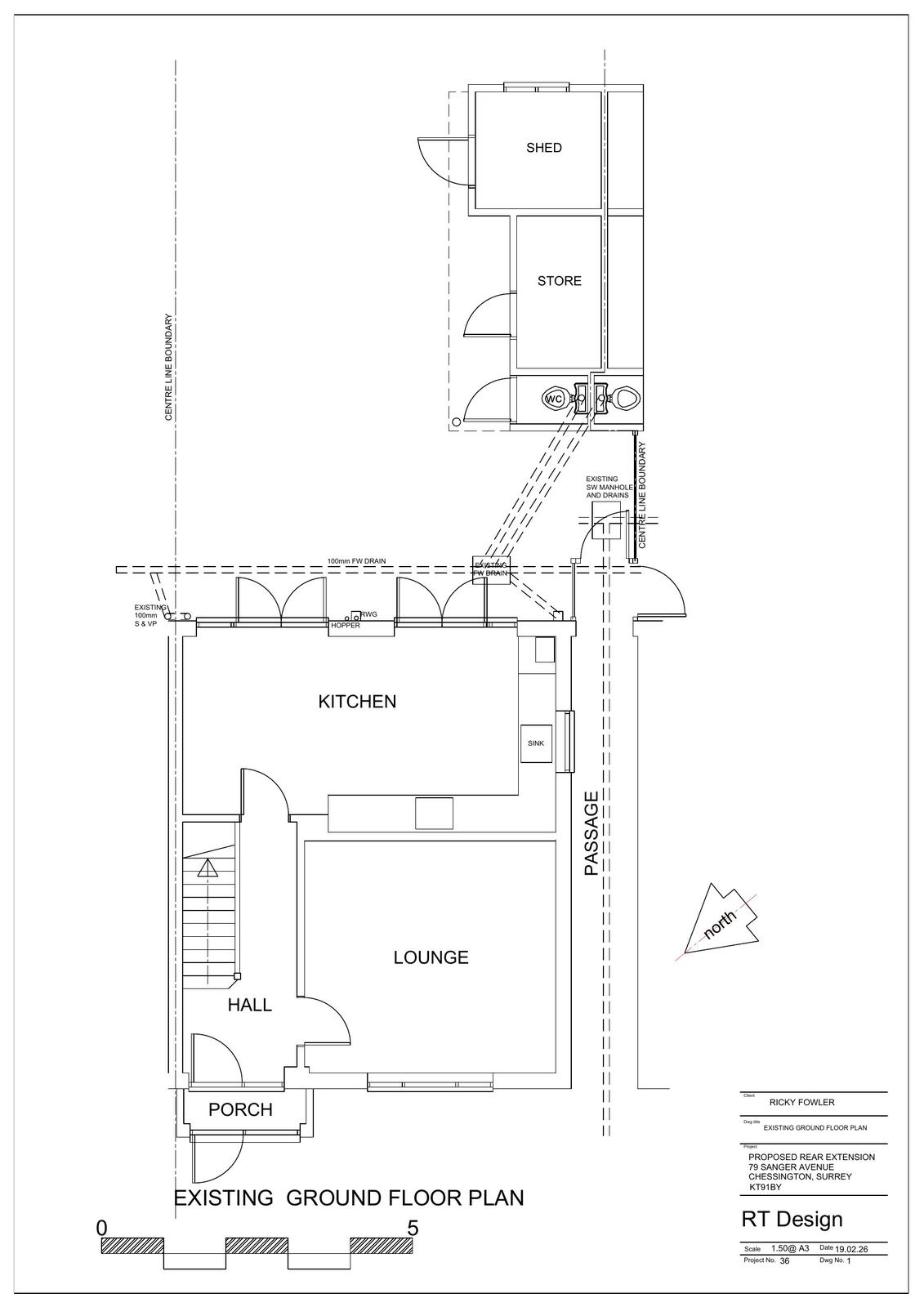
Erection of single storey rear extension (6.0m in depth, maximum height of 3.1m and eaves height of 2.7m)

Have your say

Your comment matters. Councils must consider every representation that raises material planning considerations.

Write a comment