← Kingston upon Thames

Status

Pending Consideration House extension
Received
Last month
New homes
0

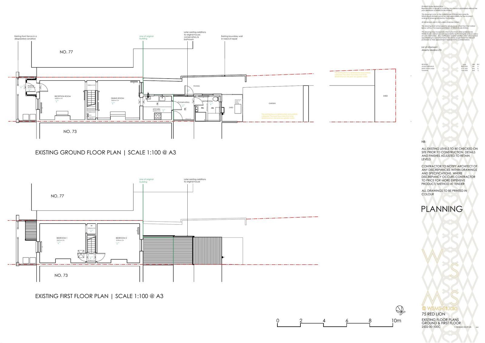
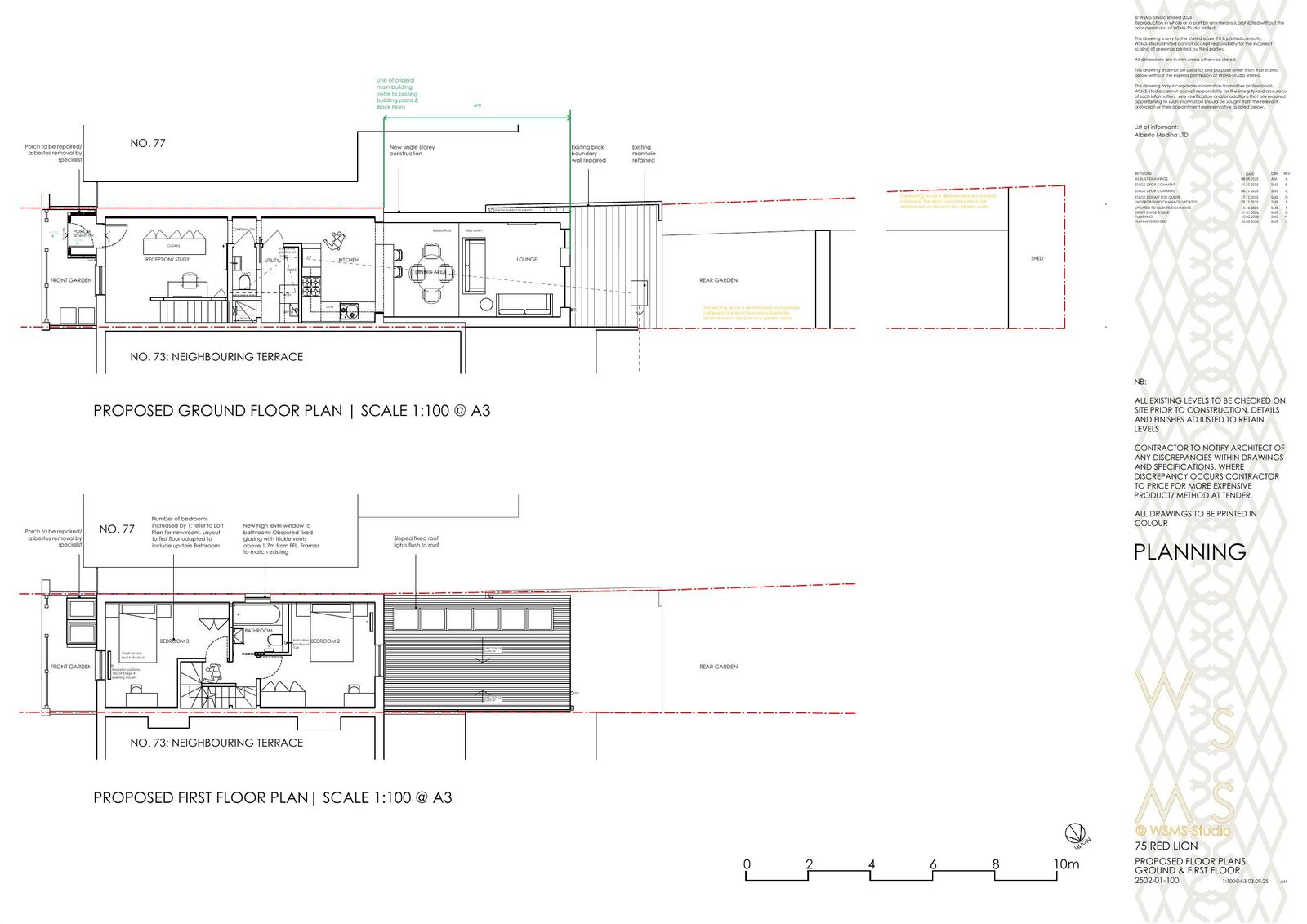
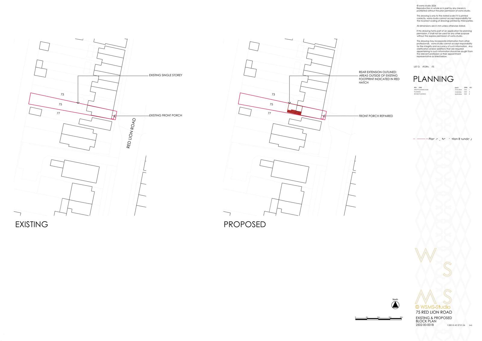
Full proposal

Erection of single storey rear extension (Maximum 6.0m in depth, maximum height of 3.41m and eaves height of 2.90m)

Documents

Application Form
Archived · Original link
Supporting Documents
Archived · Original link
Drawing
Archived · Original link
Drawing
Archived · Original link
Drawing
Archived · Original link
Drawing
Archived · Original link
Drawing
Archived · Original link
Drawing
Archived · Original link

Have your say

Your comment matters. Councils must consider every representation that raises material planning considerations.

Write a comment