← Kingston upon Thames

Status

Pending Consideration House extension
Received
Last month
New homes
0

Full proposal

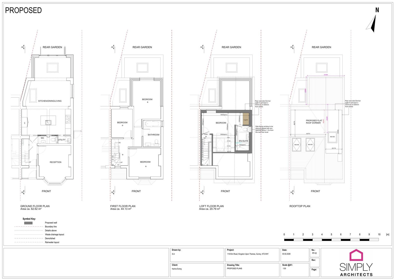
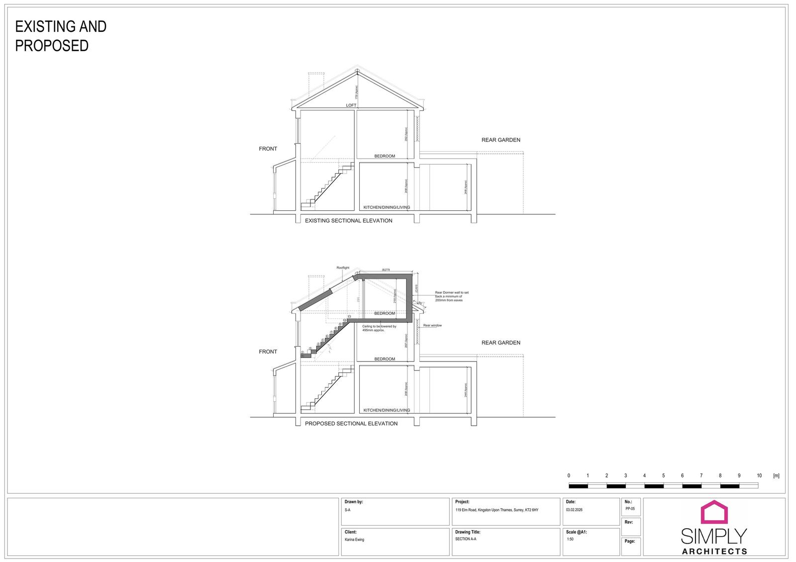
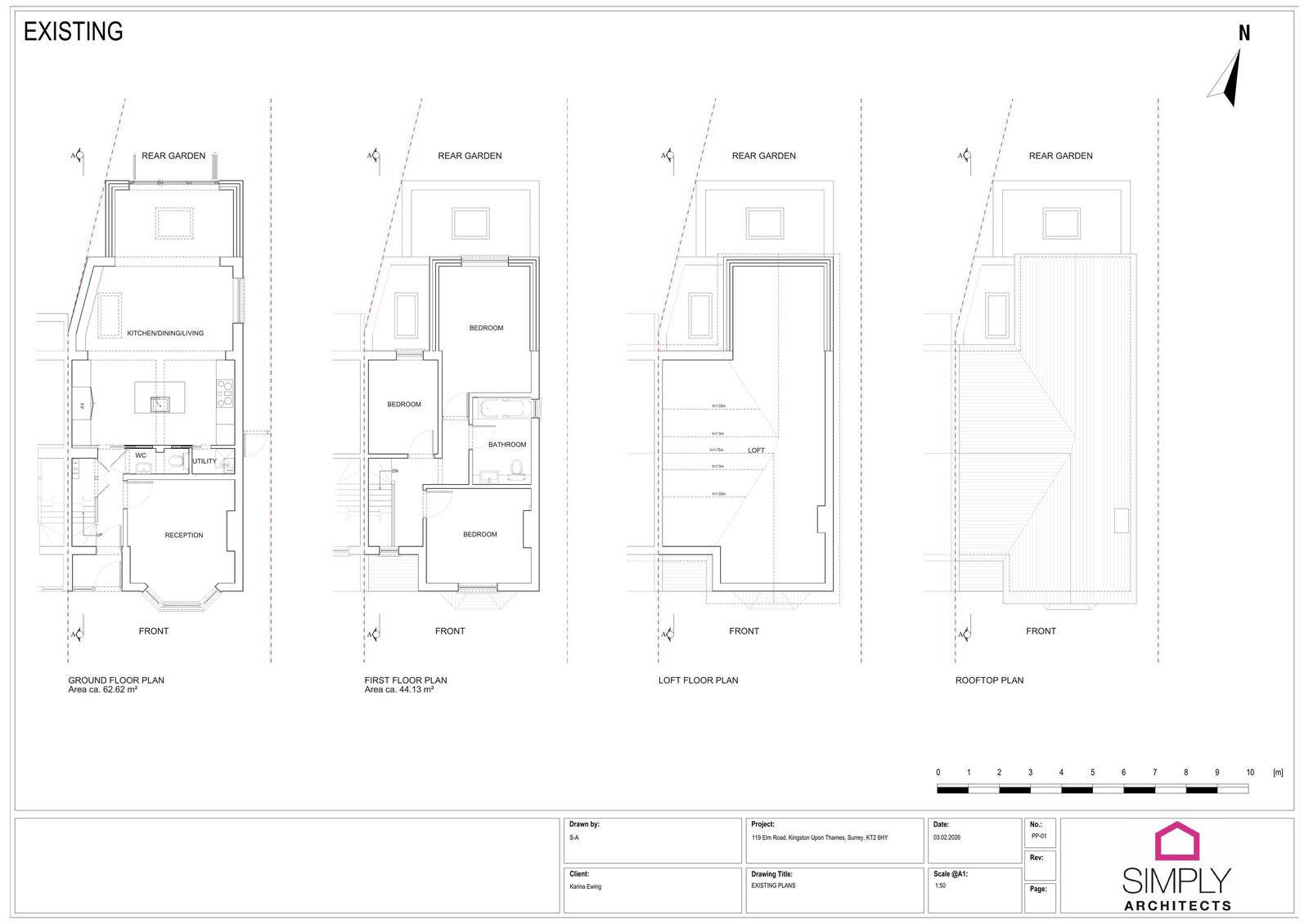
Erection of L shaped dormer and 2No. Roof lights to front elevation

Have your say

Your comment matters. Councils must consider every representation that raises material planning considerations.

Write a comment