← Kingston upon Thames

Status

Pending Consideration House extension
Received
Last month
New homes
0

Full proposal

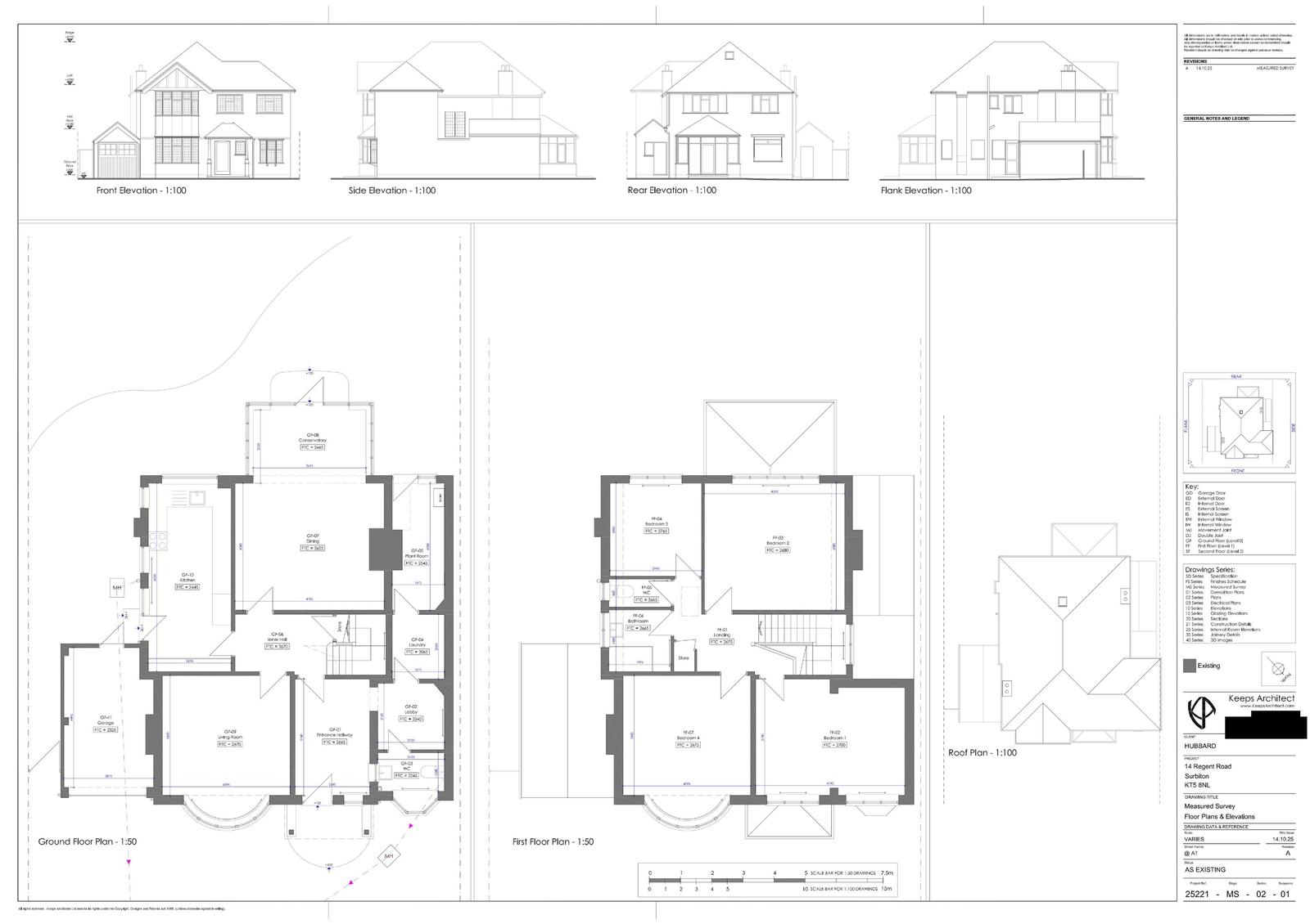
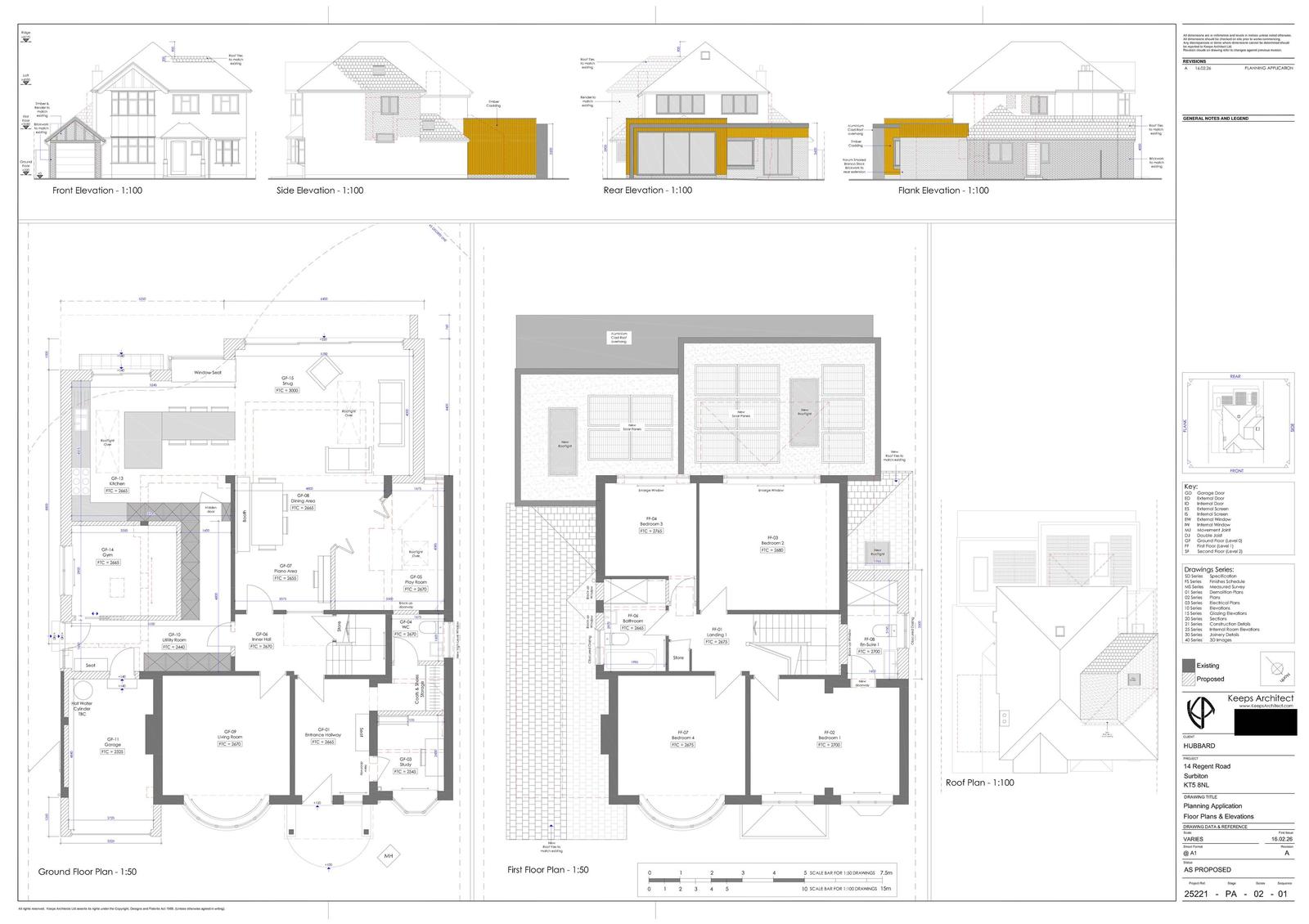
Erection of single storey front, side, rear and first floor side/rear extension.

Documents

Application Form
Archived · Original link
Supporting Documents
Archived · Original link
Supporting Documents
Archived · Original link
Supporting Documents
Archived · Original link
Drawing
Archived · Original link
Supporting Documents
Archived · Original link

Have your say

Your comment matters. Councils must consider every representation that raises material planning considerations.

Write a comment