← Kingston upon Thames

Status

Pending Decision House extension
Received
12 Feb 2026
New homes
0

Full proposal

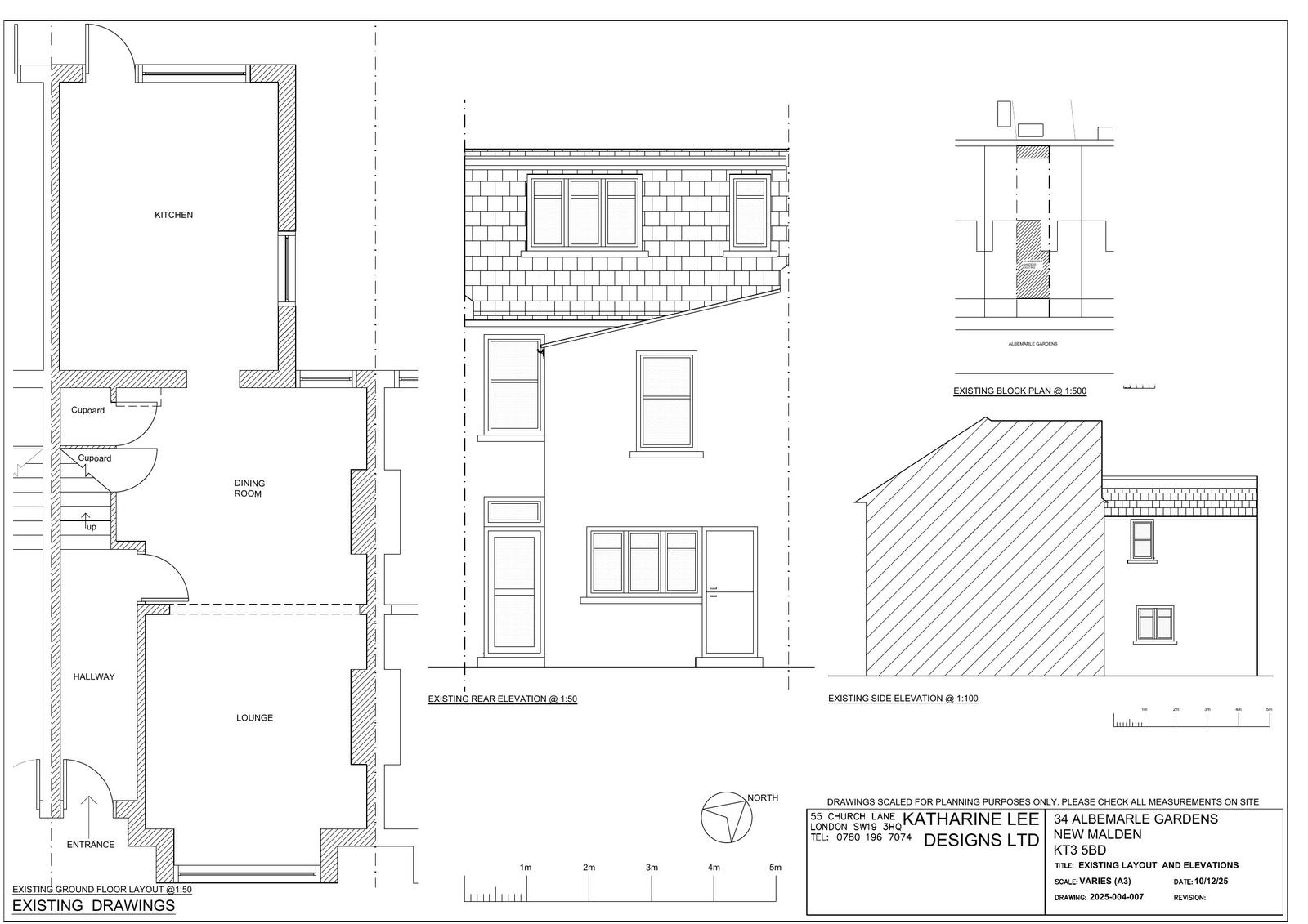
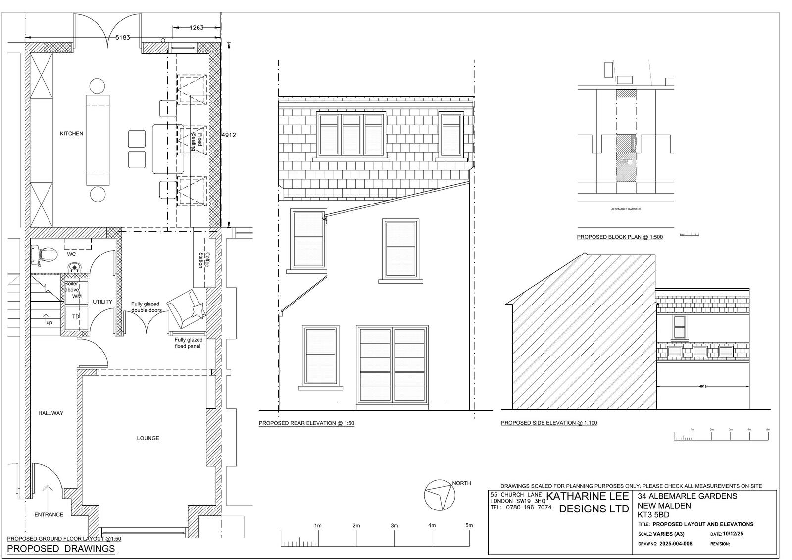
Erection of single storey rear extension (4.91m in depth, maximum height of 3.57m and eaves height of 2.63m)

Have your say

Your comment matters. Councils must consider every representation that raises material planning considerations.

Write a comment