← Kingston upon Thames

Status

Pending Consideration House extension
Received
03 Feb 2026
New homes
0

Full proposal

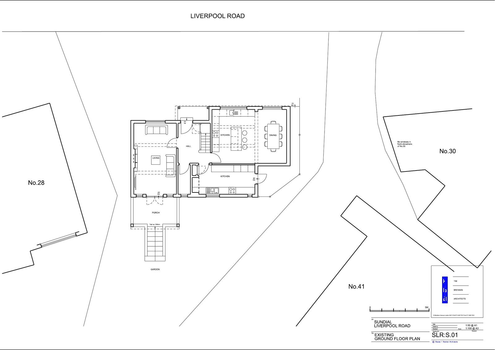
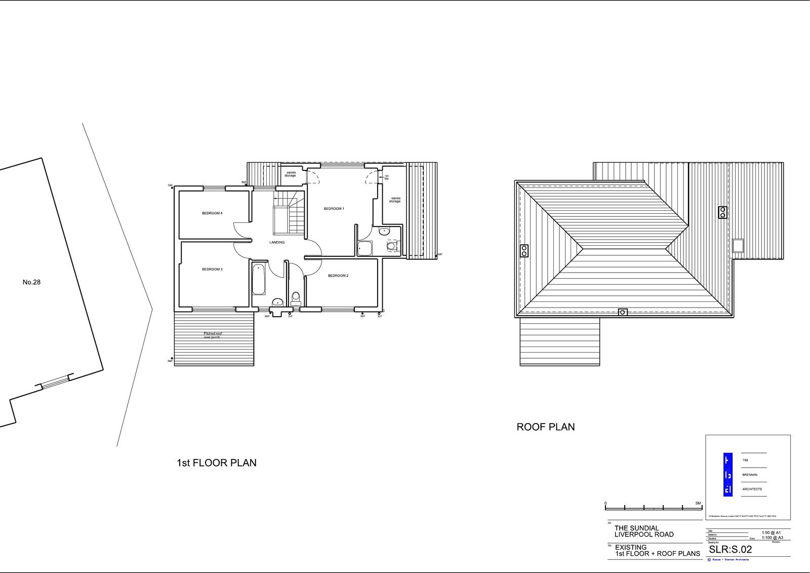
Demolition of an existing rear porch and erection of two storey rear extension with steps leading down to the garden. Erection of single storey infill rear extension with existing cat slide roof extended over it. Erection of first floor side dormer window extension and alterations to the rear elevation fenestration.

Documents

Supporting Documents
Archived · Original link
Supporting Documents
Archived · Original link
Application Form
Archived · Original link
Supporting Documents
Archived · Original link
Supporting Documents
Archived · Original link
Supporting Documents
Archived · Original link
Drawing
Archived · Original link

Have your say

Your comment matters. Councils must consider every representation that raises material planning considerations.

Write a comment