← Kingston upon Thames

Status

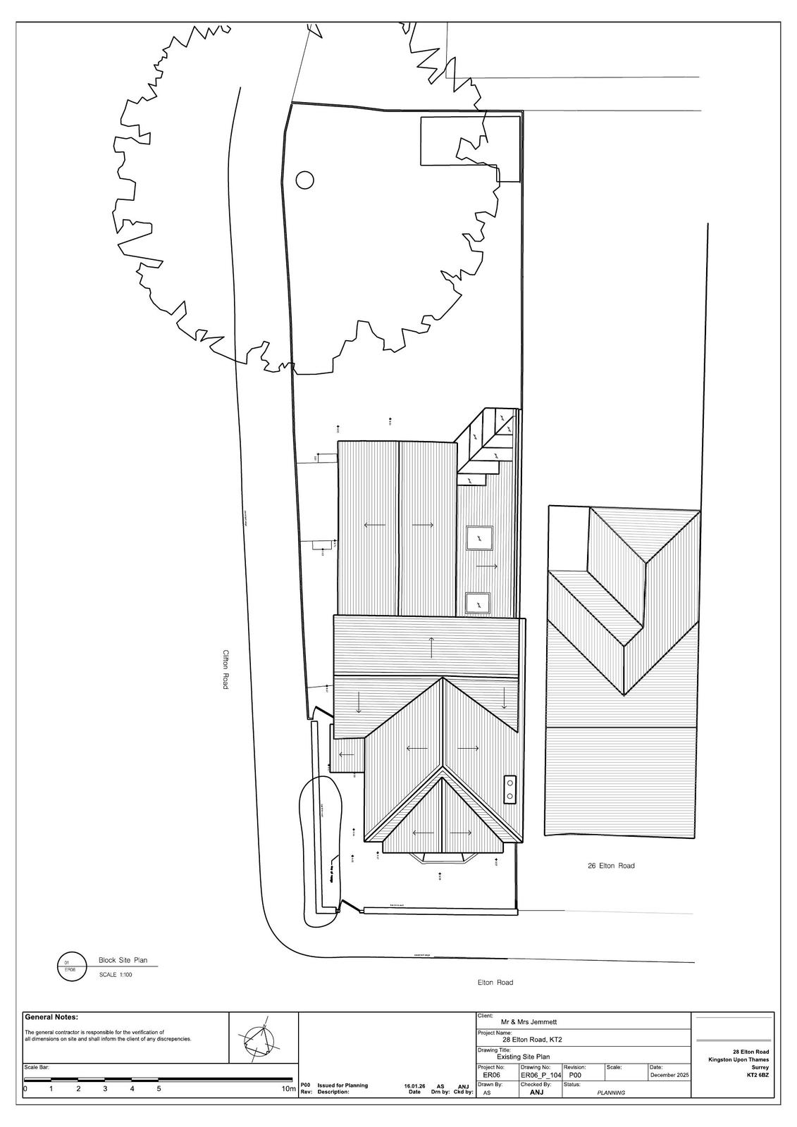
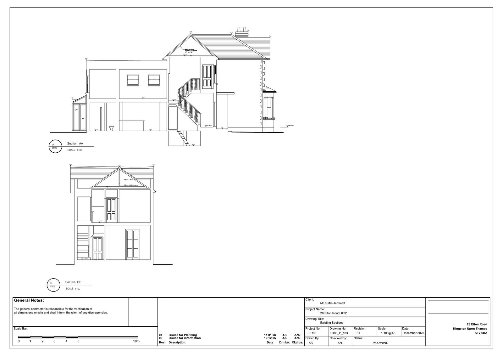
Pending Consideration House extension
Received
15 Jan 2026
New homes
0

Full proposal

Raising roof ridge height, alterations to roof, erection of rear and side dormer roof extensions, and hip to gable side extension with installation of 2nos. front rooflights to facilitate loft conversion

Documents

Application Form
Archived · Original link
Supporting Documents
Archived · Original link
Supporting Documents
Archived · Original link
Drawing
Archived · Original link
Drawing
Archived · Original link
Drawing
Archived · Original link
Supporting Documents
Archived · Original link
Supporting Documents
Archived · Original link

Have your say

Your comment matters. Councils must consider every representation that raises material planning considerations.

Write a comment