← Kingston upon Thames

Status

Pending Consideration New housing
Received
18 Aug 2025
New homes
150

Summary

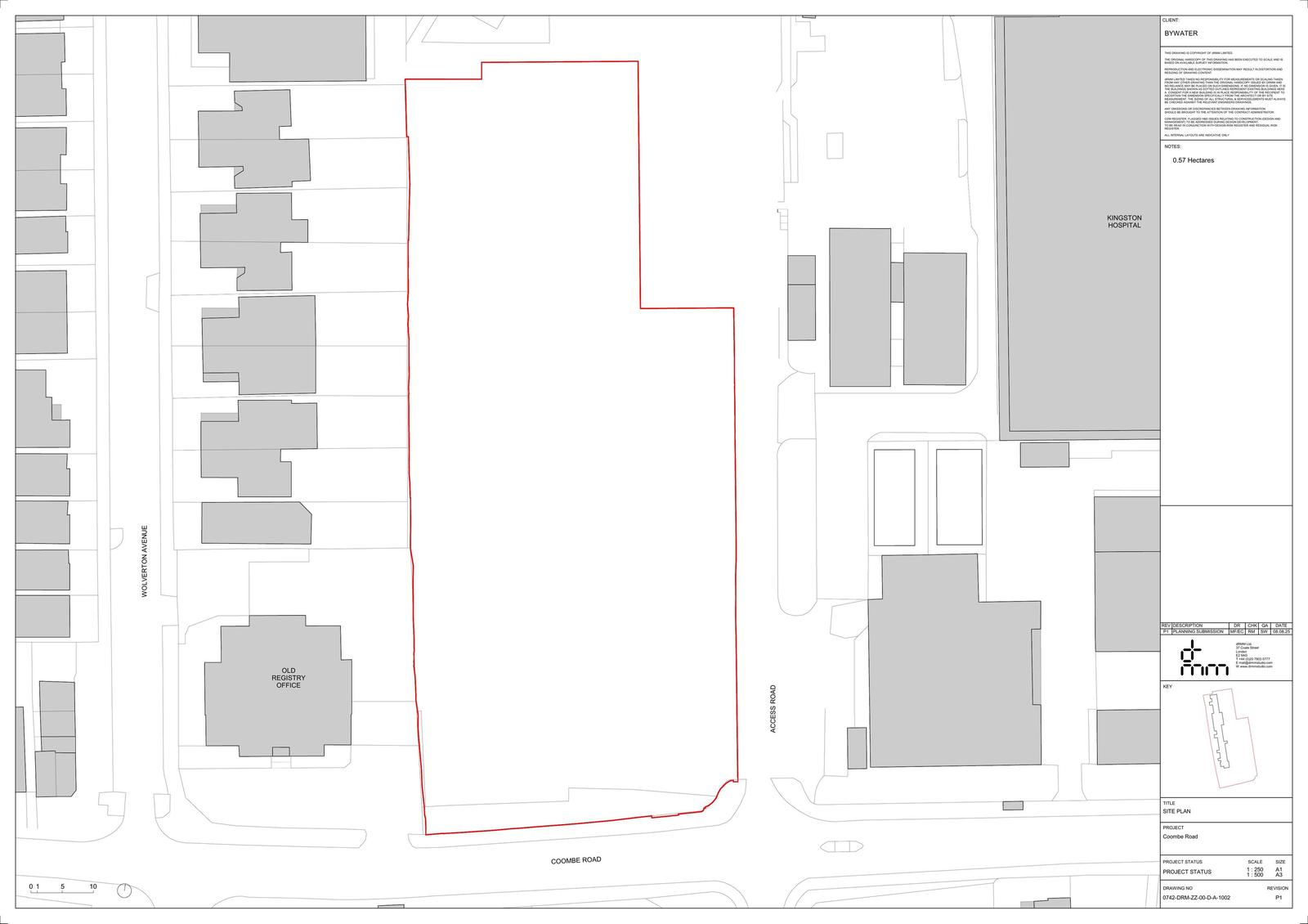
Demolish Regent Wing; build three blocks providing 150 apartments with landscaping, parking and access improvements.

Full proposal

Demolition of the Regent Wing at Kingston Hospital and erection of 3nos buildings with 150 residential apartments (Use Class C3), alongside associated communal amenity spaces, landscaping, provision of blue-badge car parking, cycle parking, play space, new means of pedestrian access and improvements to the site access from Coombe Road.

Documents

Air Quality Assessment
Supporting Documents
Not yet archived · Original link
Application Form (No personal data)
Application Form
Not yet archived · Original link
Arboricultural Impact Assessment
Supporting Documents
Not yet archived · Original link
Art Strategy
Supporting Documents
Not yet archived · Original link
BA PLAN - LEVEL 00
Drawing
Not yet archived · Original link
BA PLAN - LEVELS 01, 03, 05
Drawing
Not yet archived · Original link
BA PLAN - LEVELS 02 04
Drawing
Not yet archived · Original link
BA PLAN - ROOF LEVEL
Drawing
Not yet archived · Original link
BA SECTION EAST-WEST
Drawing
Not yet archived · Original link
Bat Emergence Survey
Supporting Documents
Not yet archived · Original link
Bat Emergence Survey Report
Supporting Documents
Not yet archived · Original link
BB PLAN - LEVEL 00
Drawing
Not yet archived · Original link
BB PLAN - LEVELS 01 03 05
Drawing
Not yet archived · Original link
BB PLAN - LEVELS 02 04
Drawing
Not yet archived · Original link
BB PLAN - ROOF LEVEL
Drawing
Not yet archived · Original link
BB SECTION SOUTH-NORTH
Drawing
Not yet archived · Original link
BC PLAN - LEVEL 00
Drawing
Not yet archived · Original link
BC PLAN - LEVELS 01 03 05
Drawing
Not yet archived · Original link
BC PLAN - LEVELS 02 04
Drawing
Not yet archived · Original link
BC PLAN - ROOF LEVEL
Drawing
Not yet archived · Original link
BC SECTION SOUTH-NORTH
Drawing
Not yet archived · Original link
Biodiversity Checklist
Supporting Documents
Not yet archived · Original link
Biodiversity Metric Calculation
Supporting Documents
Not yet archived · Original link
Biodiversity Net Gain Assessment
Supporting Documents
Not yet archived · Original link
Block A Elevations
Drawing
Not yet archived · Original link
Block B Elevations
Drawing
Not yet archived · Original link
Block C Elevations
Drawing
Not yet archived · Original link
Construction Logistics Plan
Supporting Documents
Not yet archived · Original link
Contamination Report Part 1 of 3
Supporting Documents
Not yet archived · Original link
Contamination Report Part 2 of 3
Supporting Documents
Not yet archived · Original link
Contamination Report Part 3 of 3
Supporting Documents
Not yet archived · Original link
Cover Letter
Supporting Documents
Not yet archived · Original link
Delivery and Servicing Management Plan
Supporting Documents
Not yet archived · Original link
DEMOLITION PLAN
Drawing
Not yet archived · Original link
Design And Access Statement Part 1 of 7
Supporting Documents
Not yet archived · Original link
Design And Access Statement Part 2 of 7
Supporting Documents
Not yet archived · Original link
Design And Access Statement Part 3 of 7
Supporting Documents
Not yet archived · Original link
Design And Access Statement Part 4 of 7
Supporting Documents
Not yet archived · Original link
Design And Access Statement Part 5 of 7
Supporting Documents
Not yet archived · Original link
Design And Access Statement Part 6 of 7
Supporting Documents
Not yet archived · Original link
Design And Access Statement Part 7 of 7
Supporting Documents
Not yet archived · Original link
Drainage Strategy and SUDs Report Part 1 of 2
Supporting Documents
Not yet archived · Original link
Drainage Strategy and SUDs Report Part 2 of 2
Supporting Documents
Not yet archived · Original link
DRP Report August 2025
Supporting Documents
Not yet archived · Original link
DRP Report May 2025
Supporting Documents
Not yet archived · Original link
Energy Statement
Supporting Documents
Not yet archived · Original link
Environmental Noise Assessment
Supporting Documents
Not yet archived · Original link
Existing East-West Elevations
Drawing
Not yet archived · Original link
Existing North-South Elevations
Drawing
Not yet archived · Original link
EXISTING ROOF PLAN
Drawing
Not yet archived · Original link
EXISTING TYPICAL PLANS (L00 L01 L02 L03)
Drawing
Not yet archived · Original link
Financial Viability Assessment
Supporting Documents
Not yet archived · Original link
Fire Statement
Supporting Documents
Not yet archived · Original link
GA PLANS - BLOCK PLAN
Drawing
Not yet archived · Original link
GA PLANS - LEVEL 00
Drawing
Not yet archived · Original link
GA PLANS - LEVEL 01
Drawing
Not yet archived · Original link
GA PLANS - LEVEL 02
Drawing
Not yet archived · Original link
GA PLANS - LEVEL 03
Drawing
Not yet archived · Original link
GA PLANS - LEVEL 04
Drawing
Not yet archived · Original link
GA PLANS - LEVEL 05
Drawing
Not yet archived · Original link
Health Impact Assessment
Supporting Documents
Not yet archived · Original link
Heritage, Townscape and Visual Impact Assessment Part 1 of 2
Supporting Documents
Not yet archived · Original link
Heritage, Townscape and Visual Impact Assessment Part 2 of 2
Supporting Documents
Not yet archived · Original link
Impacts Upon Neighbours Report
Supporting Documents
Not yet archived · Original link
Impacts Upon Neighbours Report (Appendices)
Supporting Documents
Not yet archived · Original link
Internal Daylight and Sunlight Assessment Part 1 of 2
Supporting Documents
Not yet archived · Original link
Internal Daylight and Sunlight Assessment Part 2 of 2
Supporting Documents
Not yet archived · Original link
Landscape Statement (including UGF and Lighting Strategy) Part 3 of 3
Supporting Documents
Not yet archived · Original link
Landscape Statement (incuding UGF and Lighting Strategy) Part 1 of 3
Supporting Documents
Not yet archived · Original link
Landscape Statement (incuding UGF and Lighting Strategy) Part 2 of 3
Supporting Documents
Not yet archived · Original link
LOCATION PLAN
Drawing
Not yet archived · Original link
Operational Waste Management Plan
Supporting Documents
Not yet archived · Original link
Outline Travel Plan
Supporting Documents
Not yet archived · Original link
Planning Statement
Supporting Documents
Not yet archived · Original link
Pre-Demolition Audit
Supporting Documents
Not yet archived · Original link
Pre-Redevelopment Audit
Supporting Documents
Not yet archived · Original link
Preliminary Ecological Appraisal
Supporting Documents
Not yet archived · Original link
Proposed Renewable Energy Section, Scoping Section and Scoping Roof Plan
Drawing
Not yet archived · Original link
PROPOSED WINDOW SECTION
Drawing
Not yet archived · Original link
Schedule of Accommodation
Supporting Documents
Not yet archived · Original link
Drawing
Archived · Original link
Statement of Community Involvement
Supporting Documents
Not yet archived · Original link
STREETSCENE ELEVATION NORTH-SOUTH
Drawing
Not yet archived · Original link
Sustainabilty Statement
Supporting Documents
Not yet archived · Original link
Transport Assessment
Supporting Documents
Not yet archived · Original link
Utilities Statement Report
Supporting Documents
Not yet archived · Original link
Validation Checklist
Supporting Documents
Not yet archived · Original link

Have your say

Your comment matters. Councils must consider every representation that raises material planning considerations.

Write a comment