← Kingston upon Thames

Status

Pending Consideration New housing
Received
15 Aug 2025
New homes
34

Summary

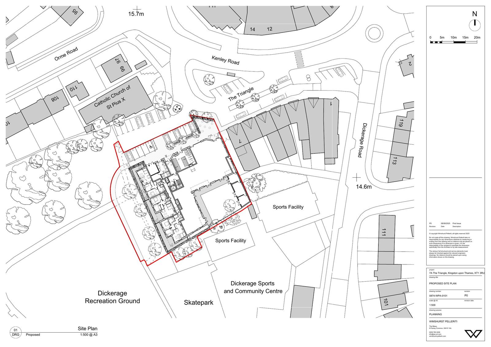
Mixed-use building with ground-floor Class E and 34 flats, public realm improvements and solar panels.

Full proposal

Demolition of the existing buildings including boundary fencing. Erection of a mixed use building of 3 to 5 storeys (Use Class E and C3) with the Class E space at ground floor level and 34nos flats with works to the public realm in front of the building and along the boundary to the neighbouring open space. Installation of solar panels.

Documents

Air Quality Assessment
Supporting Documents
Not yet archived · Original link
Application Form (No Personal Data)
Application Form
Not yet archived · Original link
Biodiversity Checklist
Supporting Documents
Not yet archived · Original link
Biodiversity Net Gain Assessment
Supporting Documents
Not yet archived · Original link
Cil Form
Supporting Documents
Not yet archived · Original link
Construction Management Plan
Supporting Documents
Not yet archived · Original link
Daylight and Sunlight Report
Supporting Documents
Not yet archived · Original link
Design and Access Statement Part 1
Supporting Documents
Not yet archived · Original link
Design and Access Statement Part 2
Supporting Documents
Not yet archived · Original link
Drawing Issue Sheet
Supporting Documents
Not yet archived · Original link
Ecologicial Impact Assessment -Part2
Supporting Documents
Not yet archived · Original link
Ecologicial Impact Assessment Part-1
Supporting Documents
Not yet archived · Original link
Energy Strategy
Supporting Documents
Not yet archived · Original link
Existing Block Plan
Drawing
Not yet archived · Original link
Existing Elevations
Drawing
Not yet archived · Original link
Existing Ground Floor Plan
Drawing
Not yet archived · Original link
Existing Roof Plan
Drawing
Not yet archived · Original link
Existing Sections
Drawing
Not yet archived · Original link
Drawing
Archived · Original link
Fire Strategy Report
Supporting Documents
Not yet archived · Original link
Health Impact Assessment
Supporting Documents
Not yet archived · Original link
Highways Search Map
Supporting Documents
Not yet archived · Original link
Level1 Flood Risk Assessment and SuDS Drainage Strategy Part 2
Supporting Documents
Not yet archived · Original link
Level1 Flood Risk Assessment and SuDS Drainage StrategyPart 1
Supporting Documents
Not yet archived · Original link
MEP Utilities Statement
Supporting Documents
Not yet archived · Original link
Noise Impact Assessment Report
Supporting Documents
Not yet archived · Original link
Parking Survey
Supporting Documents
Not yet archived · Original link
Part O and CIBSE Overheating Analysis
Supporting Documents
Not yet archived · Original link
Phase 1 Enviromental Assesment Part 1
Supporting Documents
Not yet archived · Original link
Phase 1 Enviromental Assesment Part 2
Supporting Documents
Not yet archived · Original link
Proposed Block Plan
Drawing
Not yet archived · Original link
Proposed Ground Floor Plan
Drawing
Not yet archived · Original link
Proposed Level 1 Plan
Drawing
Not yet archived · Original link
Proposed Level 2 Plan
Drawing
Not yet archived · Original link
Proposed Level 3 Plan
Drawing
Not yet archived · Original link
Proposed Level 4 Plan
Drawing
Not yet archived · Original link
Proposed North and East Elevations
Drawing
Not yet archived · Original link
Proposed Roof Plan
Drawing
Not yet archived · Original link
Proposed Sections
Drawing
Not yet archived · Original link
Drawing
Archived · Original link
Proposed South and South Elevations
Drawing
Not yet archived · Original link
Proposed Typical Flat Layouts 1B2P Unit
Drawing
Not yet archived · Original link
Proposed Typical Flat Layouts 2B3P Unit
Drawing
Not yet archived · Original link
Proposed Typical Flat Layouts 2B4P Unit
Drawing
Not yet archived · Original link
Proposed Typical Flat Layouts 2B4P Unit
Drawing
Not yet archived · Original link
Proposed Typical Flat Layouts 3B5P Unit
Drawing
Not yet archived · Original link
Proposed Typical Flat Layouts 3B5P Unit
Drawing
Not yet archived · Original link
Proposed Typical Wheel Chair Adaptable Unit
Drawing
Not yet archived · Original link
Statutory Biodiversity Metric Calculation Tool
Supporting Documents
Not yet archived · Original link
Transport Statement - REV E
Supporting Documents
Not yet archived · Original link
Travel Plan Statement
Supporting Documents
Not yet archived · Original link
Tree Survey
Supporting Documents
Not yet archived · Original link
Validation Checklist
Supporting Documents
Not yet archived · Original link
Viability Assessment - REV 1
Supporting Documents
Not yet archived · Original link
Water Consumption Statement
Supporting Documents
Not yet archived · Original link

Have your say

Your comment matters. Councils must consider every representation that raises material planning considerations.

Write a comment