← Kingston upon Thames

Status

Pending Decision New housing
Received
25 Nov 2024
New homes
20

Full proposal

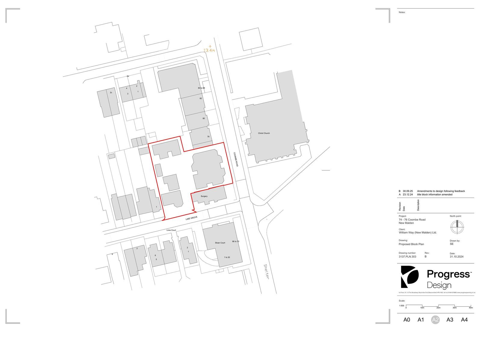
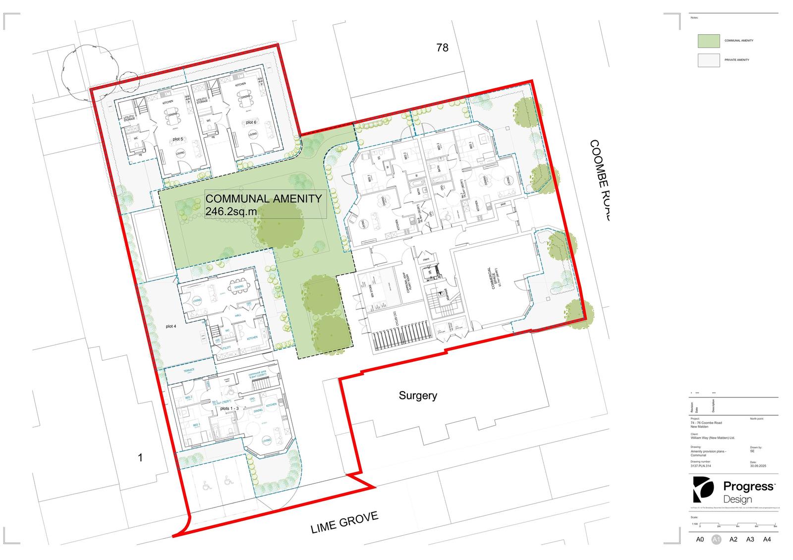
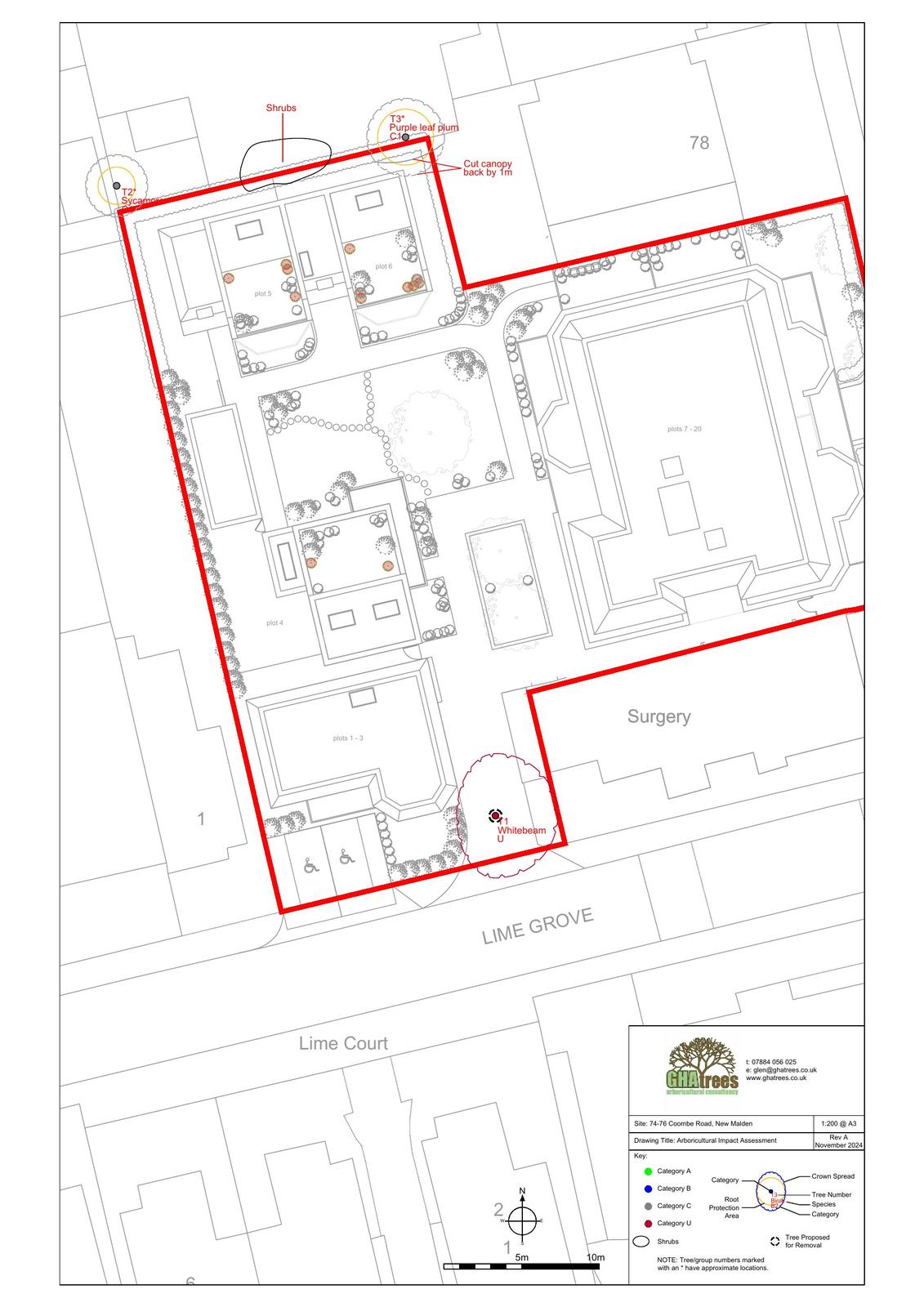
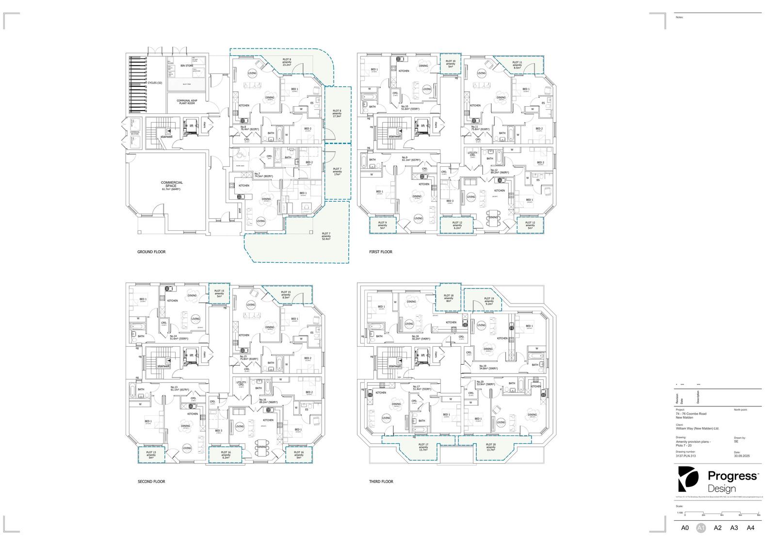
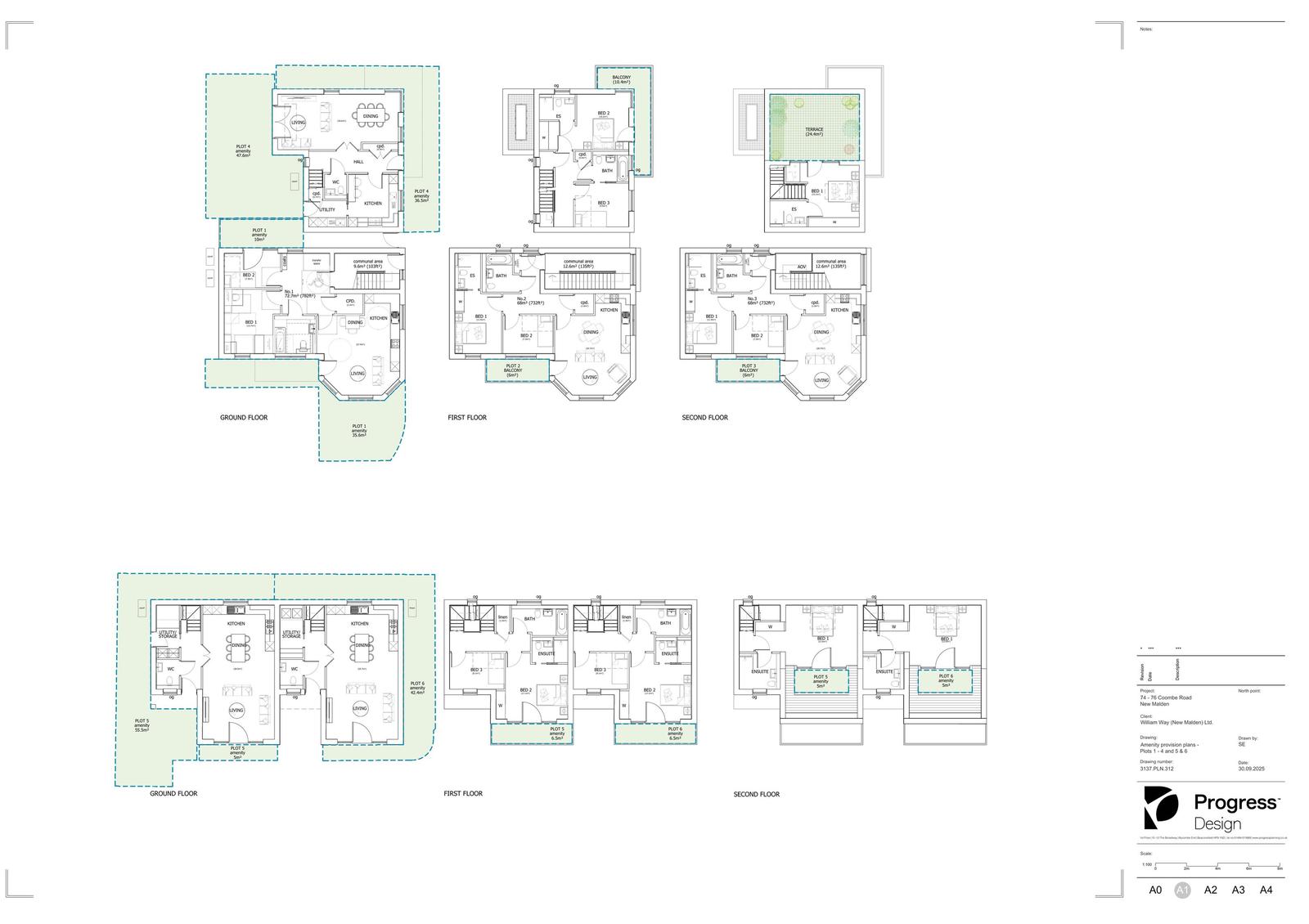
Demolition and removal of existing buildings and structures. Redevelopment of site comprising five separate residential buildings to provide a total of 20 residential units and 61.7 square meters of ground floor commercial space with associated access, parking, and landscaping. Revisions: Additional and updated information.

Documents

Supporting Documents
Archived · Original link
Application Form
Archived · Original link
Supporting Documents
Archived · Original link
Drawing
Archived · Original link
Statutory Biodiversity Metric
Supporting Documents
Not yet archived · Original link

Have your say

Your comment matters. Councils must consider every representation that raises material planning considerations.

Write a comment