← City of Westminster

Status

Pending Listed building
Received
15 Jan 2026
New homes
0

Full proposal

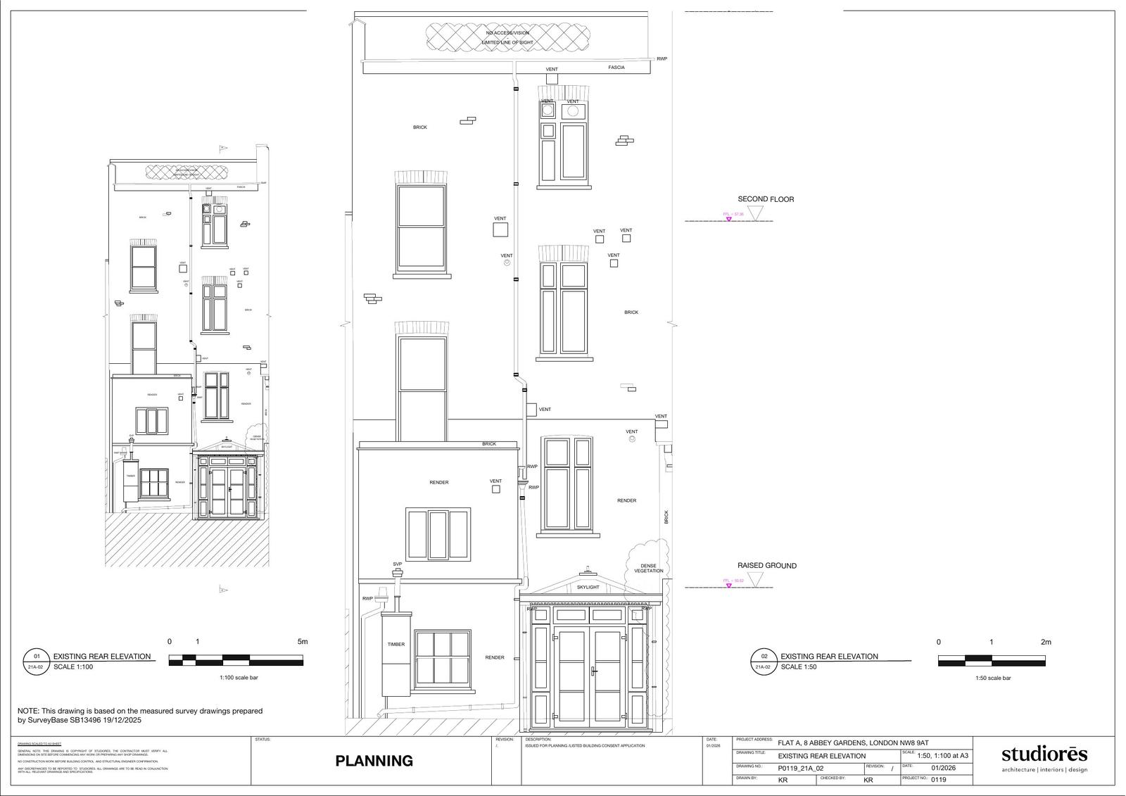
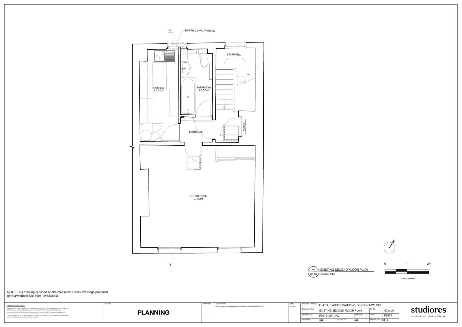
Replacement of uPVC window with timber double glazed sash windows and proposed internal renovation and layout reconfiguration of top floor studio flat including demolition of non-original, non-load bearing partitions. [Linked to 26/00230/FULL]

Have your say

Your comment matters. Councils must consider every representation that raises material planning considerations.

Write a comment