← City of Westminster

Status

Decided House extension
Received
28 May 2025
New homes
0

Summary

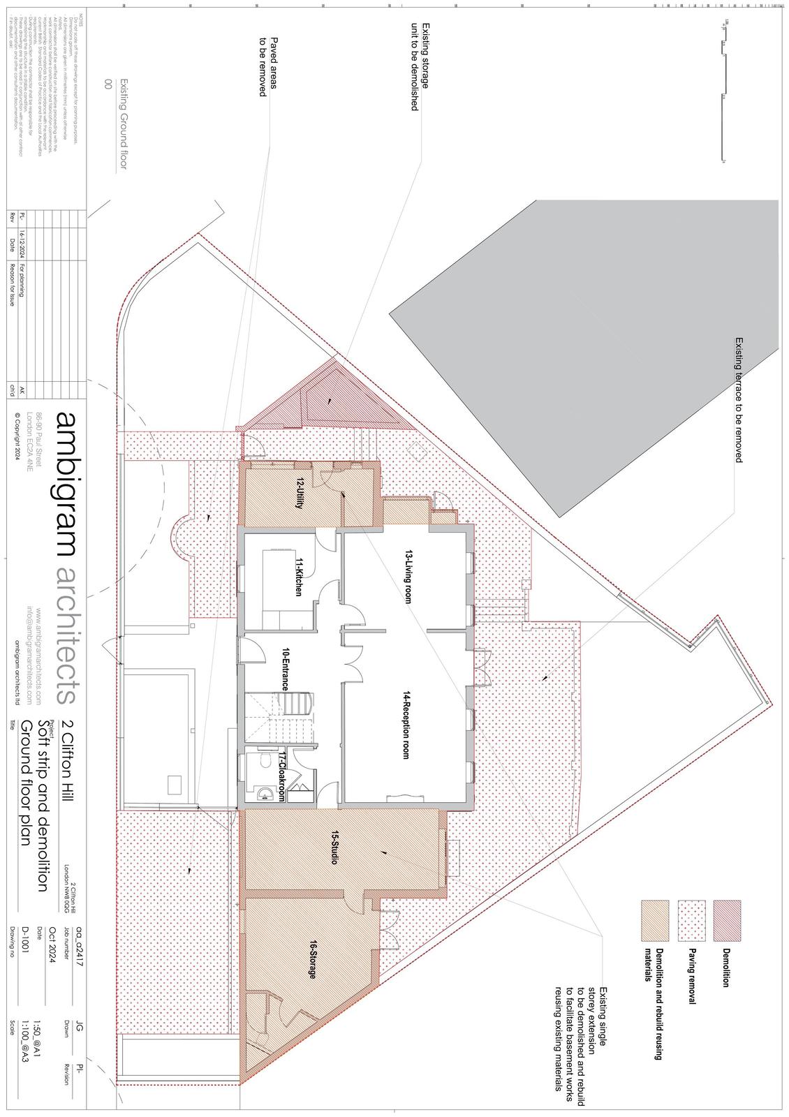
Rebuild single-storey extensions to create single-storey basement, revised landscaping and associated works.

Full proposal

Demolition and rebuilding of existing single storey extensions to facilitate the creation of a single storey basement beneath the footprint of the dwellinghouse, new hard and soft landscaping, demolition of existing storage building, and all associated works.

Documents

Background Papers
Archived · Original link
Application Form
Archived · Original link
Consultee Comment
Archived · Original link
Background Papers
Archived · Original link
Background Papers
Archived · Original link
Background Papers
Archived · Original link
Report
Archived · Original link
Drawing
Archived · Original link
Design and Access Statement
Archived · Original link
Superseded document
Archived · Original link

Have your say

Your comment matters. Councils must consider every representation that raises material planning considerations.

Write a comment