← City of Westminster

Status

Decided Listed building
Received
21 Jan 2025
New homes
0

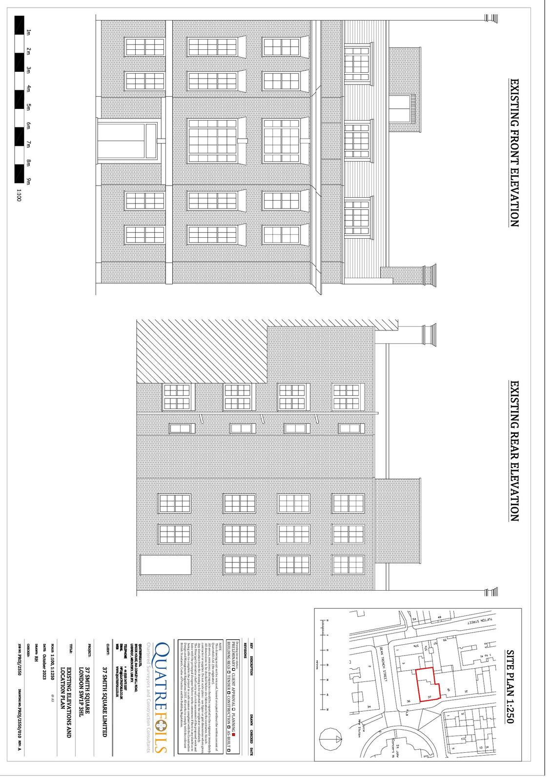
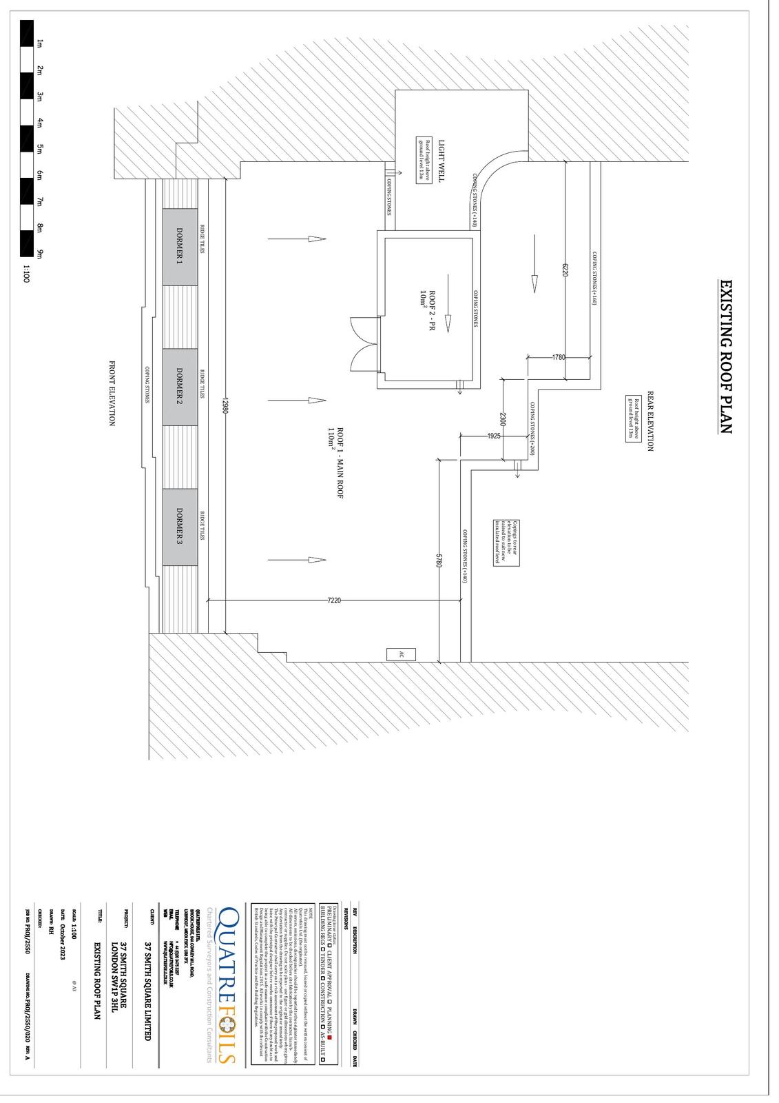
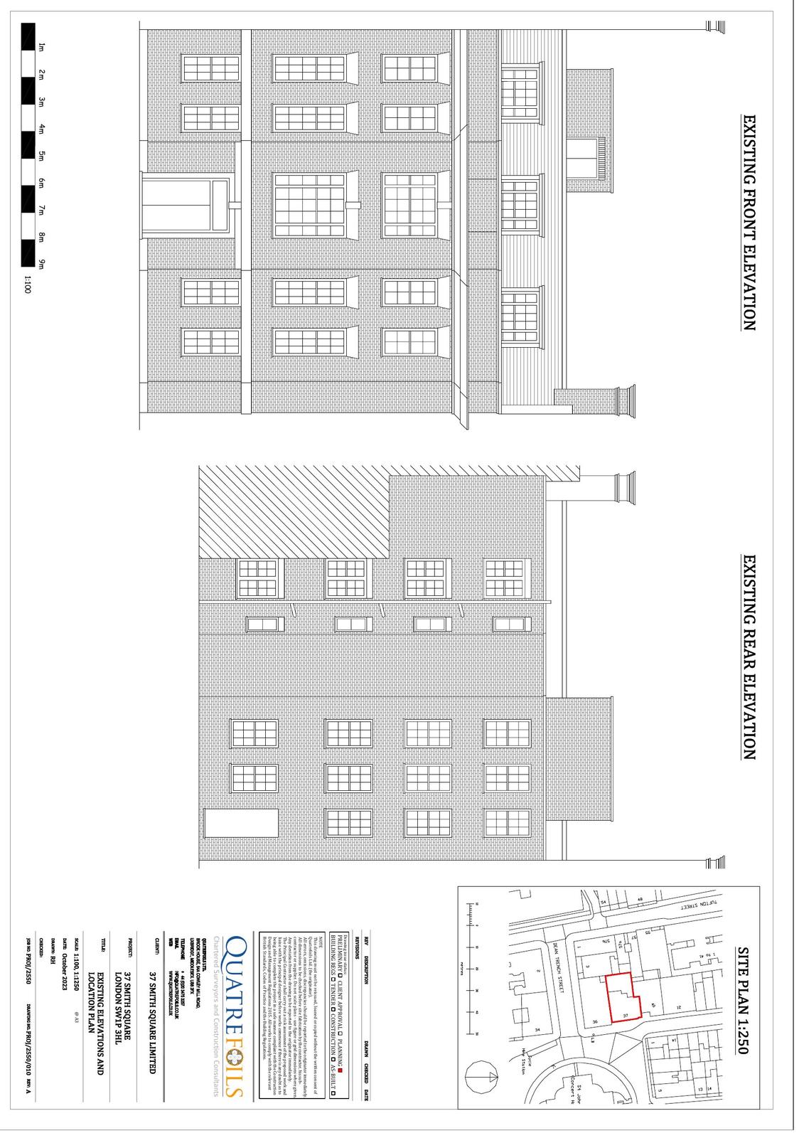
Full proposal

Replacement of flat roof coverings; raising of rear parapet wall by 150mm; replacement of ridge tiles to front mansard; liquid sealant to front dormers and front back gutter.

Documents

Background Papers
Archived · Original link
Report
Archived · Original link
Design and Access Statement
Archived · Original link
Superseded document
Archived · Original link
Drawing
Archived · Original link
Superseded document
Archived · Original link
Superseded document
Archived · Original link
Superseded document
Archived · Original link
Heritage Statement
Archived · Original link

Have your say

Your comment matters. Councils must consider every representation that raises material planning considerations.

Write a comment