← City of Westminster

Status

Decided Change of use
Received
09 Jan 2025
New homes
0

Summary

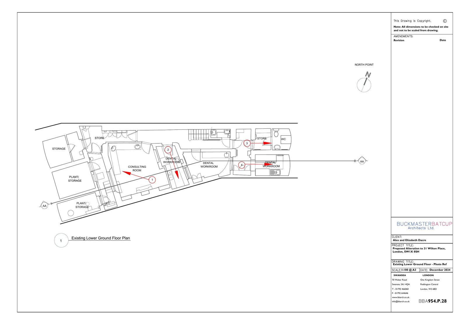
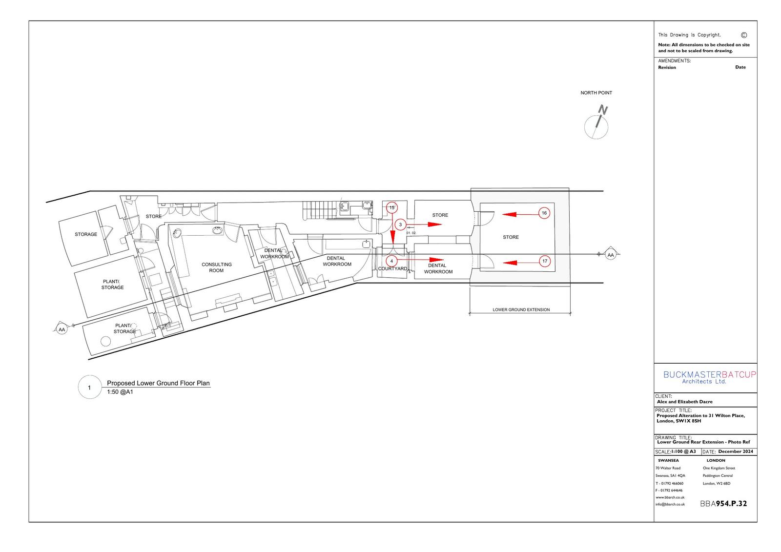
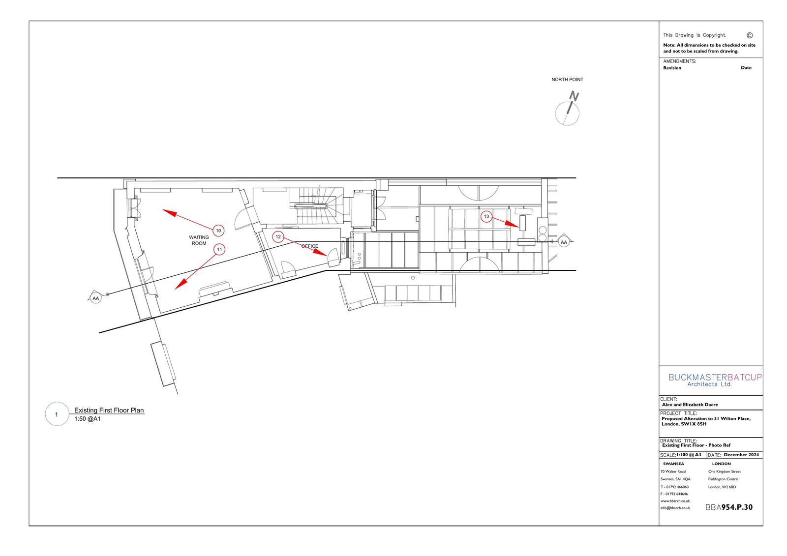
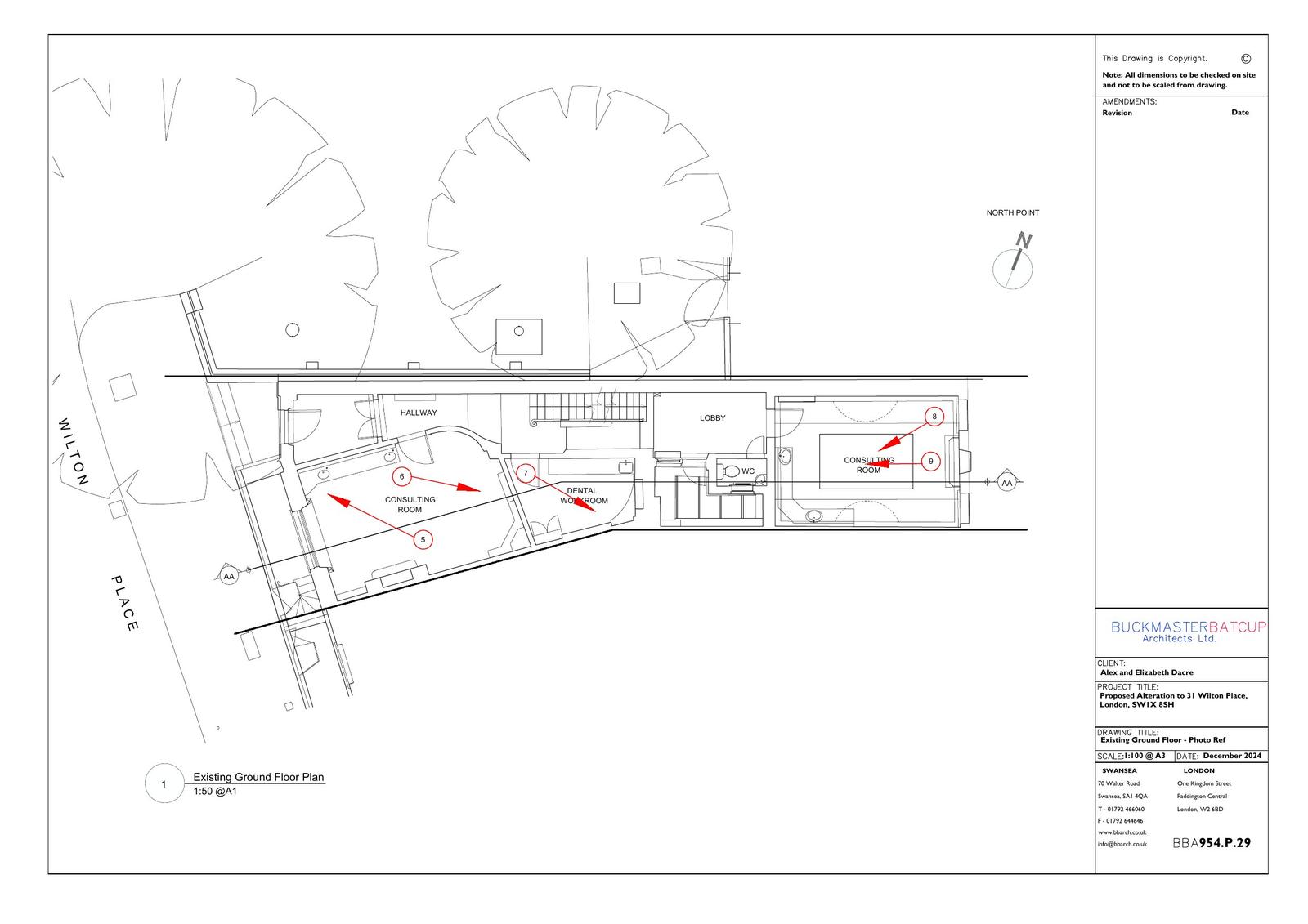
Confirm lawful change from dental surgery to a single-family dwelling with internal works and new windows.

Full proposal

Internal works including removal of fixtures, fittings and suspended ceilings; removal of rear roof level air conditioning unit and installation of windows (Confirmation of lawful implementation of planning permission dated 18th August 2020 (RN: 20/01720/FULL) for the change of use of lower ground, ground and first floors from dental surgery (Class D1) to residential (Class C3) and associated alterations in connection with the use as a single family dwellinghouse.

Documents

Background Papers
Archived · Original link
Application Form
Archived · Original link
Background Papers
Archived · Original link
Background Papers
Archived · Original link
Background Papers
Archived · Original link
Report
Archived · Original link

Have your say

Your comment matters. Councils must consider every representation that raises material planning considerations.

Write a comment