25/00107/FULL
City of Westminster
Status
Decided
House extension
Received
08 Jan 2025
New homes
0
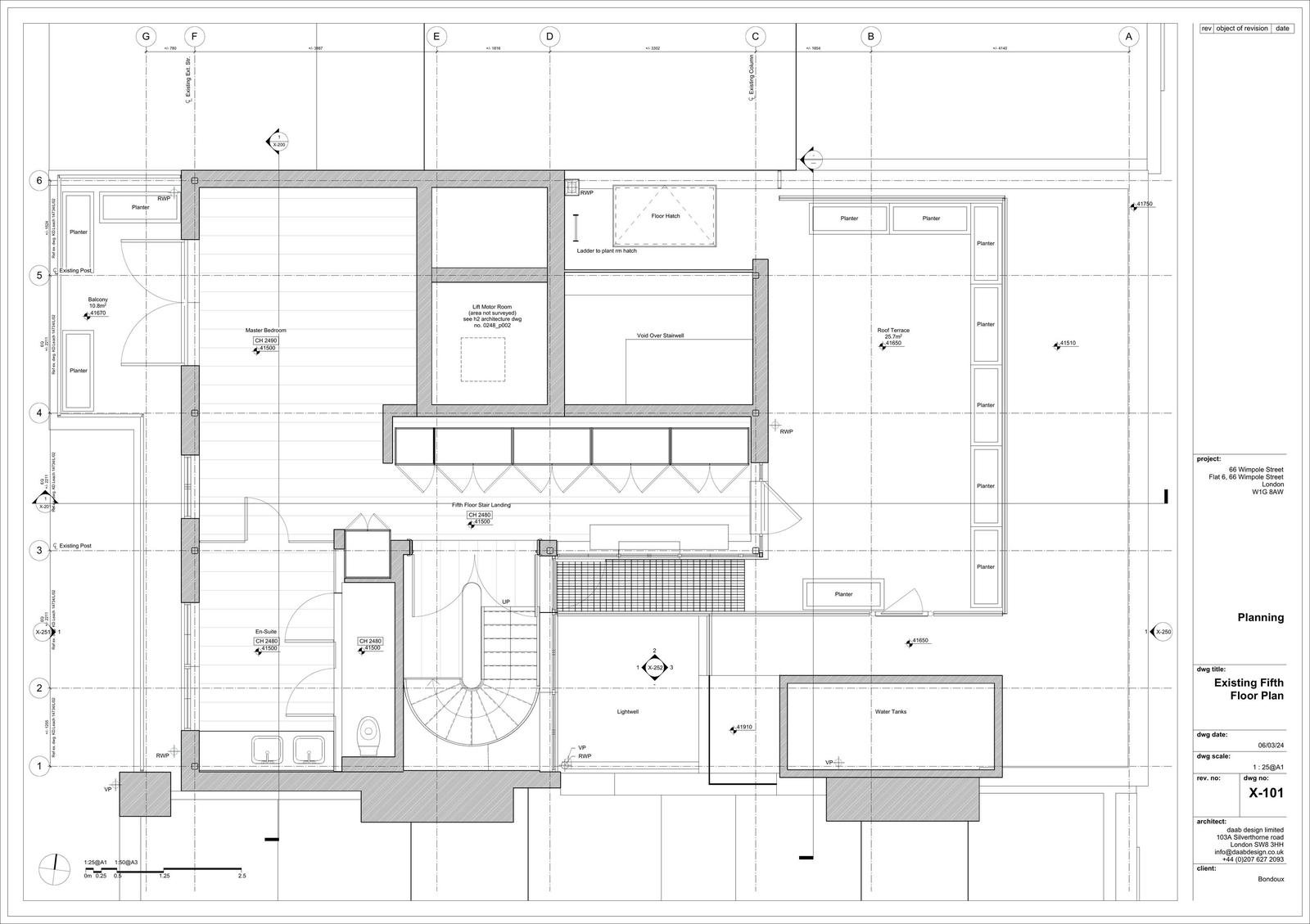
Full proposal
Replacement of windows including new glazing opening; covering of void over stairwell and enlargement of existing roof extension to create additional residential floorspace (Class C3); and addition of new PV panels to the roof.
Documents
Have your say
Your comment matters. Councils must consider every representation that raises material planning considerations.