← City of Westminster

Status

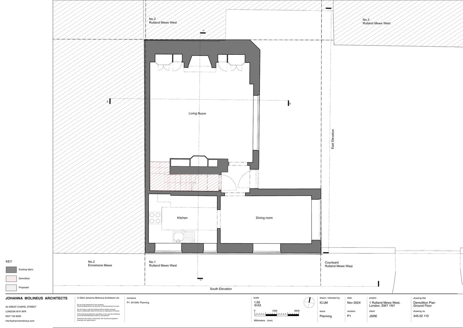
Withdrawn House extension
Received
16 Dec 2024
New homes
0

Full proposal

Erection of a mansard roof extension and roof terrace.

Documents

Background Papers
Archived · Original link
Background Papers
Archived · Original link
Application Form
Archived · Original link
Background Papers
Archived · Original link
Background Papers
Archived · Original link
Background Papers
Archived · Original link
Background Papers
Archived · Original link
Drawing
Archived · Original link
Drawing
Archived · Original link
Drawing
Archived · Original link

Have your say

Your comment matters. Councils must consider every representation that raises material planning considerations.

Write a comment