← Tower Hamlets

Status

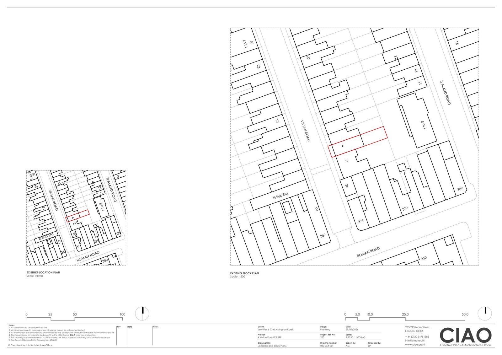
Registered House extension
Received
17 Feb 2026
New homes
0

Full proposal

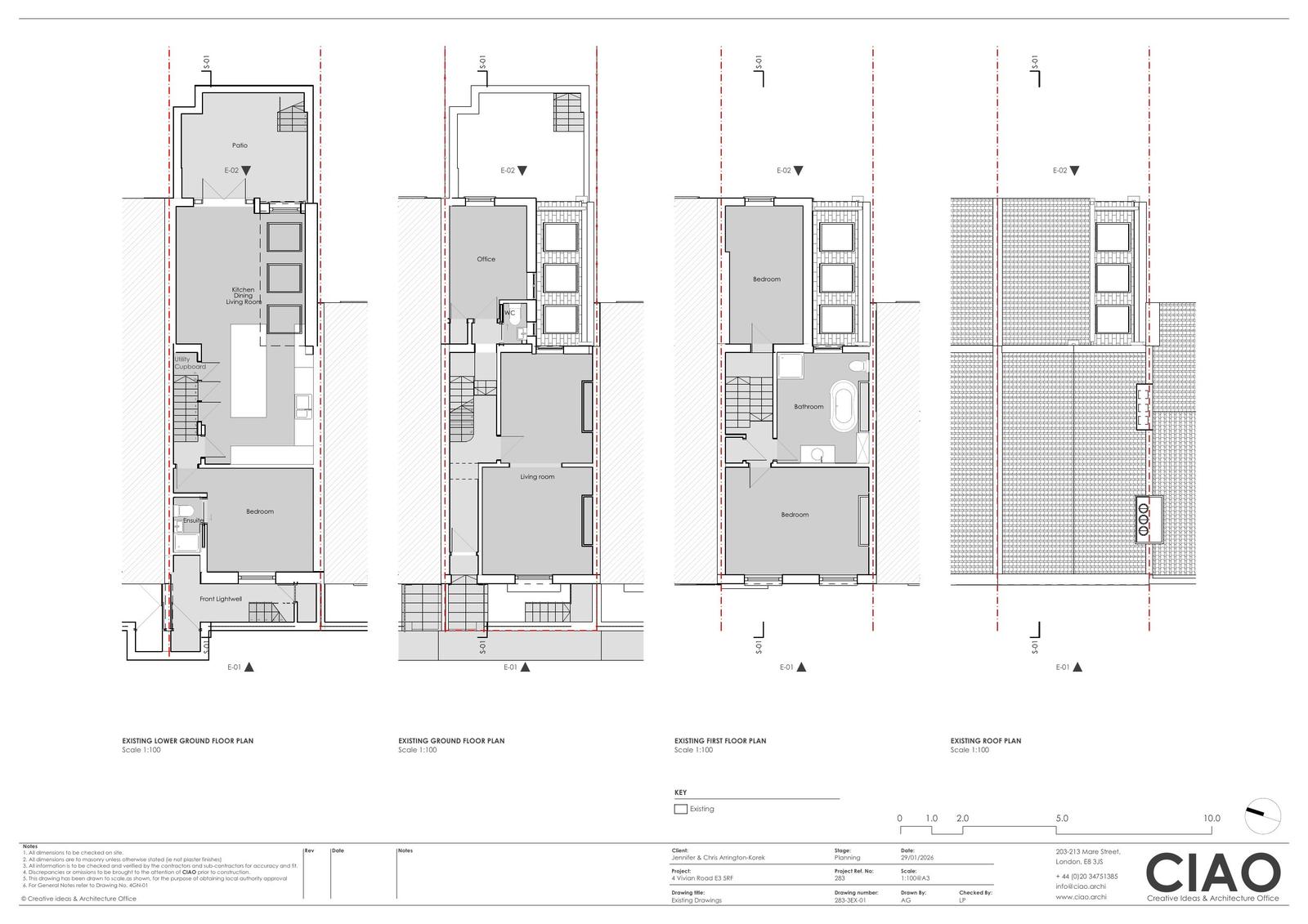
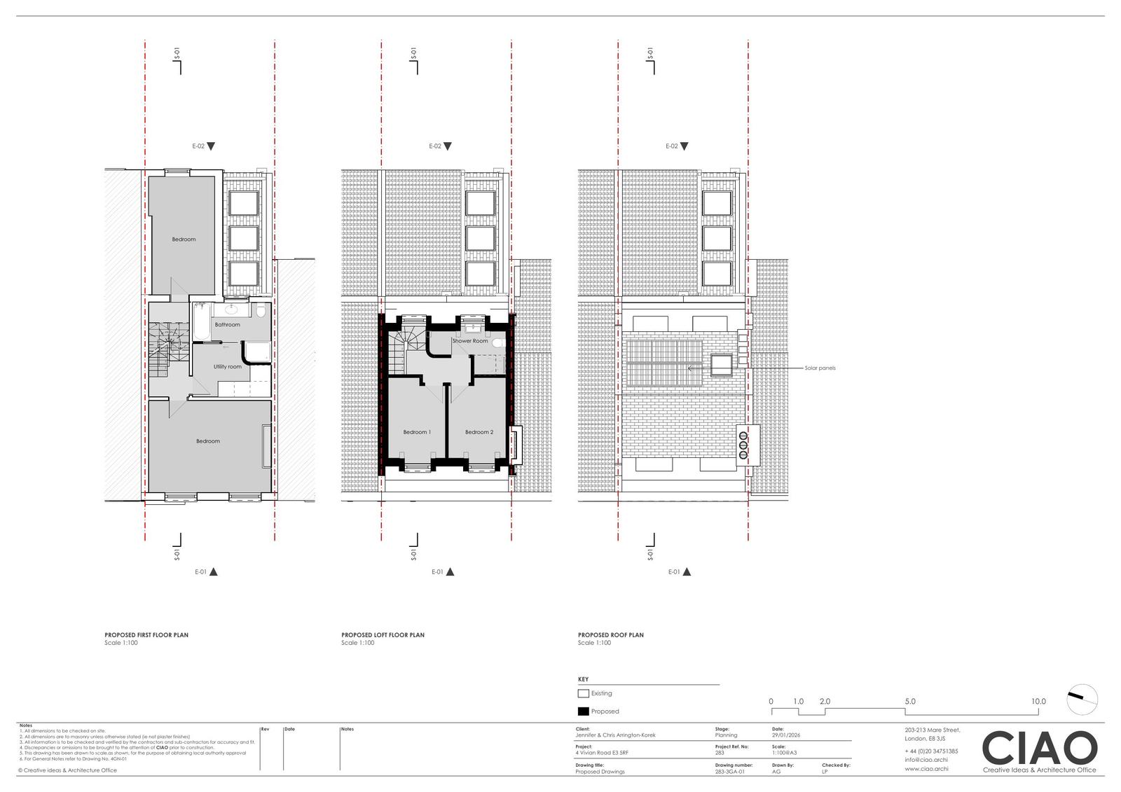
Proposed mansard roof extension with two front and two rear dormers, x1 one roof light and solar panels to the rear roof

Documents

Application Form
Archived · Original link
Design & Access Statement
Archived · Original link
Current Plan
Archived · Original link
Current Plan
Archived · Original link
Current Plan
Archived · Original link

Have your say

Your comment matters. Councils must consider every representation that raises material planning considerations.

Write a comment