← Swansea Council

Status

Being Considered House extension
Received
02 Feb 2026
New homes
0

Full proposal

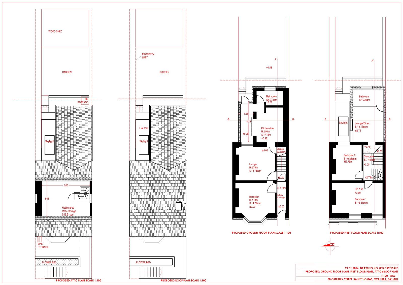
Construction of a first-floor rear extension incorporating a pitched roof, single storey rear infill extension and rear detached wood store

Documents

APPLICATIONFORMREDACTED
Dogfen Gyfredol - Current Document
Not yet archived · Original link
Dogfen Gyfredol - Current Document
Archived · Original link
DETAILS
Dogfen Gyfredol - Current Document
Not yet archived · Original link
ECOLOGICAL ENHANCEMENT STATEMENT
Dogfen Gyfredol - Current Document
Not yet archived · Original link
EXISTING & PROPOSED NORTH FACADE
Dogfen Gyfredol - Current Document
Not yet archived · Original link
EXISTING & PROPOSED NORTH FACADE
Dogfen Gyfredol - Current Document
Not yet archived · Original link
EXISTING & PROPOSED SECTION B-A & EAST FACADE
Dogfen Gyfredol - Current Document
Not yet archived · Original link
EXISTING GROUND & FIRST FLOOR PLANS
Dogfen Gyfredol - Current Document
Not yet archived · Original link
EXISTTING & PROPOSED SECTION A-A & WEST FACADE
Dogfen Gyfredol - Current Document
Not yet archived · Original link
FINAL PRE-APP LETTER
Dogfen Gyfredol - Current Document
Not yet archived · Original link
GREEN INFRASTRUCTURE STATEMENT
Dogfen Gyfredol - Current Document
Not yet archived · Original link
Llythyr Cydnabyddiaeth -Acknowledgement Letter
Llythyr Cydnabyddiaeth -Acknowledgement Letter
Not yet archived · Original link
PRELIMINARY ECOLOGICAL ASSESSMENT
Dogfen Gyfredol - Current Document
Not yet archived · Original link
PRELIMINARY ROOST ASSESSMENT SURVEY
Dogfen Gyfredol - Current Document
Not yet archived · Original link
Dogfen Gyfredol - Current Document
Archived · Original link
Dogfen Gyfredol - Current Document
Archived · Original link
SHED ELEVATIONS AND FLOOR PLAN
Dogfen Gyfredol - Current Document
Not yet archived · Original link
Dogfen Gyfredol - Current Document
Archived · Original link
Ymgynghoriad Ymgyngoreion - Consultee Consultation
Ymgynghoriad Ymgyngoreion - Consultee Consultation
Not yet archived · Original link

Have your say

Your comment matters. Councils must consider every representation that raises material planning considerations.

Write a comment