← Swansea Council

Status

Being Considered New housing
Received
14 Jan 2026
New homes
1

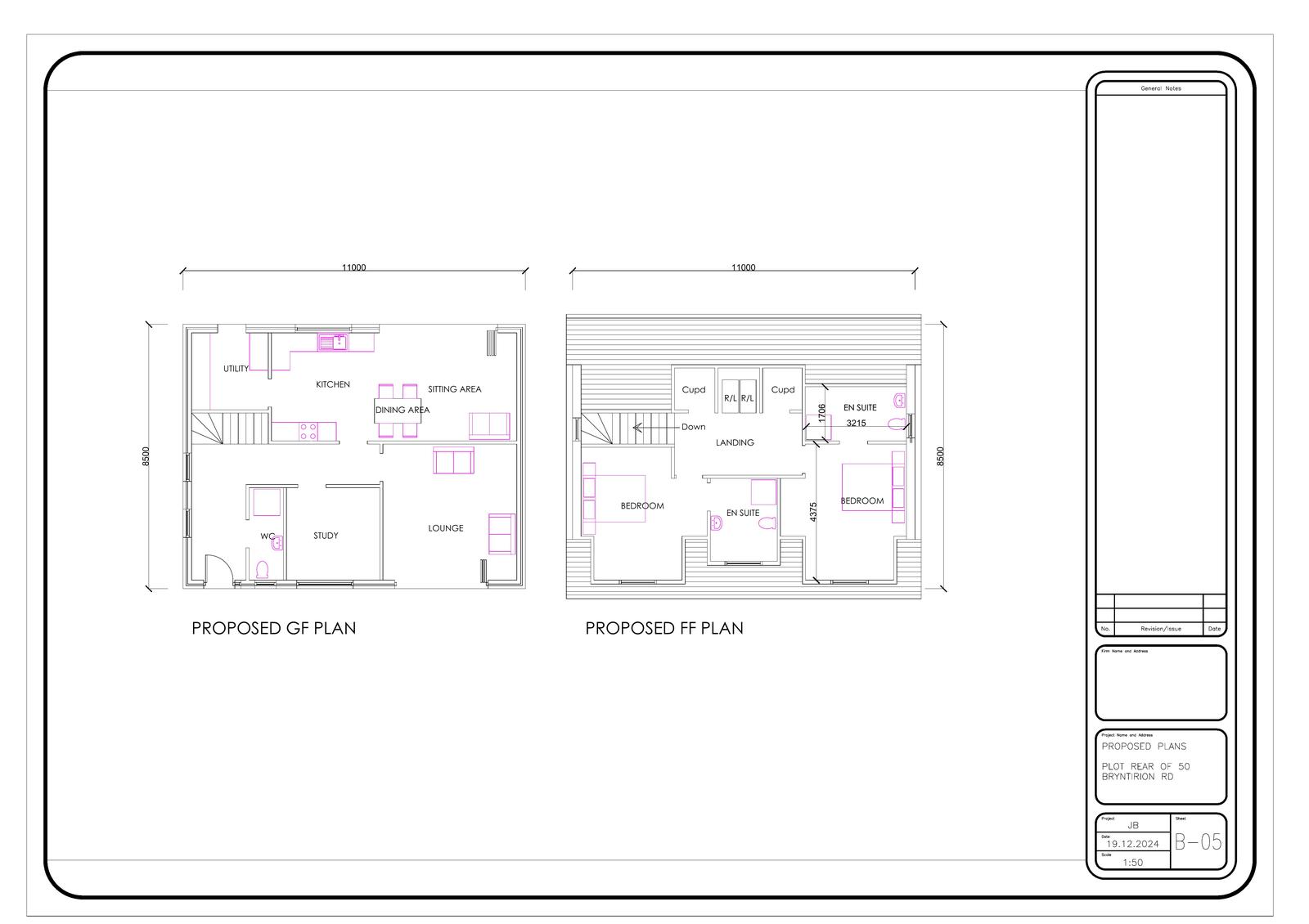
Full proposal

Detached dwelling (details of Reserved Matters pursuant to Outline permission 2023/0290/OUT granted 24th May 2024)

Documents

Dogfen Gyfredol - Current Document
Archived · Original link
APPENDIX B - LANDOWNERSHIP CONFIRMATION
Dogfen Gyfredol - Current Document
Not yet archived · Original link
APPENDIX C - VISIBILITY SPLAYS AND ACCESS IMPROVEMENTS
Dogfen Gyfredol - Current Document
Not yet archived · Original link
APPENDIX D - PROPOSED MATERIALS
Dogfen Gyfredol - Current Document
Not yet archived · Original link
APPENDIX E - SECTION
Dogfen Gyfredol - Current Document
Not yet archived · Original link
APPENDIX F - ACOUSTIC FENCE DETAIL
Dogfen Gyfredol - Current Document
Not yet archived · Original link
APPENDIX G - LANDSCAPING STRATEGY
Dogfen Gyfredol - Current Document
Not yet archived · Original link
APPENDIX H - GREEN INFRASTUCTURE STATEMENT
Dogfen Gyfredol - Current Document
Not yet archived · Original link
APPENDIX I - DRAINAGE STATEMENT
Dogfen Gyfredol - Current Document
Not yet archived · Original link
APPLICATION FORM
Dogfen Gyfredol - Current Document
Not yet archived · Original link
Llythyr Cydnabyddiaeth -Acknowledgement Letter
Llythyr Cydnabyddiaeth -Acknowledgement Letter
Not yet archived · Original link
PLANNING STATEMENT
Dogfen Gyfredol - Current Document
Not yet archived · Original link
PROPOSED ELEVATIONS
Dogfen Gyfredol - Current Document
Not yet archived · Original link
Dogfen Gyfredol - Current Document
Archived · Original link
Dogfen Gyfredol - Current Document
Archived · Original link
Ymgynghoriad Ymgyngoreion - Consultee Consultation
Ymgynghoriad Ymgyngoreion - Consultee Consultation
Not yet archived · Original link
Ymgynghoriad Ymgyngoreion - Consultee Consultation
Ymgynghoriad Ymgyngoreion - Consultee Consultation
Not yet archived · Original link
Ymgynghoriad Ymgyngoreion - Consultee Consultation
Ymgynghoriad Ymgyngoreion - Consultee Consultation
Not yet archived · Original link
Ymgynghoriad Ymgyngoreion - Consultee Consultation
Ymgynghoriad Ymgyngoreion - Consultee Consultation
Not yet archived · Original link

Have your say

Your comment matters. Councils must consider every representation that raises material planning considerations.

Write a comment