← Swansea Council

Status

Awaiting decision House extension
Received
24 Nov 2025
New homes
0

Full proposal

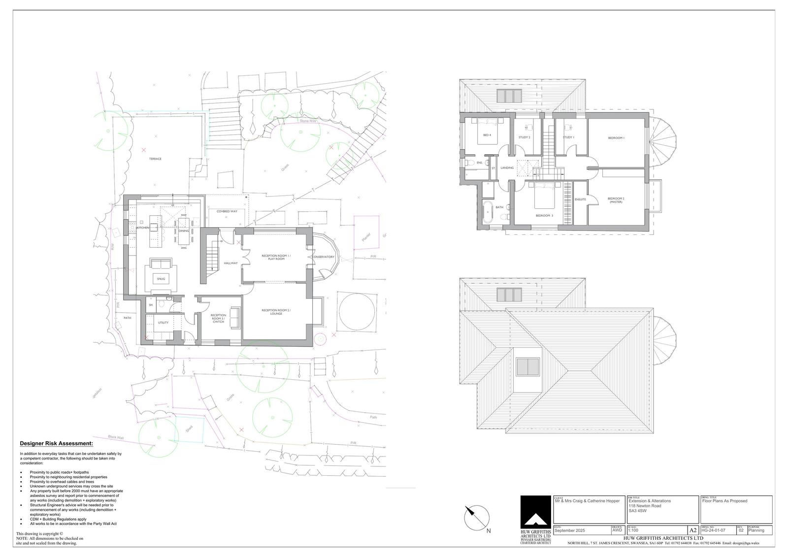
Demolition of front porch and flat roofed single-storey rear extension and construction of two storey rear and single-storey side extension including covered way.

Documents

APPLICATION FORM
Dogfen Gyfredol - Current Document
Not yet archived · Original link
BAT SURVEY REPORT
Dogfen Gyfredol - Current Document
Not yet archived · Original link
EXISTING ELEVATIONS
Dogfen Gyfredol - Current Document
Not yet archived · Original link
EXISTING FLOOR PLANS
Dogfen Gyfredol - Current Document
Not yet archived · Original link
EXISTING LOCATION & BLOCK PLAN
Dogfen Gyfredol - Current Document
Not yet archived · Original link
Dogfen Gyfredol - Current Document
Archived · Original link
GREEN INFRASTRUCTURE
Dogfen Gyfredol - Current Document
Not yet archived · Original link
Llythyr Cydnabyddiaeth -Acknowledgement Letter
Llythyr Cydnabyddiaeth -Acknowledgement Letter
Not yet archived · Original link
Llythyr Cydnabyddiaeth -Acknowledgement Letter
Llythyr Cydnabyddiaeth -Acknowledgement Letter
Not yet archived · Original link
PROPOSED ELEVATIONS
Dogfen Gyfredol - Current Document
Not yet archived · Original link
Dogfen Gyfredol - Current Document
Archived · Original link
PROPOSED LOCATION & BLOCK PLAN
Dogfen Gyfredol - Current Document
Not yet archived · Original link
Ymgynghoriad Ymgyngoreion - Consultee Consultation
Ymgynghoriad Ymgyngoreion - Consultee Consultation
Not yet archived · Original link

Have your say

Your comment matters. Councils must consider every representation that raises material planning considerations.

Write a comment