← Swansea Council

Status

Being Considered Change of use
Received
11 Nov 2025
New homes
0

Full proposal

Pre-application enquiry - Redevelopment and conversion of a former church and vicarage to a Community Cwtch

Documents

CHURCH-EXISTING GROUND FLOOR PLAN
Dogfen Gyfredol - Current Document
Not yet archived · Original link
EXISTING ELEVATIONS
Dogfen Gyfredol - Current Document
Not yet archived · Original link
Dogfen Gyfredol - Current Document
Archived · Original link
EXISTING VICARAGE FLOOR PLANS
Dogfen Gyfredol - Current Document
Not yet archived · Original link
FRONT ELEVATION
Dogfen Gyfredol - Current Document
Not yet archived · Original link
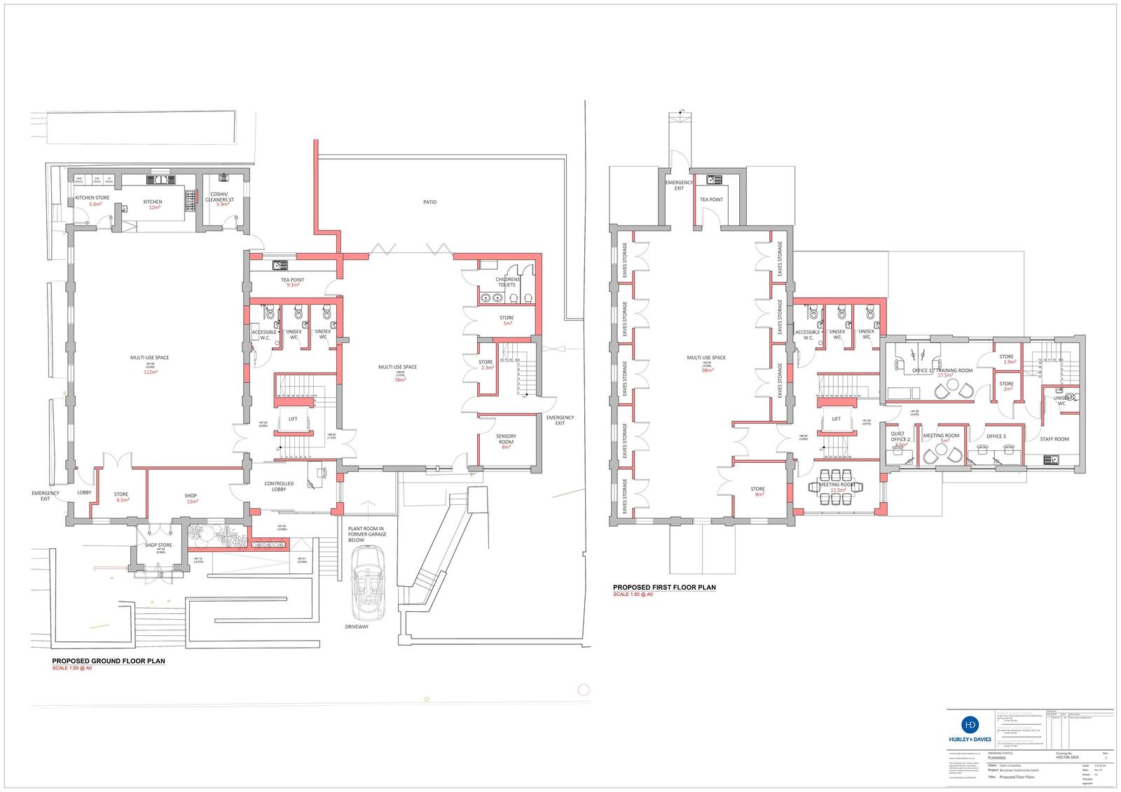
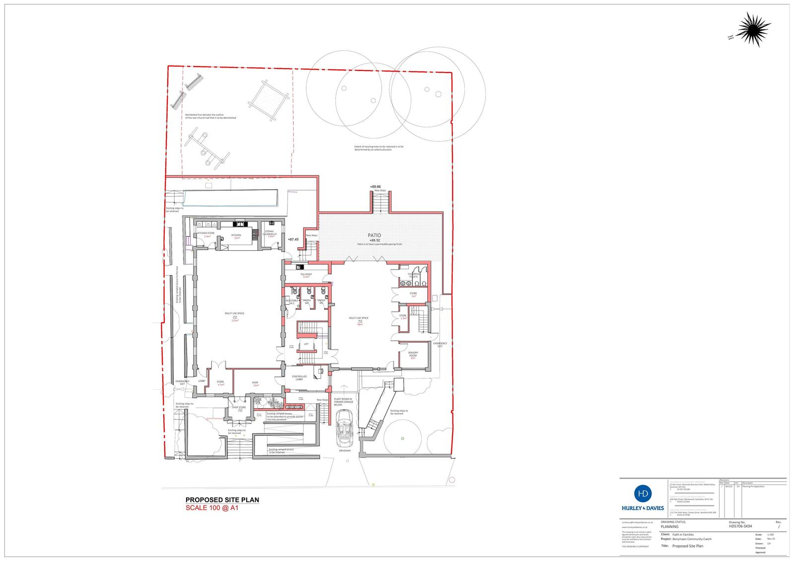
HALL GROUND & FIRST FLOOR PLANS
Dogfen Gyfredol - Current Document
Not yet archived · Original link
PRE-APPLICATION FORMS
Dogfen Gyfredol - Current Document
Not yet archived · Original link
Dogfen Gyfredol - Current Document
Archived · Original link
Dogfen Gyfredol - Current Document
Archived · Original link
Dogfen Gyfredol - Current Document
Archived · Original link
SUPPORTING STATEMENT
Dogfen Gyfredol - Current Document
Not yet archived · Original link
VICARAGE EXISTING ELEVATIONS
Dogfen Gyfredol - Current Document
Not yet archived · Original link

Have your say

Your comment matters. Councils must consider every representation that raises material planning considerations.

Write a comment