← Swansea Council

Status

Awaiting decision Change of use
Received
03 Jul 2025
New homes
0

Full proposal

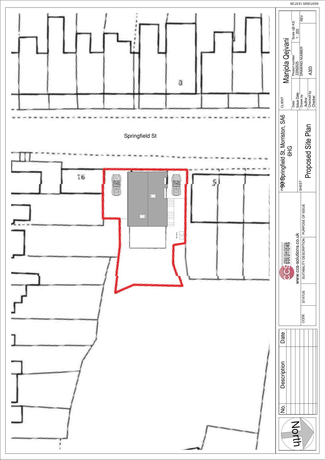
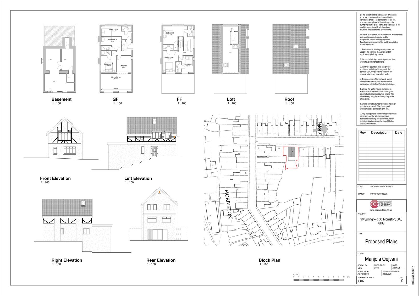
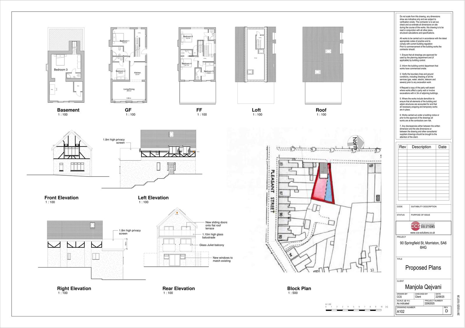
Change of use from a residential dwelling to six individual letting bedrooms, with a new window is proposed on the right (south) elevation at ground floor level

Documents

APPLICATION FORM
Dogfen Gyfredol - Current Document
Not yet archived · Original link
EXISTING PLAN
Dogfen Gyfredol - Current Document
Not yet archived · Original link
EXISTING PLANS
Dogfen a Ddisodlwyd - Superseded Document
Not yet archived · Original link
EXISTING PLANS
Dogfen a Ddisodlwyd - Superseded Document
Not yet archived · Original link
GREEN INFRASTRUCTURE STATEMENT
Dogfen Gyfredol - Current Document
Not yet archived · Original link
Llythyr Cydnabyddiaeth -Acknowledgement Letter
Llythyr Cydnabyddiaeth -Acknowledgement Letter
Not yet archived · Original link
LOCATION PLAN
Dogfen a Ddisodlwyd - Superseded Document
Not yet archived · Original link
PARKING ASSESSMENT STATEMENT
Dogfen Gyfredol - Current Document
Not yet archived · Original link
PLANNING STATEMENT
Dogfen Gyfredol - Current Document
Not yet archived · Original link
Dogfen Gyfredol - Current Document
Archived · Original link
Dogfen a Ddisodlwyd - Superseded Document
Archived · Original link
Dogfen a Ddisodlwyd - Superseded Document
Archived · Original link
Dogfen a Ddisodlwyd - Superseded Document
Archived · Original link
Dogfen a Ddisodlwyd - Superseded Document
Archived · Original link
Dogfen Gyfredol - Current Document
Archived · Original link
Ymgynghoriad Ymgyngoreion - Consultee Consultation
Ymgynghoriad Ymgyngoreion - Consultee Consultation
Not yet archived · Original link
Ymgynghoriad Ymgyngoreion - Consultee Consultation
Ymgynghoriad Ymgyngoreion - Consultee Consultation
Not yet archived · Original link
Ymgynghoriad Ymgyngoreion - Consultee Consultation
Ymgynghoriad Ymgyngoreion - Consultee Consultation
Not yet archived · Original link

Have your say

Your comment matters. Councils must consider every representation that raises material planning considerations.

Write a comment