← Stroud District Council

Status

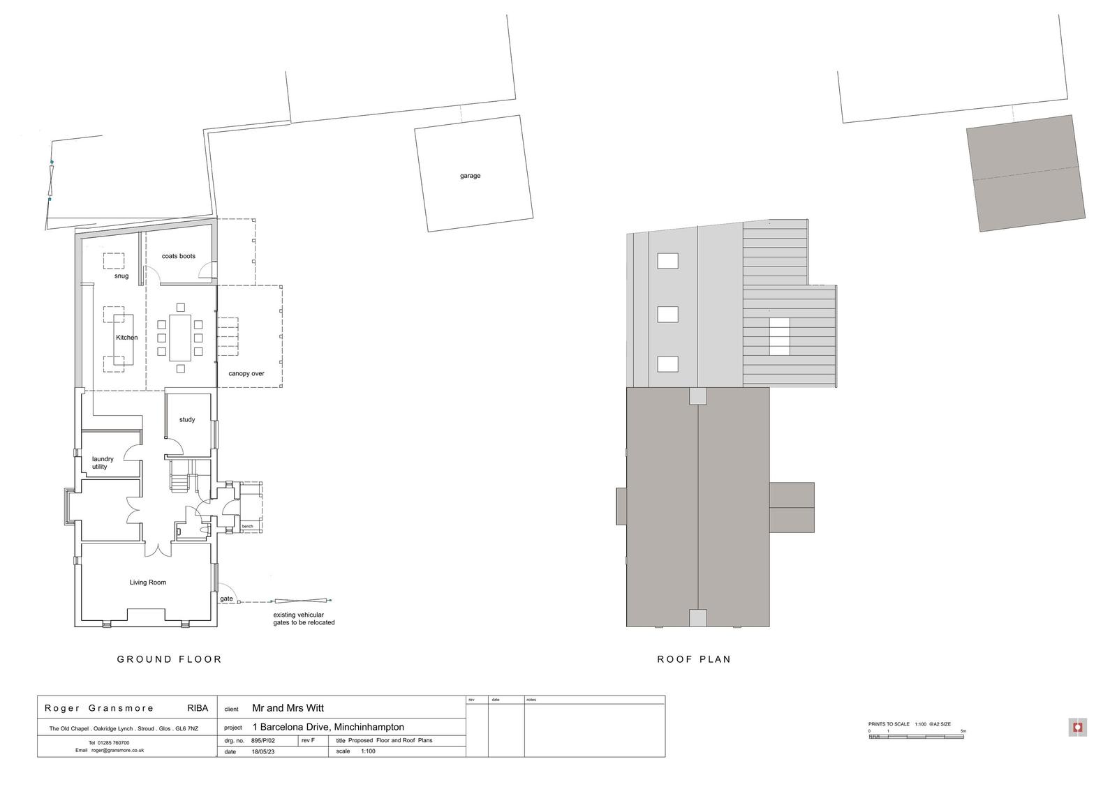
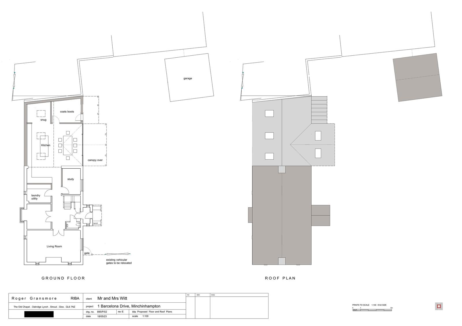
Permitted House extension
Received
19 Jan 2026
New homes
0

Full proposal

Erection of single extension, canopy and porch extension. Increase boundary wall height to 1.8m.

Documents

Revised Drawing
Archived · Original link
Superseded Drawing
Archived · Original link
Superseded Drawing
Archived · Original link
Superseded Drawing
Archived · Original link
Superseded Drawing
Archived · Original link

Have your say

Your comment matters. Councils must consider every representation that raises material planning considerations.

Write a comment