S.25/2410/HHOLD
Stroud District Council
Status
Permitted
House extension
Received
17 Dec 2025
New homes
0
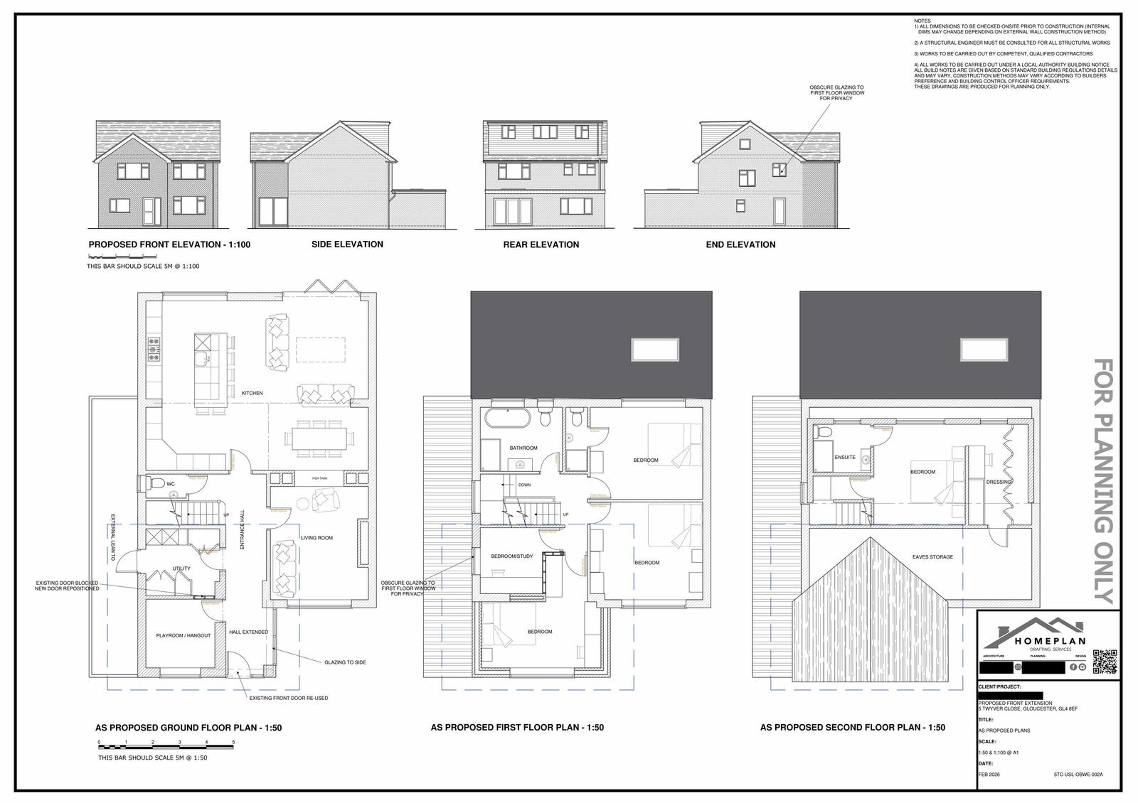
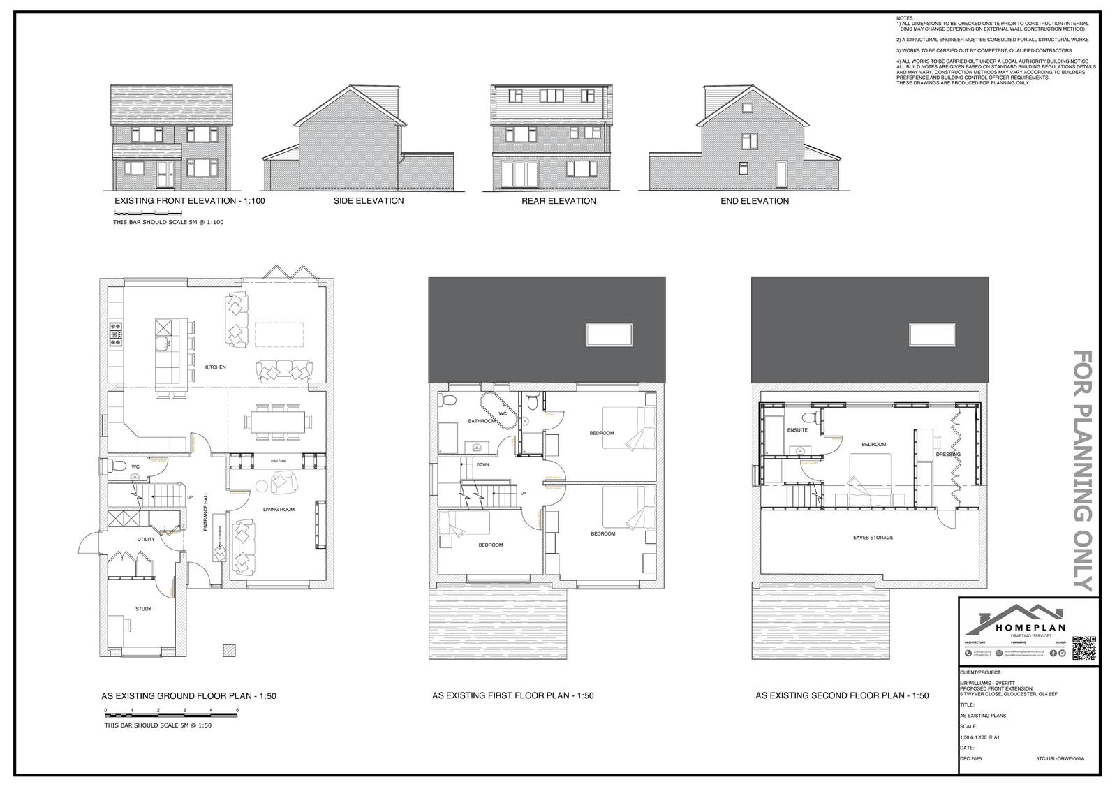
Full proposal
Erection of a two storey front extension.
Documents
Have your say
Your comment matters. Councils must consider every representation that raises material planning considerations.