← Stroud District Council

Status

Permitted House extension
Received
02 Dec 2025
New homes
0

Full proposal

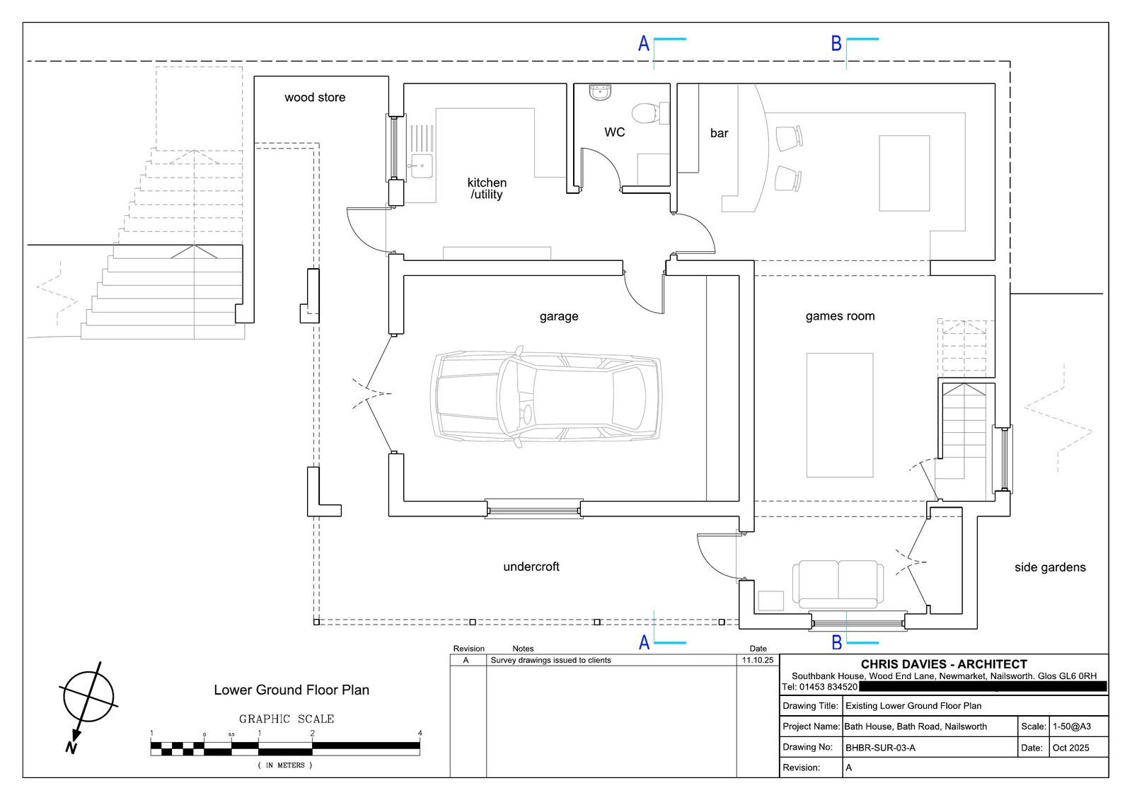
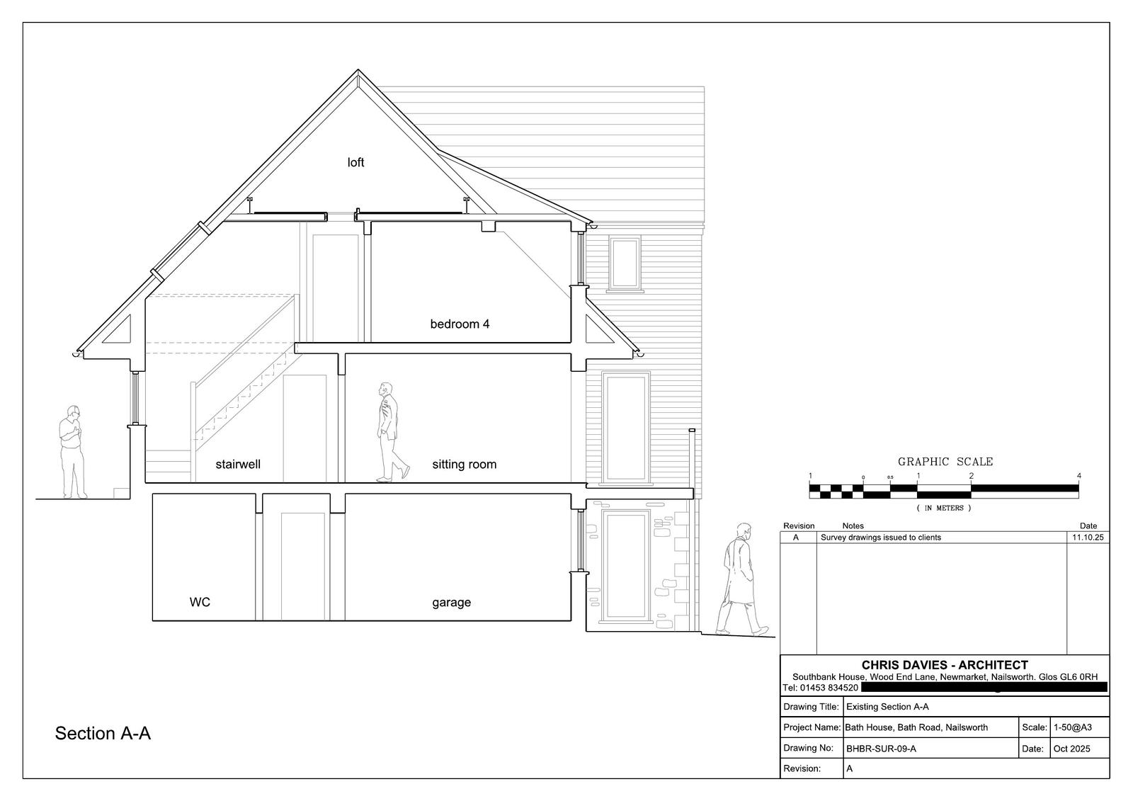
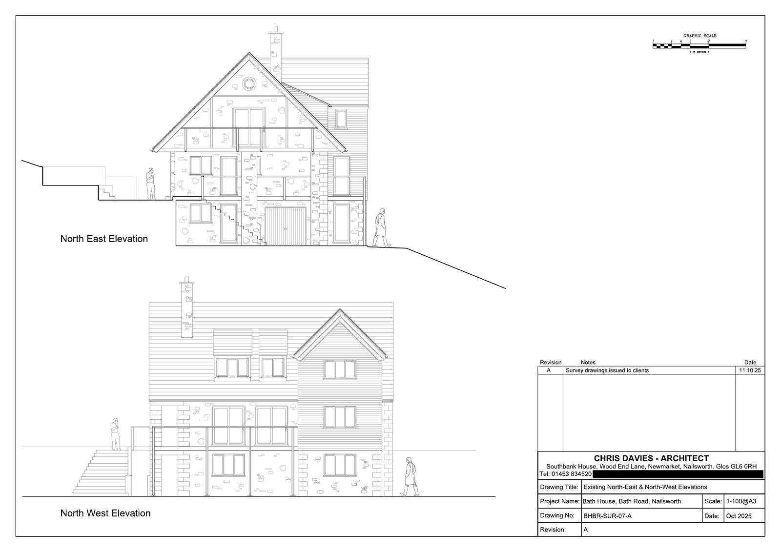
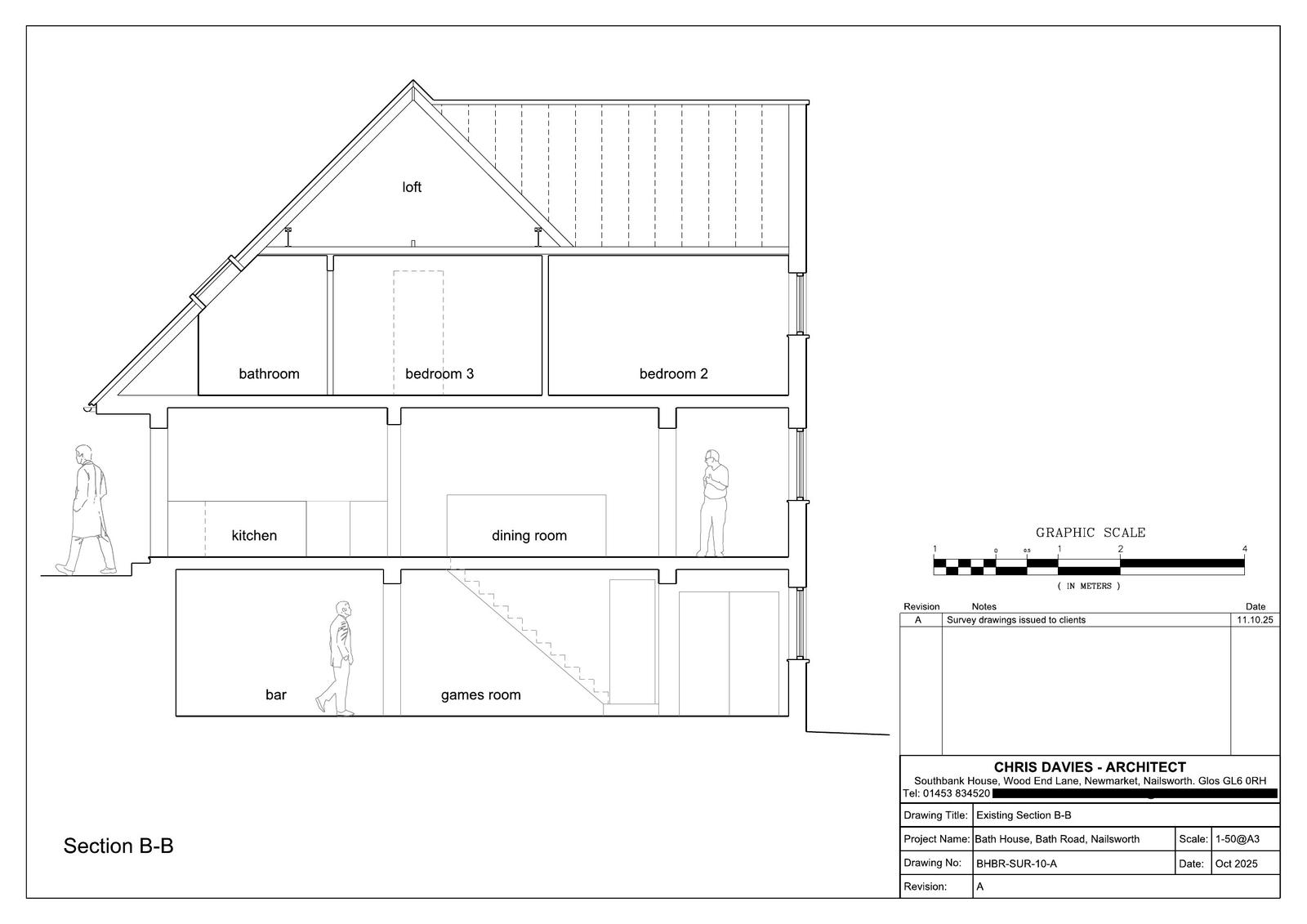
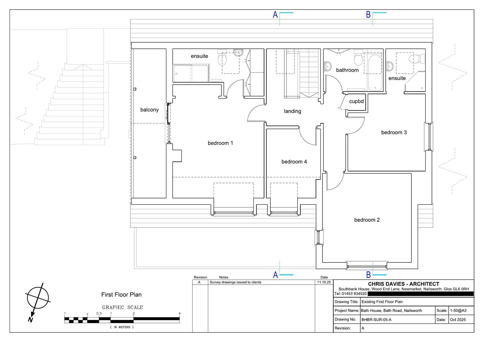
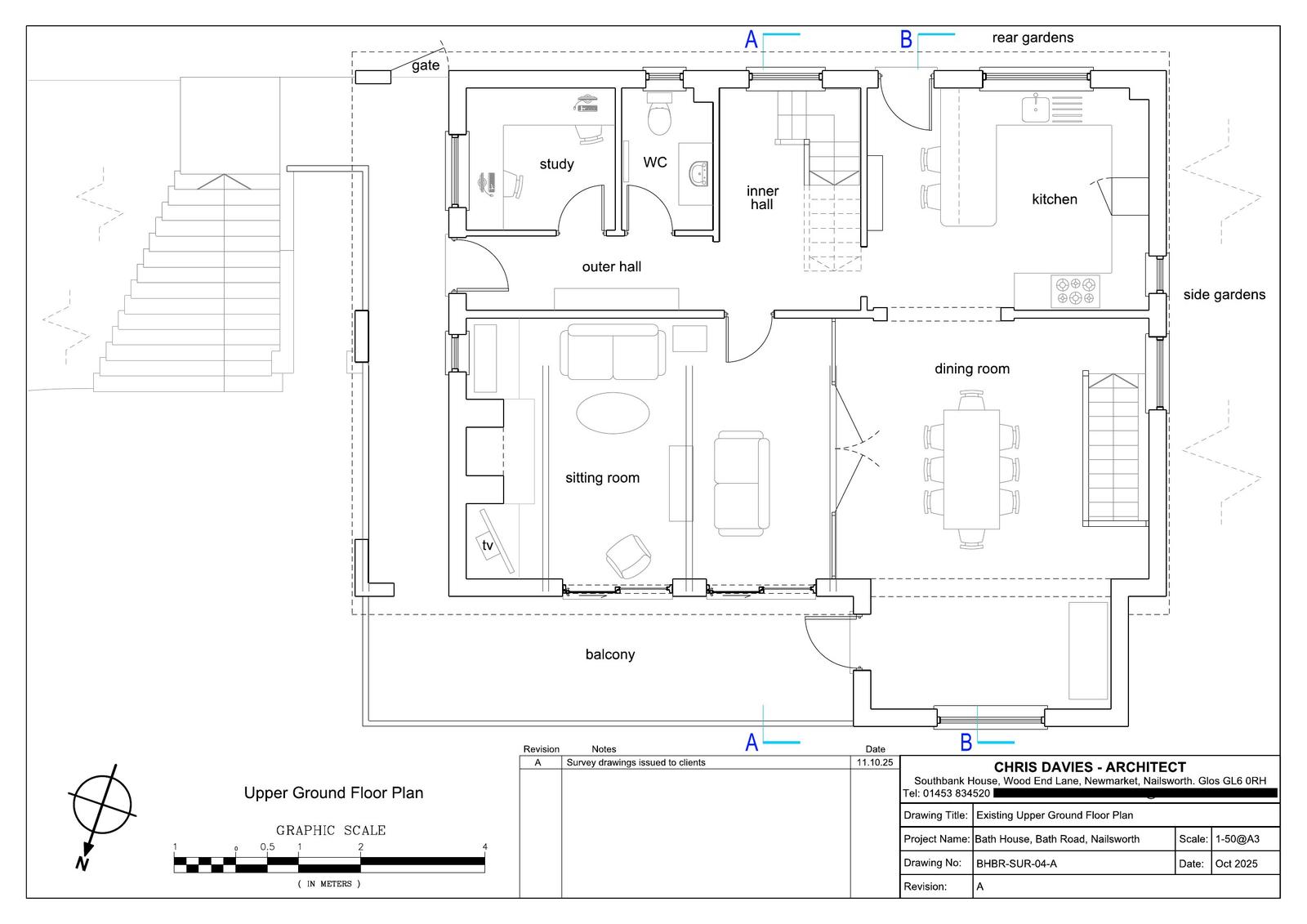
Loft conversion with erection of a rear dormer extension and installation of solar panels.

Have your say

Your comment matters. Councils must consider every representation that raises material planning considerations.

Write a comment