← Stroud District Council

Status

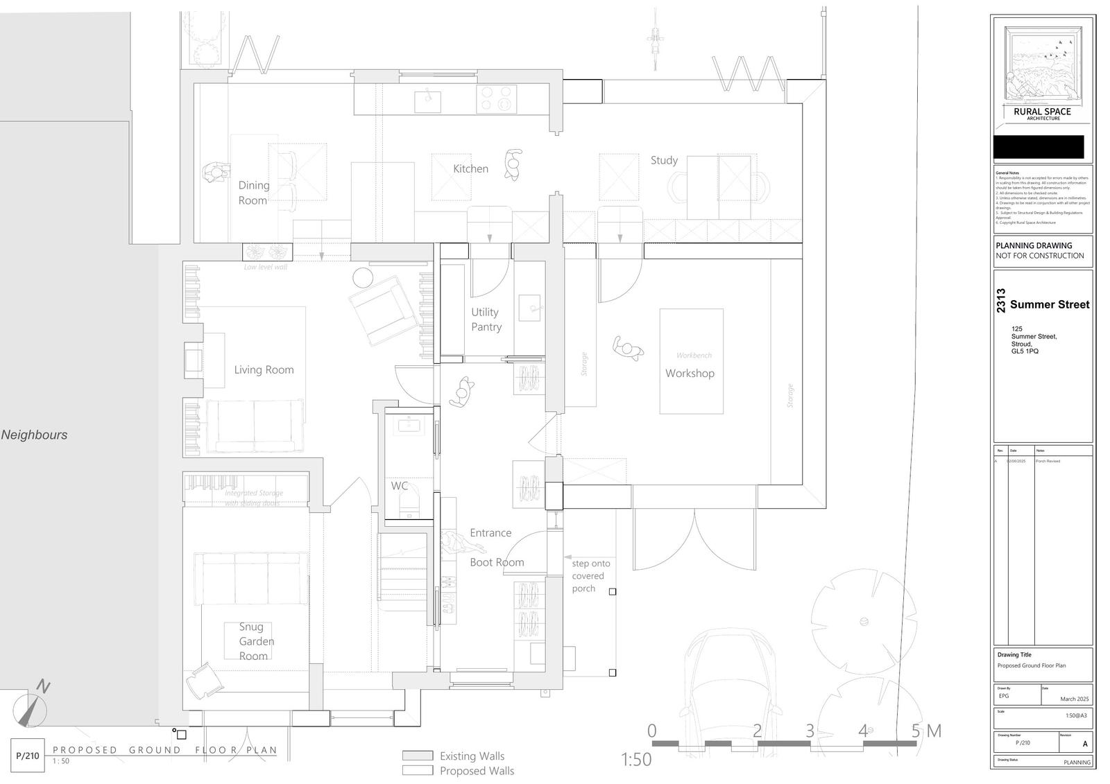
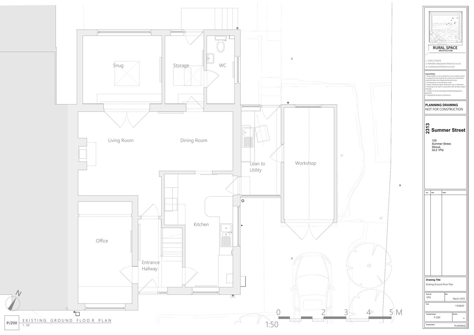
Permitted House extension
Received
12 May 2025
New homes
0

Full proposal

Demolition of existing side extension and garage, with replacement of a side and rear single storey extension, raised deck & steps and external landscaping.

Documents

Application Form
Archived · Original link
Design and Access Statement
Archived · Original link
Drawing
Archived · Original link
Decision
Archived · Original link
Revised Drawing
Archived · Original link
Revised Drawing
Archived · Original link
Revised Drawing
Archived · Original link

Have your say

Your comment matters. Councils must consider every representation that raises material planning considerations.

Write a comment