S.25/0123/HHOLD
Stroud District Council
Status
Permitted
House extension
Received
20 Jan 2025
New homes
0
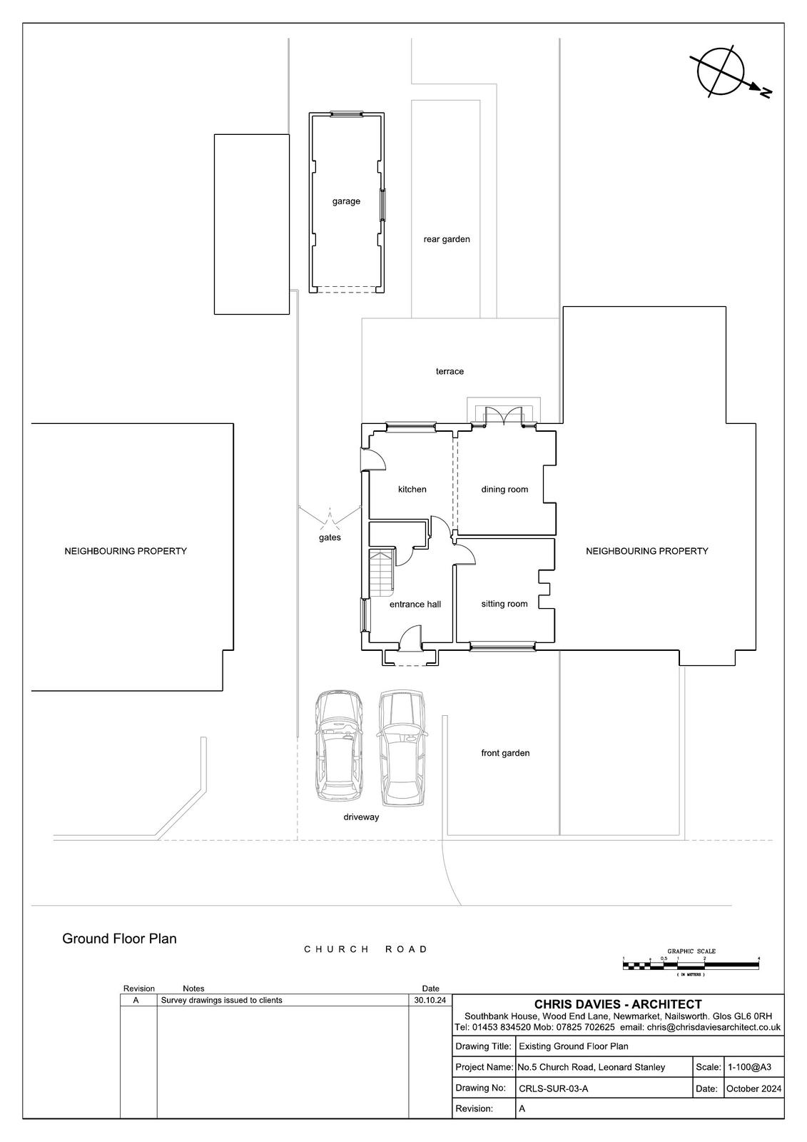
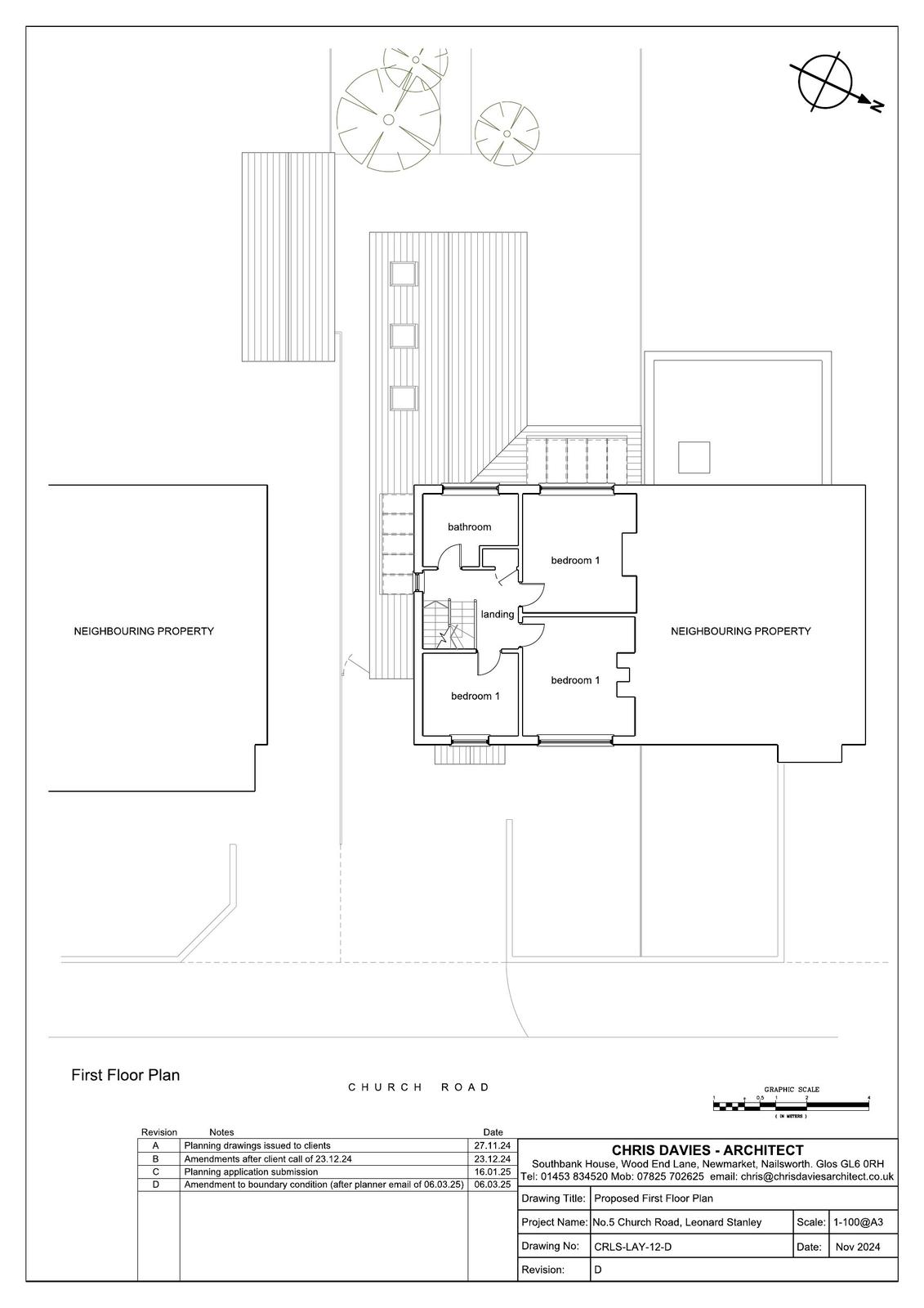
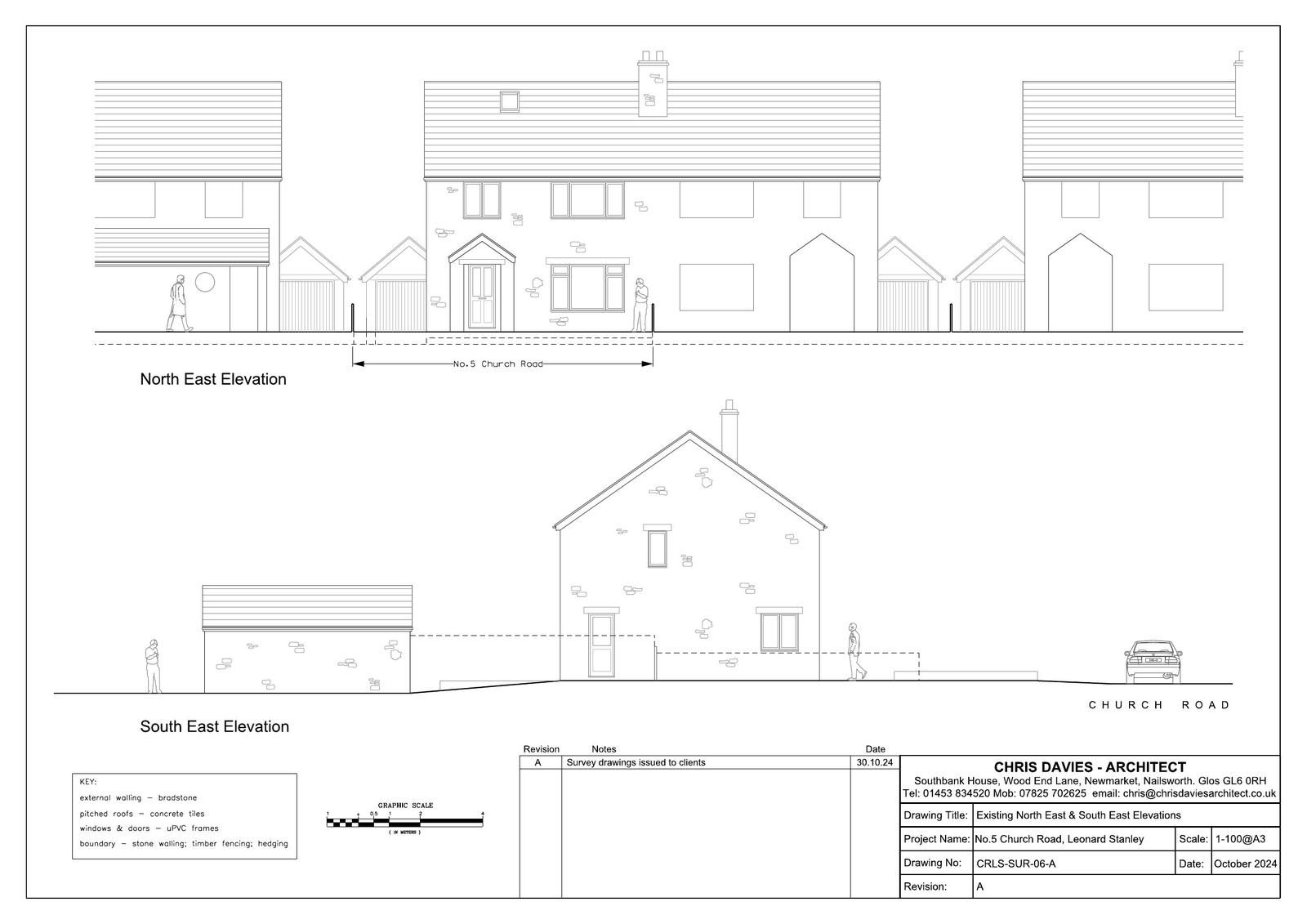
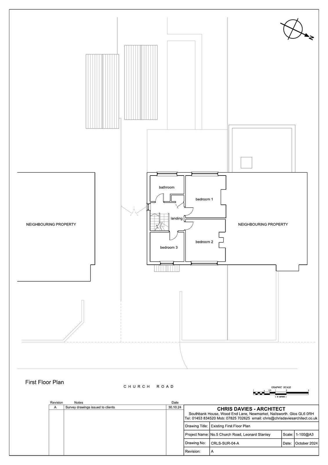
Full proposal
Erection of single storey extensions.
Documents
Have your say
Your comment matters. Councils must consider every representation that raises material planning considerations.