← Stroud District Council

Status

Unknown Change of use
Received
20 Jan 2025
New homes
0

Full proposal

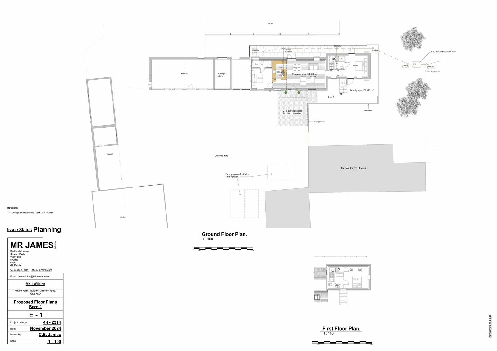
Conversion of barns to single dwelling (C3 Use Class)

Documents

APPLICATION FORM
Application Form
Not yet archived · Original link
COVER LETTER
Supporting Document
Not yet archived · Original link
ECOLOGY ENHANCEMENTS
Supporting Document
Not yet archived · Original link
ECOLOGY MITIGATION
Drawing
Not yet archived · Original link
Revised Drawing
Archived · Original link
EXISTING PLANS & ELEVATIONS - BARN 1
Drawing
Not yet archived · Original link
FURTHER INFORMATION
Supporting Document
Not yet archived · Original link
MATERIAL DETAILS
Supporting Document
Not yet archived · Original link
OFFICER REPORT - WEB
Decision
Not yet archived · Original link
PRIOR APPROVAL GRANTED P3Q
Decision
Not yet archived · Original link
PROPOSED ELEVATIONS
Revised Drawing
Not yet archived · Original link
Revised Drawing
Archived · Original link
Revised Drawing
Archived · Original link

Have your say

Your comment matters. Councils must consider every representation that raises material planning considerations.

Write a comment