S.25/0043/HHOLD
Stroud District Council
Status
Permitted
House extension
Received
10 Jan 2025
New homes
0
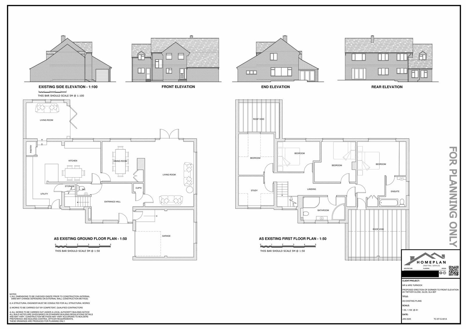
Full proposal
Erection of a front dormer extension.
Documents
Have your say
Your comment matters. Councils must consider every representation that raises material planning considerations.